Eladó ikerház
Vecsés

+ 13 kép 1/16
120 000 000 Ft120 M Ft 1 025 641 Ft/m2
4 szoba
117 m2
építés éve:2025

Részletes adatok

Telekméret: 307 m2
Fűtés: Egyéb
Energetikai besorolás: Nem adta meg a hirdető

Az OTP Bank lakáshitel ajánlataFizetett hirdetés

3629619082
Fekete Zsófia Anna
Új-Lak Bázis Kft

Érdekel az OTP Bank kedvezményes lakáshitel ajánlata? *

* A kérdésre „Igen” válasz bejelölése esetén, az „Üzenet küldése” gombra kattintva kijelentem, hogy az OTP Bank Nyrt. Adatkezelési tájékoztatójának tartalmát megismertem és tudomásul vettem.

Eladó ikerház leírása

Vecsés legmodernebb fiatalos, családias részén

Vecsésen modern környezetben eladó új építésű családi házak.
A kivitelező sok éves múlttal és rengeteg elégedett ügyféllel rendelkezik, referenciák akár itt a lakóparkban is megtekinthetőek.

1-es ház

127 négyzetméter hasznos lakótérrel rendelkezik, mely egy 307 négyzetméteres telken fekszik. A földszinten a nappaliból egy 8 négyzetméteres teraszon keresztül juthatunk ki a saját privát kertünkbe, továbbá az emeleten egy 8,19 négyzetméteres tetőterasz is tartozik hozzá.

Nappali+4 hálószoba+ gardrób, 21nm garázs, szülőiháló.

22 méter saját utcafront!

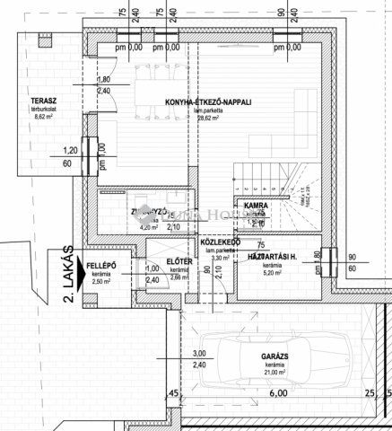
2-es ház

117,03 négyzetméter hasznos lakótérrel rendelkezik, mely egy 307 négyzetméteres telken fekszik. A földszinten a nappaliból egy 8,62 négyzetméteres teraszon keresztül juthatunk ki a saját privát kertünkbe, továbbá az emeleten egy 6,20 négyzetméteres erkély is tartozik hozzá.

Nappali+3hálószoba+gardrób, 21nm garázs, szülőiháló.

3-as ház

117,03 négyzetméter hasznos lakótérrel rendelkezik, mely egy 307 négyzetméteres telken fekszik. A földszinten a nappaliból egy 8,62 négyzetméteres teraszon keresztül juthatunk ki a saját privát kertünkbe, továbbá az emeleten egy 6,20 négyzetméteres erkély is tartozik hozzá.

Nappali+3hálószoba+gardrób, 21nm garázs, szülői háló.

Műszaki adatok:

-30as Prototherm tégla falazat

-15cm-es homlokzati szigetelés

-18-cm-es szigetelés az aljzat felől

-8cm-es szigetelés a födém felől

-3 rétegű műanyag nyílászárók kívülről antracit belülről fehér színűek

-elektromos garázskapu antracit színnel

-Hőszivattyús fűtés/hűtés (fan coil)

-2 fürdőszoba

-mosókonyha

-riasztó és kaputelefon kiállás

-térkövezett autóbeálló

Burkolatok/beltéri ajtók/szaniterek még választhatóak.

A lakópark teljesen új modern környezet, játszótérrel, fákkal. Közlekedést tekintve autóval a Gyorsforgalmi út, Üllői út, Gyömrői út az M0ás és a 4-es út 3perc alatt megközelíthető.

Tömegközlekedés 3perc sétára Volánbusz Kőbánya Kispest vasútállomásig közlekedik, 10perc sétára Vecsési vonatállomás, melyről a Nyugati pályaudvarig közlekednek a vonatok.

Felkeltette érdeklődését keressen bizalommal a hét bármely napján!

Átadás: 2026.IV. negyedév

Referencia szám: HZ051663

Hirdetés feltöltve: 2025. 10. 10. Utoljára módosítva: 2025. 10. 10.

4 szobás ikerházak ára Vecsésen

Ebből az összehasonlításból megtudhatod, hogyan viszonyul a lakás ára a környékbeli ikerházak átlagos árához. Ez nem azt jelenti, hogy ennyivel olcsóbb vagy drágább, mint amennyit a lakás ér, hanem hogy ennyivel tér el a környékbeli átlagtól.

Ennek a m² ára
Vecsés m² ár
1026 e Ft
893 e Ft -15%
Ennek az ára
Vecsés átlagár
120 M Ft m Ft
128 m Ft 6%

Az ingatlan elhelyezkedése

Cím: Vecsés

Eladó ikerházak a környékről

Eladó ikerház
Eladó ikerház

Veresegyház

145 M Ft
4 szoba
120 m2
Eladó ikerház
Eladó ikerház

Vecsés

198 M Ft
5 szoba
141 m2
Eladó ikerház
Eladó ikerház

Vác

96.5 M Ft
4 + 1 szoba
129 m2
Eladó ikerház
Eladó ikerház

Pilisjászfalu

70.563 M Ft
4 szoba
61 m2
Eladó ikerház
Eladó ikerház

Vecsés

110 M Ft
4 szoba
120 m2
Eladó ikerház
Eladó ikerház

Pécel, Pécel - kertváros

127 M Ft
4 szoba
125 m2
Eladó ikerház
Eladó ikerház

Vecsés

119 M Ft
6 szoba
147 m2
Eladó ikerház
Eladó ikerház

Vecsés

119 M Ft
5 szoba
149 m2
Eladó ikerház
Eladó ikerház

Vecsés

119 M Ft
6 szoba
147 m2
Eladó ikerház
Eladó ikerház

Pusztazámor

55 M Ft
10 szoba
470 m2
Eladó ikerház
Eladó ikerház

Vecsés

119 M Ft
6 szoba
147 m2
Eladó ikerház
Eladó ikerház

Vecsés

198 M Ft
5 szoba
141 m2
Eladó ikerház
Eladó ikerház

Érd

139.9 M Ft
5 szoba
159 m2
Eladó ikerház
Eladó ikerház

Dunakeszi

149 M Ft
1 + 4 szoba
127 m2
Eladó ikerház
Eladó ikerház

Szentendre, Szentendre

398 M Ft
5 szoba
267 m2
Eladó ikerház
Eladó ikerház

Érd, Érdliget - Kutyavár, Érdligeten található utca

64.9 M Ft
4 szoba
112 m2
Eladó ikerház
Eladó ikerház

Vecsés

149 M Ft
4 szoba
147 m2
Eladó ikerház
Eladó ikerház

Vecsés

119 M Ft
5 szoba
149 m2
Eladó ikerház
Eladó ikerház

Vecsés

119 M Ft
5 szoba
149 m2
Eladó ikerház
Eladó ikerház

Vecsés

119 M Ft
6 szoba
147 m2
Eladó ikerház
Eladó ikerház

Tahitótfalu

88.9 M Ft
4 szoba
110 m2
Eladó ikerház
Eladó ikerház

Mogyoród, Fóti út

188 M Ft
6 szoba
182 m2
Eladó ikerház
Eladó ikerház

Dunaharaszti

124.999 M Ft
4 szoba
105 m2
Eladó ikerház
Eladó ikerház

Vecsés

119 M Ft
6 szoba
147 m2

Falusi CSOK ingatlanok

Eladó téglalakás
Eladó téglalakás

Balatonszemes

244.5 M Ft
3 szoba
107 m2
Eladó családi ház
Eladó családi ház

Kutas

14.6 M Ft
3 szoba
65 m2
Eladó családi ház
Eladó családi ház

Tihany

210 M Ft
3 szoba
112 m2
Eladó családi ház
Eladó családi ház

Miháld

39.9 M Ft
5 szoba
101 m2
Eladó családi ház
Eladó családi ház

Zsámbok

33 M Ft
2 szoba
80 m2
Eladó családi ház
Eladó családi ház

Ceglédbercel

95 M Ft
6 szoba
220 m2
Eladó családi ház
Eladó családi ház

Makád

140 M Ft
4 szoba
79 m2
Eladó családi ház
Eladó családi ház

Baktalórántháza

32.9 M Ft
6 szoba
194 m2