Stay Family Park

Eladó ikerház
Vecsés

+ 5 kép 1/8
140 000 000 Ft140 M Ft 939 597 Ft/m2
5 szoba
149 m2
építés éve:2025

Részletes adatok

Telekméret: 505 m2
Fűtés: Egyéb
Energetikai besorolás: Nem adta meg a hirdető

Az OTP Bank lakáshitel ajánlataFizetett hirdetés

+36 1 690
Zámbó Beatrix
referens

Érdekel az OTP Bank kedvezményes lakáshitel ajánlata? *

* A kérdésre „Igen” válasz bejelölése esetén, az „Üzenet küldése” gombra kattintva kijelentem, hogy az OTP Bank Nyrt. Adatkezelési tájékoztatójának tartalmát megismertem és tudomásul vettem.

Eladó ikerház leírása

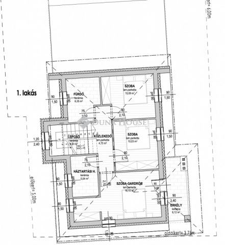
Vecsés legmodernebb fiatalos, családias részénVecsésen modern környezetben eladó új építésű családi házak.A kivitelező sok éves múlttal és rengeteg elégedett ügyféllel rendelkezik, referenciák akár itt a lakóparkban is megtekinthetőek.Az ikerház mindkét feléhez egy kétállásos garázs tartozik (36nm), a két ingatlan kizárólag itt érintkezik!Nappali+4hálószoba+gardrób található az otthokban melyből egy szülőihálószobaként funkcionál, mely 16,10nm.A földszinten van egy nagy 13.57 nm-es részben fedett terasz, az emeleten pedig egy 6,12nm-es erkély mely szintén a szülői hálószobához tartozik.Az otthonok 149,58 négyzetméteresek mellyekhez saját, privát önálló 505 négyzetméter kertrész tartozik.Műszaki adatok:-30as Prototherm tégla falazat-15cm-es homlokzati szigetelés-18-cm-es szigetelés az aljzat felől-8cm-es szigetelés a födém felől-3 rétegű műanyag nyílászárók kívülről antracit belülről fehér színűek-elektromos garázskapu antracit színnel-Hőszivattyús fűtés/hűtés (fan coil)-2 fürdőszoba-mosókonyha-elektromos redőny-riasztó és kaputelefon kiállás-térkövezett autóbeállóBurkolatok/beltéri ajtók/szaniterek még választhatóak.A lakópark teljesen új modern környezet, játszótérrel, fákkal. Közlekedést tekintve autóval a Gyorsforgalmi út, Üllői út, Gyömrői út az M0ás és a 4-es út 3perc alatt megközelíthető.Tömegközlekedés 3perc sétára Volánbusz Kőbánya Kispest vasútállomásig közlekedik, 10perc sétára Vecsési vonatállomás, melyről a Nyugati pályaudvarig közlekednek a vonatok.Felkeltette érdeklődését keressen bizalommal a hét bármely napján!Átadás: 2026.IV.negyedév.

Referencia szám: HZ016595-ZE

Hirdetés feltöltve: 2025. 10. 09. Utoljára módosítva: 2025. 11. 05.

5 szobás ikerházak ára Vecsésen

Ebből az összehasonlításból megtudhatod, hogyan viszonyul a lakás ára a környékbeli ikerházak átlagos árához. Ez nem azt jelenti, hogy ennyivel olcsóbb vagy drágább, mint amennyit a lakás ér, hanem hogy ennyivel tér el a környékbeli átlagtól.

Ennek a m² ára
Vecsés m² ár
940 e Ft
964 e Ft 2%
Ennek az ára
Vecsés átlagár
140 M Ft m Ft
148.4 m Ft 6%

Az ingatlan elhelyezkedése

Cím: Vecsés

Eladó ikerházak a környékről

Eladó ikerház
Eladó ikerház

Vecsés

119 M Ft
5 szoba
149 m2
Eladó ikerház
Eladó ikerház

Vecsés

109.9 M Ft
6 szoba
120 m2
Eladó ikerház
Eladó ikerház

Vecsés

149 M Ft
4 szoba
145 m2
Eladó ikerház
Eladó ikerház

Solymár

150 M Ft
4 + 2 szoba
252 m2
Eladó ikerház
Eladó ikerház

Vác

96.5 M Ft
4 + 1 szoba
129 m2
Eladó ikerház
Eladó ikerház

Veresegyház

145 M Ft
4 szoba
120 m2
Eladó ikerház
Eladó ikerház

Vecsés

119 M Ft
6 szoba
147 m2
Eladó ikerház
Eladó ikerház

Pilisjászfalu

70.563 M Ft
4 szoba
61 m2
Eladó ikerház
Eladó ikerház

Pécel, Pécel - kertváros

127 M Ft
4 szoba
125 m2
Eladó ikerház
Eladó ikerház

Pomáz

129.5 M Ft
4 szoba
100 m2
Eladó ikerház
Eladó ikerház

Vecsés

119 M Ft
6 szoba
147 m2
Eladó ikerház
Eladó ikerház

Vecsés

129.9 M Ft
4 szoba
126 m2
Eladó ikerház
Eladó ikerház

Vác

175.356 M Ft
5 szoba
165 m2
Eladó ikerház
Eladó ikerház

Vác

94.5 M Ft
4 + 1 szoba
126 m2
Eladó ikerház
Eladó ikerház

Vecsés

69.9 M Ft
4 szoba
96 m2
Eladó ikerház
Eladó ikerház

Vecsés

69.9 M Ft
4 szoba
96 m2
Eladó ikerház
Eladó ikerház

Dunakeszi

149 M Ft
1 + 4 szoba
127 m2
Eladó ikerház
Eladó ikerház

Vecsés

119 M Ft
5 + 1 szoba
150 m2
Eladó ikerház
Eladó ikerház

Dunaharaszti

124.999 M Ft
4 szoba
105 m2
Eladó ikerház
Eladó ikerház

Vecsés

119 M Ft
6 szoba
147 m2
Eladó ikerház
Eladó ikerház

Szentendre

359 M Ft
5 szoba
289 m2
Eladó ikerház
Eladó ikerház

Vecsés

69.9 M Ft
4 szoba
96 m2
Eladó ikerház
Eladó ikerház

Vecsés

119 M Ft
6 szoba
147 m2
Eladó ikerház
Eladó ikerház

Szentendre, Szentendre

398 M Ft
5 szoba
267 m2

Falusi CSOK ingatlanok

Eladó családi ház
Eladó családi ház

Törtel

14 M Ft
3 + 2 szoba
55 m2
Eladó családi ház
Eladó családi ház

Szabadbattyán

30 M Ft
4 szoba
75 m2
Eladó családi ház
Eladó családi ház

Varbóc

7.9 M Ft
2 szoba
86 m2
Eladó családi ház
Eladó családi ház

Badacsonytomaj

199.8 M Ft
3 szoba
166 m2
Eladó családi ház
Eladó családi ház

Tab, Rózsadomb utca

79 M Ft
3 szoba
93 m2
Eladó családi ház
Eladó családi ház

Szalánta

149.9 M Ft
10 szoba
301 m2
Eladó családi ház
Eladó családi ház

Szigetbecse, Makádi út

49 M Ft
2 szoba
84 m2
Eladó családi ház
Eladó családi ház

Egyed

24.9 M Ft
2 + 1 szoba
56 m2