City Pearl

Eladó ikerház
Üllő

+ 17 kép 1/20
109 000 000 Ft109 M Ft 1 197 802 Ft/m2
4 szoba
91 m²
építés éve:2019

Részletes adatok

Telekméret: 250 m2
Fűtés: Geotermikus
Parkolás: Kocsibeálló
Komfort: Duplakomfortos
Energetikai besorolás: A++

Az OTP Bank lakáshitel ajánlataFizetett hirdetés

+36 30 237
Tóth Péter
referens

Érdekel az OTP Bank kedvezményes lakáshitel ajánlata? *

* A kérdésre „Igen” válasz bejelölése esetén, az „Üzenet küldése” gombra kattintva kijelentem, hogy az OTP Bank Nyrt. Adatkezelési tájékoztatójának tartalmát megismertem és tudomásul vettem.

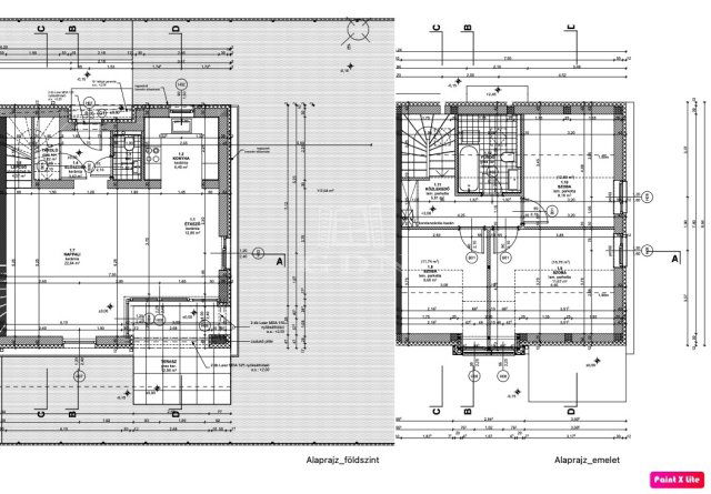
Eladó ikerház leírása

NAGYCSALÁDOSOK FIGYELEM!

Üllőn a Sportliget lakóparkban, megvételre kínálok egy 2018-ba épült ikerház felet.

Az ingatlan Leiertherm 30N+F kerámia téglából, 10 cm-es homlokzati szigetelőrendszerrel, 10 cm-es YTONG válaszfalakkal, 15 cm-es mennyezeti paplan szigeteléssel épült, 2 rétegű műanyag nyílászáróval szerelt, 3 külön nyíló szobával, dupla komforttal nagy amerikai konyhás nappalival rendelkezik. Fűtését, egy CALEO elektromos rendszer adja.

2019-ben SolarEdge 5,4 kWp napelem rendszer lett telepítve, mely az ingatlan teljes elektromos rendszerét táplálja.
Átlagos éves termelés stabilan 4 - 5,2 MWh.

A földszinten található egy gépészeti helyiség, wc kézmosóval, kényelmes nagy nappali konyhával, közvetlen kertkapcsolattal.

Az emeleten három teljes értékű külön nyíló szoba és egy kádas fürdőszoba lett kialakítva.

A kizárólagos használatú 250 nm-es kert, kényelmes kikapcsolódást nyújt és gyorsan karbantartható.

1 személyautó parkolására van lehetőség.

Közlekedés. Budapest belvárosa 35 - 60 perc autóval, Üllő vasútállomás, 17 perc gyalogosan, 4 perc autóval.

Amennyiben hirdetésem felkeltette érdeklődését, várom hívását a hét bármely napján. tp ...TOVÁBBI, TÖBBEZRES INGATLAN KÍNÁLAT: www.gdn-ingatlan.hu - GDN azonosító: 393046

Hirdetés feltöltve: 2026. 02. 27. Utoljára módosítva: 2026. 05. 15.

4 szobás ikerházak ára Üllőn

Ebből az összehasonlításból megtudhatod, hogyan viszonyul a lakás ára a környékbeli ikerházak átlagos árához. Ez nem azt jelenti, hogy ennyivel olcsóbb vagy drágább, mint amennyit a lakás ér, hanem hogy ennyivel tér el a környékbeli átlagtól.

Ennek a m² ára
Üllő m² ár
1198 e Ft
1209 e Ft 1%
Ennek az ára
Üllő átlagár
109 M Ft m Ft
111.4 m Ft 2%

Az ingatlan elhelyezkedése

Cím: Üllő

Eladó ikerházak a környékről

Hernád
Eladó ikerház

Hernád

41.3 M Ft
3 szoba
68 m²
Üllő
Eladó ikerház

Üllő

125 M Ft
5 szoba
122 m²
Szentendre
Eladó ikerház

Szentendre

179 M Ft
5 + 1 szoba
147 m²
Üllő
Eladó ikerház

Üllő

120 M Ft
4 szoba
95 m²
Üllő
Eladó ikerház

Üllő

120 M Ft
4 szoba
95 m²
Érd
Eladó ikerház

Érd

177.7 M Ft
7 szoba
181 m²
Herceghalom
Eladó ikerház

Herceghalom

99 M Ft
4 szoba
106 m²
Pécel, Pécel - kertváros
Eladó ikerház

Pécel

127 M Ft
4 szoba
125 m²
Üllő
Eladó ikerház

Üllő

125 M Ft
5 szoba
122 m²
Üllő
Eladó ikerház

Üllő

125 M Ft
5 szoba
122 m²
Üllő
Eladó ikerház

Üllő

125 M Ft
5 szoba
122 m²
Üllő
Eladó ikerház

Üllő

72.9 M Ft
3 szoba
73 m²
Szentendre
Eladó ikerház

Szentendre

359 M Ft
5 + 1 szoba
289 m²
Üllő
Eladó ikerház

Üllő

125 M Ft
5 szoba
122 m²
Pomáz
Eladó ikerház

Pomáz

129.5 M Ft
4 szoba
100 m²
Herceghalom
Eladó ikerház

Herceghalom

148 M Ft
5 szoba
134 m²
Pécel
Eladó ikerház

Pécel

149.9 M Ft
5 szoba
306 m²
Vác
Eladó ikerház

Vác

99.7 M Ft
4 + 1 szoba
129 m²
Üllő
Eladó ikerház

Üllő

120 M Ft
4 szoba
95 m²
Szentendre
Eladó ikerház

Szentendre

718 M Ft
10 + 2 szoba
578 m²
Mogyoród
Eladó ikerház

Mogyoród

129 M Ft
5 szoba
123 m²
Üllő
Eladó ikerház

Üllő

120 M Ft
4 szoba
95 m²
Nagytarcsa
Eladó ikerház

Nagytarcsa

119.9 M Ft
4 szoba
103 m²
Üllő
Eladó ikerház

Üllő

125 M Ft
5 szoba
122 m²

Falusi CSOK ingatlanok

Sződ
Eladó családi ház

Sződ

102.9 M Ft
4 szoba
92 m²
Bak
Eladó családi ház

Bak

49.9 M Ft
5 szoba
140 m²
Ceglédbercel
Eladó családi ház

Ceglédbercel

64.99 M Ft
5 szoba
140 m²
Sződ
Eladó családi ház

Sződ

116.9 M Ft
4 + 1 szoba
102 m²
Zalacsány
Eladó családi ház

Zalacsány

69.9 M Ft
3 szoba
90 m²
Rakamaz
Eladó családi ház

Rakamaz

86.9 M Ft
5 szoba
280 m²
Újlengyel
Eladó családi ház

Újlengyel

77.9 M Ft
4 szoba
0 m²
Békésszentandrás
Eladó családi ház

Békésszentandrás

10 M Ft
1 + 1 szoba
70 m²