River Life

Eladó ikerház
Újhartyán

Figyelem!

Ez az ingatlan a 2019.07.01-től induló falusi CSOK által támogatott településen található

+ 2 kép 1/5
118 990 000 Ft118.99 M Ft 1 122 547 Ft/m2
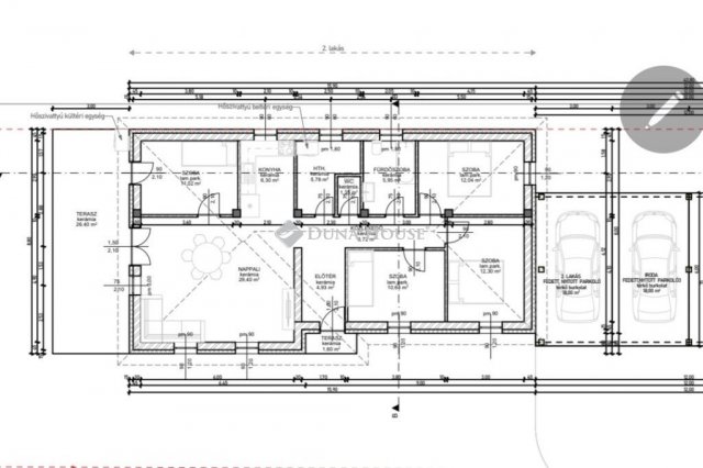
5 szoba
106 m²
építés éve:2026

Részletes adatok

Telekméret: 600 m2
Fűtés: Egyéb
Energetikai besorolás: Nem adta meg a hirdető

Az OTP Bank lakáshitel ajánlataFizetett hirdetés

3629998448
Kristóf Beáta
Duna House - Dabas

Érdekel az OTP Bank kedvezményes lakáshitel ajánlata? *

* A kérdésre „Igen” válasz bejelölése esetén, az „Üzenet küldése” gombra kattintva kijelentem, hogy az OTP Bank Nyrt. Adatkezelési tájékoztatójának tartalmát megismertem és tudomásul vettem.

Eladó ikerház leírása

CSOK+, 3%-os hitelre alkalmas, Új építésű garázskapcsolatos ikerház 600 nm-es telken eladó!!!

Újhartyánon, központhoz közel mégis kertvárosi, hangulatos utcában lévő nettó 106,43 nm-es csodás otthon várja leendő tulajdonosát.

Várható kulcsrakész átadás: 2026 utolsó negyedév! Referencia házak megtekinthetők!

Műszaki tartalom:
- 30-as Porotherm tégla
- 15 cm-es homlokzati szigetelés
- 30 cm födém szigetelés
- ,lapos barna beton cserép
- H-tarifa
- 3 rétegű hőszigetelt üveggel ellátott műanyag nyílászárók
- Fűtés, víz 8kw monoblokkos hőszivattyúval, villanybojler
- mindenhol padlófűtés
- riasztó rendszer alapszerelés kábelezés
- Hideg/meleg burkolatok 8000 Ft/nm áron választhatók

A közelben óvoda, iskola, bevásárlási lehetőség sétatávolságra, M5-ös autópálya autóval pár perc alatt elérhetők!

Amennyiben hitelre lenne szüksége, kiváló, szakmailag felkészült kollégánkkal a Credipasstól Ingyenes és Bankfüggetlen szaktanácsadás keretén belül biztosan megtalálják a lehető legkedvezőbb, személyre szabott konstrukciót.

További kérdés esetén állok szíves rendelkezésükre hétvégén is, a megadott elérhetőségek bármelyikén.

Hirdetés feltöltve: 2026. 04. 01. Utoljára módosítva: 2026. 04. 01.

Az ingatlan elhelyezkedése

Cím: Újhartyán

Eladó ingatlanok a környékről

Dunakeszi
Eladó ikerház

Dunakeszi

234.9 M Ft
5 szoba
150 m²
Halásztelek
Eladó családi ház

Halásztelek

76.8 M Ft
1 + 3 szoba
80 m²
Ráckeve
Eladó családi ház

Ráckeve

44.9 M Ft
4 szoba
86 m²
Vác
Eladó ikerház

Vác

99.7 M Ft
4 + 1 szoba
129 m²
Pécel, Pécel - kertváros
Eladó ikerház

Pécel

127 M Ft
4 szoba
125 m²
Vác
Eladó ikerház

Vác

96.7 M Ft
4 + 1 szoba
126 m²
Diósd
Eladó ikerház

Diósd

213.46 M Ft
5 szoba
186 m²
Vecsés
Eladó téglalakás

Vecsés

74.9 M Ft
4 szoba
76 m²
Göd
Eladó ikerház

Göd

120 M Ft
3 + 1 szoba
156 m²
Délegyháza
Eladó telek

Délegyháza

64.99 M Ft
3314 m²
0 m²
Budakalász
Eladó ikerház

Budakalász

195 M Ft
5 + 2 szoba
170 m²
Szentendre
Eladó ikerház

Szentendre

179 M Ft
5 + 1 szoba
147 m²
Őrbottyán
Eladó családi ház

Őrbottyán

149.9 M Ft
4 szoba
120 m²
Halásztelek
Eladó családi ház

Halásztelek

76.8 M Ft
1 + 3 szoba
80 m²
Herceghalom, Boróka utca 39
Eladó családi ház

Herceghalom

299 M Ft
1548 m²
252 m²
Pomáz
Eladó ikerház

Pomáz

129.5 M Ft
4 szoba
100 m²
Monor
Eladó ikerház

Monor

116.999 M Ft
4 szoba
107 m²
Pécel
Eladó ikerház

Pécel

149.9 M Ft
5 szoba
306 m²
Százhalombatta, Erőmű út
Eladó ipari ingatlan

Százhalombatta

102.84 M Ft
3428 m²
0 m²
Pomáz
Eladó telek

Pomáz

13.9 M Ft
Százhalombatta, Erőmű út
Eladó ipari ingatlan

Százhalombatta

108.12 M Ft
3604 m²
0 m²
Szentendre
Eladó telek

Szentendre

41.5 M Ft
782 m²
0 m²
Szigetszentmiklós
Eladó családi ház

Szigetszentmiklós

129 M Ft
5 szoba
140 m²
Taksony
Eladó ikerház

Taksony

114.9 M Ft
4 + 1 szoba
124 m²

Falusi CSOK ingatlanok

Újlengyel, Hernádi dűlő
Eladó sorház

Újlengyel

64 M Ft
3 szoba
75 m²
Bozsok
Eladó családi ház

Bozsok

290 M Ft
6 szoba
370 m²
Lulla
Eladó családi ház

Lulla

130 M Ft
15 szoba
380 m²
Újlengyel
Eladó családi ház

Újlengyel

110 M Ft
4 szoba
121 m²
Ostffyasszonyfa
Eladó családi ház

Ostffyasszonyfa

37.9 M Ft
5 szoba
494 m²
Homokbödöge
Eladó családi ház

Homokbödöge

47.9 M Ft
4 + 1 szoba
167 m²
Balatonszemes
Eladó téglalakás

Balatonszemes

125.2 M Ft
2 szoba
50 m²
Csemő
Eladó családi ház

Csemő

61.9 M Ft
3 szoba
88 m²

Falusi CSOK ingatlanok

Kadarkút, Körmendi utca
Eladó családi ház

Kadarkút

21 M Ft
3 szoba
82 m²
Bakóca
Eladó családi ház

Bakóca

500 M Ft
13 szoba
1860 m²
Lengyeltóti
Eladó családi ház

Lengyeltóti

26.5 M Ft
2 szoba
85 m²
Magyarszék
Eladó családi ház

Magyarszék

48.5 M Ft
3 + 1 szoba
86 m²
Badacsonytördemic
Eladó családi ház

Badacsonytördemic

90 M Ft
3 szoba
130 m²
Zalacsány
Eladó családi ház

Zalacsány

79.9 M Ft
4 szoba
184 m²
Kenyeri
Eladó családi ház

Kenyeri

39.9 M Ft
3 szoba
94 m²
Gyöngyössolymos
Eladó családi ház

Gyöngyössolymos

57.99 M Ft
4 szoba
160 m²