Eladó ikerház
Tiszaföldvár

+ 17 kép 1/20
26 500 000 Ft26.5 M Ft 358 108 Ft/m2
2 + 1 szoba
74 m2
építés éve:1970

Részletes adatok

Állapot: Átlagos
Telekméret: 430 m2
Fűtés: Héra
Energetikai besorolás: Nem adta meg a hirdető
Zenga Premier

Friss hirdetések, amiket nem találsz meg más ingatlankereső portálon.

Fedezd fel elsőként a Zenga Premier címkés eladó ingatlanokat!

További részletek a zenga.hu-n

Az OTP Bank lakáshitel ajánlataFizetett hirdetés

+36 70 327
Nyerges Anett Nikolett
referens

Érdekel az OTP Bank kedvezményes lakáshitel ajánlata? *

* A kérdésre „Igen” válasz bejelölése esetén, az „Üzenet küldése” gombra kattintva kijelentem, hogy az OTP Bank Nyrt. Adatkezelési tájékoztatójának tartalmát megismertem és tudomásul vettem.

Eladó ikerház leírása

Jász-Nagykun-Szolnok vármegye. Tiszaföldvár egyik kedvelt, nyugodt utcájában kínálunk megvételre egy jó állapotú, 1970-ben épült ikerházat, 75 nm-es kertes családi házat, mely egy 431 nm-es telken épült fel. Az épület tégla falazatú. Új műanyag nyílászárókkal rendelkezik.
Kiváló lehetőséget nyújt családoknak, idősebb pároknak vagy akár befektetés céljából is.

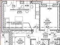
Az ingatlan összesen 2 szobával és egy félszobával rendelkezik, otthonos hangulatú belső terekkel. A földszinten egy 19nm-es szoba és egy 12 nm-es konyha-étkező található. Igény esetén az alsó szintből egy amerikai konyhás nappali is kialakítható az új tulajdonos fantáziája szerint.
Az emeleten szintén egy 19 nm-es szoba és egy kisebb 7,5 nm-es szoba található, valamint a fürdőszoba wc-vel.
A lakótér rendezett, az évek során folyamatosan karbantartott. A konyha tágas, étkezőasztal is könnyedén elfér benne. A nappali világos, kellemes természetes fényt kap.

A telek 430 nm, parkosított, fákkal és bokrokkal szegélyezett. A kert végében egy melléképület is helyet kapott, amely kiváló lehet műhelynek, tárolónak vagy akár hobbihelyiségnek is. A fűtésről vegyes tüzelésű kazán és gázkazán is gondoskodik, a meleg vizet villanybojler biztosítja. A közelmúltban új nyílászárók kerültek beépítésre, ami hozzájárul a költséghatékony fenntartáshoz.

Külön említést érdemel a fűtött garázs, amelynek tetején akár tetőterasz is kialakítható - akár a felső kisebb szobából nyitva, ez tovább bővíti az ingatlanban rejlő lehetőségeket.

A környék csendes, barátságos, a közelben boltok, iskola, orvosi rendelő és tömegközlekedés is elérhető.
Ha egy nyugalmas otthonra vágyik jó helyen, praktikus elosztással és fejlődési lehetőségekkel, akkor ez az ingatlan Önre vár!

Amennyiben felkeltettük érdeklődését hívjon bizalommal a hét bármely napján. A vásárlás finanszírozásában az OTP kedvező hitelkonstrukcióival, CSOK és a támogatott hitel lehetőségével, vagy akár a babaváró hitel ilyen célra történő felhasználásával tud segíteni. Használja ki a lehetőséget, hogy kedvezőbb kamatozású OTP Bank hitelhez juthat, ha az OTP Ingatlanpont kínálatából vásárol. Ingatlant kereső ügyfeleink részére szolgáltatásaink és az ingatlanvásárlással, ingatlan felújítással kapcsolatos hitel ügyintézése ingyenes. Amennyiben felkeltettem érdeklődését kérem hívjon bizalommal.
Amennyiben eladná ingatlanát vagy vásárolna, keressen bizalommal!

Hirdetés feltöltve: 2025. 10. 03. Utoljára módosítva: 2025. 10. 03.

Az ingatlan elhelyezkedése

Cím: Tiszaföldvár

Eladó ingatlanok a környékről

Eladó családi ház
Eladó családi ház

Szolnok

119 M Ft
6 szoba
184 m2
Eladó telek
Eladó telek

Mezőtúr

16.5 M Ft
707 m²
Eladó családi ház
Eladó családi ház

Tiszaföldvár

62.5 M Ft
6 szoba
163 m2
Eladó ikerház
Eladó ikerház

Szászberek

43.6 M Ft
4 szoba
80 m2
Eladó családi ház
Eladó családi ház

Szolnok

24 M Ft
2 szoba
85 m2
Eladó ikerház
Eladó ikerház

Szolnok

45 M Ft
5 szoba
135 m2
Eladó téglalakás
Eladó téglalakás

Szolnok

58.5 M Ft
5 szoba
150 m2
Eladó ikerház
Eladó ikerház

Jászberény

61.9 M Ft
3 szoba
87 m2
Eladó ipari ingatlan
Eladó ipari ingatlan

Kunszentmárton

229.9 M Ft
2853 m²
1800 m2
Eladó téglalakás
Eladó téglalakás

Szolnok

36.9 M Ft
2 szoba
62 m2
Eladó ikerház
Eladó ikerház

Jászberény

65.9 M Ft
3 szoba
87 m2
Eladó családi ház
Eladó családi ház

Vezseny

4.5 M Ft
4 szoba
120 m2
Eladó nyaraló
Eladó nyaraló

Szolnok

17.9 M Ft
1 szoba
30 m2
Eladó családi ház
Eladó családi ház

Fegyvernek

24.5 M Ft
2 szoba
81 m2
Eladó telek
Eladó telek

Mezőtúr

16.5 M Ft
707 m²
Eladó ikerház
Eladó ikerház

Jászberény

64.95 M Ft
4 szoba
79 m2
Eladó családi ház
Eladó családi ház

Jászalsószentgyörgy

22.8 M Ft
3 szoba
95 m2
Eladó telek
Eladó telek

Zagyvarékas, Külterület

26 M Ft
5307 m²
5307 m2
Eladó ikerház
Eladó ikerház

Tiszavárkony, Bajcsy-Zsilinszky út

33.7 M Ft
5 szoba
130 m2
Eladó nyaraló
Eladó nyaraló

Cserkeszőlő

7.9 M Ft
0 + 3 szoba
45 m2
Eladó ikerház
Eladó ikerház

Jászapáti

16.8 M Ft
3 szoba
55 m2
Eladó ikerház
Eladó ikerház

Jászberény

61.9 M Ft
3 szoba
69 m2
Eladó ikerház
Eladó ikerház

Szászberek

43.6 M Ft
4 szoba
80 m2
Eladó ikerház
Eladó ikerház

Jászapáti

16.8 M Ft
3 szoba
55 m2

Falusi CSOK ingatlanok

Eladó téglalakás
Eladó téglalakás

Tokaj

116.5 M Ft
2 szoba
49 m2
Eladó családi ház
Eladó családi ház

Recsk

21 M Ft
4 szoba
220 m2
Eladó családi ház
Eladó családi ház

Enese

72.025 M Ft
4 szoba
75 m2
Eladó családi ház
Eladó családi ház

Miháld

39.9 M Ft
5 szoba
101 m2
Eladó családi ház
Eladó családi ház

Hajós

63 M Ft
3 szoba
210 m2
Eladó családi ház
Eladó családi ház

Kutas

14.6 M Ft
3 szoba
65 m2
Eladó téglalakás
Eladó téglalakás

Tokaj

192.5 M Ft
3 szoba
90 m2
Eladó családi ház
Eladó családi ház

Farmos

19.9 M Ft
2 szoba
45 m2