Aerogate Homes

Eladó ikerház
Szolnok

+ 3 kép 1/6
82 900 000 Ft82.9 M Ft 592 143 Ft/m2
5 szoba
140 m2
építés éve:2025

Részletes adatok

Telekméret: 369 m2
Fűtés: Gázkazán
Energetikai besorolás: Nem adta meg a hirdető

Az OTP Bank lakáshitel ajánlataFizetett hirdetés

3676770701
Koloh Viktor
Duna House - Kecskemét, Jókai utca

Érdekel az OTP Bank kedvezményes lakáshitel ajánlata? *

* A kérdésre „Igen” válasz bejelölése esetén, az „Üzenet küldése” gombra kattintva kijelentem, hogy az OTP Bank Nyrt. Adatkezelési tájékoztatójának tartalmát megismertem és tudomásul vettem.

Eladó ikerház leírása

**** Szolnok frekventált részén! Nappali +  4 szobás Ikerház!*****
Eladásra kínálunk egy 160m2-es újépítésű Ikerház egyik felét Szolnok belvárosában! Az ingatlan parkra néz és magába foglal egy 38m2-es garázst is. A kivitelezés várhatóan 2025 januárjában kezdődik! 
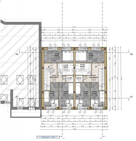
A hirdetésben szereplő látványtervek és alaprajz tájékoztató jellegű, a műszaki paraméterek figyelembevételével egyeztetés alapján az ingatlan mérete, elrendezése, helységek kialakítása...stb saját igény szerint személyre szabható, módosítható !
Ez az ingatlan tökéletes választás azok számára, akik új építésű, mégis karakteres otthonra vágynak. A tégla építési mód nem csak esztétikailag vonzó, hanem hosszú távon is biztosítja az ingatlan értékállóságát. Az épület modern tervezése és kivitelezése olyan otthont teremt, ahol minden részletre odafigyeltek, hogy garantálják a kényelmet és a funkcionalitást.

Műszaki tartalom:
-Wienerberger - Porotherm X-therm Profi síkra-csiszolt ragasztott klímatégla
- 3 rétegű, 6 légkamrás GEALAN fémbetétes argon gáz töltetű nyílászárók
- Beltéri ajtók, ablakok: Norma Decor UTH tokos nyílászárók.
- Kondenzációs központi gázkazán padlófűtéssel és radiátorokkal
- Mázas kerámia padlólap, lábazattal, választható 4500 Ft/m²- árig
- Laminált parketta bruttó 4500 Ft/m²-árig  választható.
- Mosdókagyló: félporcelán, fehér Alföldi vagy Geberit márkájú alaptípusú termékek, nem beépítettek .Kád: fehér akril kád, beépítve, csempézett előtétfallal, króm le-túlfolyó szettel. Csaptelep: Grohe, vagy egyenértékű krómozott, egykaros mosdó- és kádtöltő csaptelep. Kád csap-telephez kézi zuhanyszett fix fali tartóval, a fürdőszoba tükröt a lakók vásárolják meg. WC: félporcelán, fehér színben. Mosógép csatlakozó: falba szerelt szennyvíz csatlakozási és hidegvíz vételi lehetőséggel, alaprajz szerinti helyen a fürdőszobában, illetve azon háztartási helyiségben ahol alaprajzon külön jelölve van
Mosogatógép csatl.: a konyhai mosogató kombi szelepén keresztül vízvételi lehetőséggel és a mosogató kombi szifonján keresztül szennyvíz-elvezetési lehetőséggel (a mosogatótálca és a szifon nem része a műszaki tartalomnak)
- Az elektromos szerelvények Schneider, vagy egyenértékű, a lámpatesteket a lakók vásárolják meg.

- LAN és kábel TV: védőcsövezés és CAT5-ös UTP kábelek az otthoni hálózathoz, valamint koaxiális kábelek a kábeltelevízió szolgáltatáshoz, a nappaliban és hálószobákban 1-1 db TV, és 1-1 darab LAN csatlakozó egy erősáramú dugalj közelében. A távközlési szolgáltatóval való szerződéskötés a vevő feladata.
A kapcsolók Legrand vagy Valena típusúak, a szobákban 4 db konnektor, konyha-nappaliban 6 db, fürdőben 1-1 db, előszobában 1db lesz elhelyezve. Helyiségenként 1db lámpatest lesz felszerelve a fürdőszobában plusz 1db tükörvilágító.

Az ár kulcsrakész átadással értendő, konyhabútor és lámpatestek nélkül.

Szolgáltatásaink:

– Ingyenes CSOK, babaváró és hitelügyintézés

– Megbízható ügyvédi háttér biztosítása

– Ingyenes ingatlan értékmeghatározás

– Energetikai tanúsítvány készítés

– Értékbecslés

– Házépítés megbízható generálkivitelezővel

Bővebb felvilágosításért, egyéb új építésű lehetőségekkel kapcsolatban keressen bizalommal!

Hirdetés feltöltve: 2024. 12. 18. Utoljára módosítva: 2025. 11. 04.

Az ingatlan elhelyezkedése

Cím: Szolnok

Eladó ingatlanok a környékről

Eladó családi ház
Eladó családi ház

Törökszentmiklós

25 M Ft
3 szoba
56 m2
Eladó ikerház
Eladó ikerház

Törökszentmiklós

41.9 M Ft
6 szoba
150 m2
Eladó ikerház
Eladó ikerház

Szolnok

82.9 M Ft
5 szoba
140 m2
Eladó családi ház
Eladó családi ház

Kisújszállás

8 M Ft
1 + 1 szoba
61 m2
Eladó ikerház
Eladó ikerház

Szolnok

99 M Ft
6 szoba
156 m2
Eladó családi ház
Eladó családi ház

Szolnok, Tiszaliget, Muskátli út

79.9 M Ft
2 + 1 szoba
92 m2
Eladó ikerház
Eladó ikerház

Jászapáti

16.8 M Ft
3 szoba
55 m2
Eladó családi ház
Eladó családi ház

Jászszentandrás

24.25 M Ft
3 szoba
75 m2
Eladó ikerház
Eladó ikerház

Szolnok

79 M Ft
4 szoba
210 m2
Eladó ikerház
Eladó ikerház

Szolnok, Nagyváros, József Attila

34.9 M Ft
2 szoba
60 m2
Eladó családi ház
Eladó családi ház

Tiszakürt

8 M Ft
1 szoba
42 m2
Eladó ikerház
Eladó ikerház

Szolnok

69.9 M Ft
4 szoba
100 m2
Eladó családi ház
Eladó családi ház

Szolnok

36 M Ft
3 szoba
75 m2
Eladó ikerház
Eladó ikerház

Újszász

13.9 M Ft
3 szoba
63 m2
Eladó ikerház
Eladó ikerház

Jászapáti

16.8 M Ft
3 szoba
55 m2
Eladó ikerház
Eladó ikerház

Jászberény

61.9 M Ft
3 szoba
87 m2
Eladó családi ház
Eladó családi ház

Jászfényszaru

50 M Ft
3 szoba
131 m2
Eladó üzlethelyiség
Eladó üzlethelyiség

Kunhegyes

53.9 M Ft
1 szoba
184 m2
Eladó ikerház
Eladó ikerház

Jászberény

65.9 M Ft
3 szoba
87 m2
Eladó ikerház
Eladó ikerház

Szolnok

79 M Ft
4 szoba
210 m2
Eladó családi ház
Eladó családi ház

Kisújszállás

26.7 M Ft
2 szoba
69 m2
Eladó családi ház
Eladó családi ház

Szelevény

8 M Ft
2 + 1 szoba
74 m2
Eladó ikerház
Eladó ikerház

Szolnok

82.9 M Ft
5 szoba
140 m2
Eladó ikerház
Eladó ikerház

Szolnok, Nagyváros, József Attila

34.9 M Ft
2 szoba
60 m2

Falusi CSOK ingatlanok

Eladó családi ház
Eladó családi ház

Vasszécseny

20 M Ft
2 szoba
139 m2
Eladó családi ház
Eladó családi ház

Balatonfenyves

430 M Ft
4 szoba
274 m2
Eladó családi ház
Eladó családi ház

Tápióság

30 M Ft
3 szoba
67 m2
Eladó családi ház
Eladó családi ház

Onga

72.9 M Ft
4 szoba
109 m2
Eladó családi ház
Eladó családi ház

Kemeneshőgyész

8 M Ft
2 szoba
60 m2
Eladó családi ház
Eladó családi ház

Kenderes

149.9 M Ft
6 + 2 szoba
420 m2
Eladó ikerház
Eladó ikerház

Enese

83.9 M Ft
4 szoba
90 m2
Eladó családi ház
Eladó családi ház

Kőröstetétlen

17.9 M Ft
2 + 1 szoba
93 m2