Eladó ikerház
Szigethalom

+ 17 kép 1/20
73 000 000 Ft73 M Ft 879 518 Ft/m2
4 szoba
83 m2
építés éve:2006

Részletes adatok

Állapot: Átlagos
Telekméret: 315 m2
Fűtés: Gázkazán
Energetikai besorolás: Nem adta meg a hirdető
Zenga Premier

Friss hirdetések, amiket nem találsz meg más ingatlankereső portálon.

Fedezd fel elsőként a Zenga Premier címkés eladó ingatlanokat!

További részletek a zenga.hu-n

Az OTP Bank lakáshitel ajánlataFizetett hirdetés

+36 70 949
Vitályos Aliz
referens

Érdekel az OTP Bank kedvezményes lakáshitel ajánlata? *

* A kérdésre „Igen” válasz bejelölése esetén, az „Üzenet küldése” gombra kattintva kijelentem, hogy az OTP Bank Nyrt. Adatkezelési tájékoztatójának tartalmát megismertem és tudomásul vettem.

Eladó ikerház leírása

Szeretne egy nyugodt, családias környezetben élni, közel a természethez?

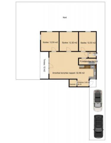
Szigethalmon, a Duna-parttól mindössze néhány perc sétára eladó egy 2006-ban épült, 83 m2-es, földszintes, tégla építésű ikerházfél. Az ingatlan jó állapotban van, de igény szerint könnyen modernizálható, így saját ízlése szerint alakíthatja otthonává.

A ház amerikai konyhás nappalival és három külön nyíló, világos szobával rendelkezik. A külön fürdőszoba és WC mellett egy praktikus tároló is helyet kapott, hogy minden mindig kéznél legyen.

A 12 m2-es privát terasz ideális helyszín reggeli kávéhoz, családi pihenéshez vagy baráti beszélgetésekhez. A jól szeparált kertben fúrt kút és kutya kennel is található, így négylábú kedvence is biztonságban lehet.

A zárt beállón két autó kényelmesen parkolhat, emellett a ház előtt további két gépjármű számára is van hely.

Az ingatlan elhelyezkedése is ideális: csendes, barátságos környéken, kedves szomszédokkal. A közelben iskola, óvoda, bölcsőde, valamint buszmegálló (5 perc séta) is megtalálható, így a mindennapi közlekedés egyszerű és gyors.

Otthon start program és CSOK+ is igénybe vehető az ingatlanra!
Ne hagyja ki ezt a lehetőséget - teremtsen belőle saját, kényelmes otthont Szigethalom egyik legjobb részén!
REF:M282851

Hirdetés feltöltve: 2025. 10. 06. Utoljára módosítva: 2025. 10. 06.

4 szobás ikerházak ára Szigethalmon

Ebből az összehasonlításból megtudhatod, hogyan viszonyul a lakás ára a környékbeli ikerházak átlagos árához. Ez nem azt jelenti, hogy ennyivel olcsóbb vagy drágább, mint amennyit a lakás ér, hanem hogy ennyivel tér el a környékbeli átlagtól.

Ennek a m² ára
Szigethalom m² ár
880 e Ft
772 e Ft -14%
Ennek az ára
Szigethalom átlagár
73 M Ft m Ft
70.5 m Ft -4%

Az ingatlan elhelyezkedése

Cím: Szigethalom

Eladó ingatlanok a környékről

Eladó ikerház
Eladó ikerház

Szigethalom

78.5 M Ft
2 + 2 szoba
74 m2
Eladó ikerház
Eladó ikerház

Vác

175.356 M Ft
5 szoba
165 m2
Eladó ikerház
Eladó ikerház

Érd

139.9 M Ft
5 szoba
159 m2
Eladó ikerház
Eladó ikerház

Dunaharaszti

124.999 M Ft
4 szoba
105 m2
Eladó ikerház
Eladó ikerház

Kiskunlacháza

89.1 M Ft
4 szoba
99 m2
Eladó ikerház
Eladó ikerház

Szentendre

179 M Ft
5 + 1 szoba
147 m2
Eladó ikerház
Eladó ikerház

Pécel

149.9 M Ft
5 szoba
306 m2
Eladó ikerház
Eladó ikerház

Solymár

150 M Ft
4 + 2 szoba
252 m2
Eladó ikerház
Eladó ikerház

Szigethalom

77.5 M Ft
3 + 1 szoba
107 m2
Eladó ikerház
Eladó ikerház

Tahitótfalu

88.9 M Ft
4 szoba
110 m2
Eladó ikerház
Eladó ikerház

Mogyoród, Fóti út

188 M Ft
6 szoba
182 m2
Eladó ikerház
Eladó ikerház

Szigethalom

78.5 M Ft
2 + 2 szoba
74 m2
Eladó családi ház
Eladó családi ház

Inárcs

79.9 M Ft
7 szoba
139 m2
Eladó ikerház
Eladó ikerház

Dunakeszi

149 M Ft
1 + 4 szoba
127 m2
Eladó ikerház
Eladó ikerház

Szigethalom

78.5 M Ft
2 + 2 szoba
74 m2
Eladó ikerház
Eladó ikerház

Szigethalom

79.9 M Ft
4 szoba
78 m2
Eladó családi ház
Eladó családi ház

Szokolya

99 M Ft
4 szoba
216 m2
Eladó ikerház
Eladó ikerház

Szigethalom

88 M Ft
4 + 3 szoba
165 m2
Eladó mezogazdasagi ingatlan
Eladó mezogazdasagi ingatlan

Örkény

38 M Ft
3 szoba
74 m2
Eladó ikerház
Eladó ikerház

Veresegyház

145 M Ft
4 szoba
120 m2
Eladó ikerház
Eladó ikerház

Szentendre

359 M Ft
5 szoba
289 m2
Eladó ikerház
Eladó ikerház

Vác

94.9 M Ft
4 + 1 szoba
129 m2
Eladó ikerház
Eladó ikerház

Szigethalom

78.5 M Ft
2 + 2 szoba
74 m2
Eladó ikerház
Eladó ikerház

Szigethalom

60 M Ft
5 szoba
120 m2

Falusi CSOK ingatlanok

Eladó családi ház
Eladó családi ház

Törtel

34.9 M Ft
4 szoba
102 m2
Eladó családi ház
Eladó családi ház

Újhartyán

83.99 M Ft
2 szoba
80 m2
Eladó családi ház
Eladó családi ház

Bátya

11.5 M Ft
2 szoba
83 m2
Eladó családi ház
Eladó családi ház

Cece

23.5 M Ft
2 szoba
56 m2
Eladó családi ház
Eladó családi ház

Csátalja, Kossuth Lajos utca

41.9 M Ft
3 szoba
90 m2
Eladó téglalakás
Eladó téglalakás

Fonyód

39.9 M Ft
3 szoba
82 m2
Eladó családi ház
Eladó családi ház

Balatonkenese

99.8 M Ft
5 szoba
138 m2
Eladó családi ház
Eladó családi ház

Aszaló

16.49 M Ft
3 szoba
112 m2