Avico Greentop

Eladó ikerház
Sárkeresztes

+ 3 kép 1/6
122 000 000 Ft122 M Ft 1 000 000 Ft/m2
4 szoba
122 m²
építés éve:2026

Részletes adatok

Telekméret: 550 m2
Fűtés: Gázkazán
Parkolás: Garázs
Közmű: Víz, Gáz, Villany, Csatorna
Komfort: Duplakomfortos
Energetikai besorolás: Nem adta meg a hirdető

Az OTP Bank lakáshitel ajánlataFizetett hirdetés

+36 70 429
Légyotthon.hu Ingatlaniroda
referens

Érdekel az OTP Bank kedvezményes lakáshitel ajánlata? *

* A kérdésre „Igen” válasz bejelölése esetén, az „Üzenet küldése” gombra kattintva kijelentem, hogy az OTP Bank Nyrt. Adatkezelési tájékoztatójának tartalmát megismertem és tudomásul vettem.

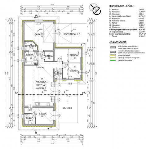
Eladó ikerház leírása

Székesfehérvár közkedvelt agglomerációjában, Sárkeresztesen kínáljuk megvételre ezt az új építésű, 3 szoba + nappalis, kiváló elrendezésű ikerházat.

Az 1168 m²-es telken épülő két otthon különálló családi házként valósul meg, saját kerttel és privát bejárattal. A tágas szobák, a napfényes nappali, a két fürdőszoba, a házból közvetlenül elérhető garázs, valamint a kamra és a mosókonyha kényelmes életteret biztosít a család minden tagja számára. A nappaliból nyíló nagy terasz és a mintegy 400 m²-es, kizárólagos használatú kert ideális helyszín pihenéshez, közös programokhoz.

Csendes, kertvárosias környezetben, Székesfehérvár könnyű elérhetőségével teremt stabil, hosszú távon is értékálló otthont.

Szerkezeti jellemzők:
- 30-as Porotherm tégla falazat
- 10-es Porotherm válaszfalak
- hőszigetelt, 3 rétegű, műanyag nyílászárók, redőnyökkel (kívül antracit, belül fehér színben)
- nyíló-bukó nyílászárók (fehér színben)
- belül műanyag, kívül fémlemez ablakpárkányok
- fenyőfa beltéri ajtók
- minőségi, kezelt fa tetőszerkezet antracit színű, Bramac cserép fedéssel
- tetőcseréphez színben illő ereszcsatorna (eloxált alumínium), föld feletti vízelvezetéssel
- vajszínű, világos Dryvit homlokzati vakolat

Szigetelés:
- 15 cm-es homlokzati hőszigetelés
- 10 cm-es vízálló lábazat szigetelés
- 30 cm-es lépésálló szigetelés a padlózatban

Gépészet:
- Bosch kondenzációs gázkazán által üzemeltetett padlófűtés
- 1 db hűtő-fűtő klíma
- 3 x 20 A túlfeszültség elleni védelemmel, életvédelmi fi-relével
- Schneider kapcsolók és konnektorok bézs színben

Kulcsrakész vételár tartalmazza:
- választható hidegburkolatok 5 000 Ft/nm árig
- választható meleg burkolatok 5 000 Ft/nm árig
- 1 db garázs, előtte térkövezett kocsibeálló
- bejárati ajtó
- riasztórendszer fogadásának kiépítése
- spot világítás kiépítése
- antracit színű, részben automatizált redőnyök

Kulcsrakész átadás a szerződéskötéstől számított 12 hónap.

Sárkeresztes kedvelt, rendezett településén bolt, bölcsőde, óvoda, iskola, orvos, gyógyszertár egyaránt elérhető. Székesfehérvár autóval 10 perc alatt megközelíthető, a tömegközlekedés a város irányába kiváló!

Bővebb információért keressen minket bizalommal, segítünk megtalálni új otthonát.

Hirdetés feltöltve: 2026. 02. 21. Utoljára módosítva: 2026. 05. 12.

Az ingatlan elhelyezkedése

Cím: Sárkeresztes

Eladó ingatlanok a környékről

Ercsi
Eladó ikerház

Ercsi

60 M Ft
4 szoba
85 m²
Székesfehérvár
Eladó téglalakás

Székesfehérvár

61.5 M Ft
2 szoba
56 m²
Ercsi
Eladó ikerház

Ercsi

60 M Ft
4 szoba
85 m²
Székesfehérvár
Eladó telek

Székesfehérvár

29.9 M Ft
488 m²
0 m²
Ercsi
Eladó ikerház

Ercsi

51.99 M Ft
3 szoba
77 m²
Perkáta
Eladó családi ház

Perkáta

44.99 M Ft
3 szoba
52 m²
Székesfehérvár
Eladó téglalakás

Székesfehérvár

51.9 M Ft
2 szoba
47 m²
Székesfehérvár
Eladó téglalakás

Székesfehérvár

61.5 M Ft
2 szoba
56 m²
Székesfehérvár
Eladó téglalakás

Székesfehérvár

71 M Ft
3 szoba
68 m²
Ercsi
Eladó ikerház

Ercsi

51.99 M Ft
3 szoba
77 m²
Székesfehérvár
Eladó üzlethelyiség

Székesfehérvár

116 M Ft
162 m²
Nagyvenyim
Eladó családi ház

Nagyvenyim

27.9 M Ft
1 + 1 szoba
77 m²
Csákberény, Nincs utca
Eladó telek

Csákberény

7 M Ft
1154 m²
Tordas
Eladó ikerház

Tordas

73.5 M Ft
1 + 2 szoba
71 m²
Pákozd
Eladó nyaraló

Pákozd

46.9 M Ft
2 szoba
25 m²
Kápolnásnyék
Eladó ikerház

Kápolnásnyék

118.6 M Ft
1 + 4 szoba
135 m²
Ercsi
Eladó ikerház

Ercsi

65 M Ft
4 szoba
101 m²
Székesfehérvár
Eladó családi ház

Székesfehérvár

179 M Ft
6 szoba
160 m²
Etyek
Eladó ikerház

Etyek

145 M Ft
4 + 2 szoba
197 m²
Tordas, Gyúrói út
Eladó ikerház

Tordas

119.9 M Ft
4 szoba
134 m²
Sárbogárd
Eladó családi ház

Sárbogárd

50 M Ft
3 szoba
120 m²
Székesfehérvár
Eladó panellakás

Székesfehérvár

63 M Ft
3 szoba
63 m²
Székesfehérvár
Eladó ikerház

Székesfehérvár

42 M Ft
2 szoba
50 m²
Gárdony
Eladó családi ház

Gárdony

69.9 M Ft
4 szoba
75 m²

Falusi CSOK ingatlanok

Segesd
Eladó családi ház

Segesd

14.9 M Ft
2 szoba
66 m²
Szigliget, Ciframajor
Eladó sorház

Szigliget

44.9 M Ft
2 szoba
50 m²
Tápiógyörgye
Eladó családi ház

Tápiógyörgye

22.5 M Ft
3 + 1 szoba
83 m²
Mélykút
Eladó téglalakás

Mélykút

23 M Ft
1 + 1 szoba
55 m²
Andornaktálya
Eladó családi ház

Andornaktálya

31.9 M Ft
2 szoba
60 m²
Fonyód
Eladó téglalakás

Fonyód

175 M Ft
3 szoba
79 m²
Bakonyszentlászló
Eladó családi ház

Bakonyszentlászló

48.5 M Ft
3 szoba
103 m²
Győrság
Eladó családi ház

Győrság

89.9 M Ft
4 szoba
92 m²