Aerogate Homes

Eladó ikerház
Pomáz

+ 3 kép 1/6
119 900 000 Ft119.9 M Ft 1 080 180 Ft/m2
5 szoba
111 m2
építés éve:2025

Részletes adatok

Telekméret: 463 m2
Fűtés: Egyéb
Parkolás: Kocsibeálló
Közmű: Víz, Villany, Csatorna
Energetikai besorolás: Nem adta meg a hirdető

Az OTP Bank lakáshitel ajánlataFizetett hirdetés

+36 70 882
Kiss Krisztina
Körültekintő Ingatlan

Érdekel az OTP Bank kedvezményes lakáshitel ajánlata? *

* A kérdésre „Igen” válasz bejelölése esetén, az „Üzenet küldése” gombra kattintva kijelentem, hogy az OTP Bank Nyrt. Adatkezelési tájékoztatójának tartalmát megismertem és tudomásul vettem.

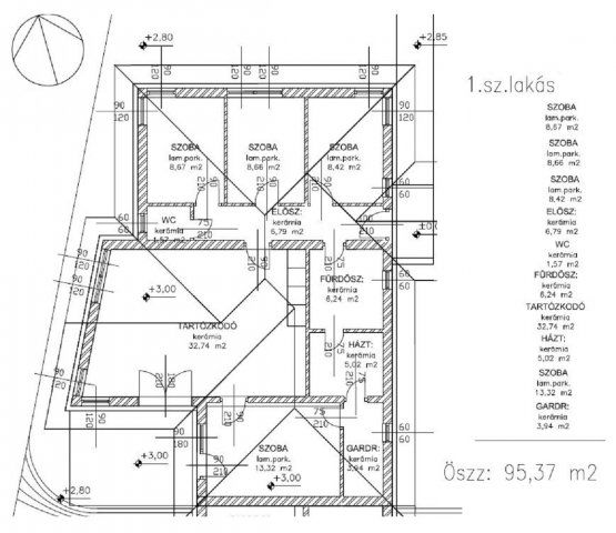
Eladó ikerház leírása

Pomázon a Meselia déli oldalában, csendes környezetben 463 nm-es saját, kizárólagos használatú kerttel rendelkező, egy szintes, nappali + 4 hálószobás ikerház-fél eladó.

Az építéssel kapcsolatos paraméterek:
- Tervezett átadás 2025 IV. negyedév
- hőszivattyús fűtés, padlófűtéssel, radiátorokkal
- magas minőségű hőszigetelés, ZÖLD hitelnek megfelelő energetikai besorolás
- több rétegű, műanyag nyílászárók
- választható belső burkolatok, szaniterek
- riasztó rendszer előkészítés
- 30 nm-es, az amerikai konyhás nappalihoz kapcsolódó terasz
- durva tereprendezés
- kulcsrakész átadás
Finanszírozási lehetőség:
- Zöld hitel kompatibilitás
- CSOK (10+15M) hitel, illeték mentesség, Áfa visszatérítés igényelhető.
- Az alaprajz igény szerint még módosítható.

A beruházó a környék elismert építési vállalkozója, rengeteg referenciamunkával rendelkezik.

Hirdetés feltöltve: 2025. 11. 27.

5 szobás ikerházak ára Pomázon

Ebből az összehasonlításból megtudhatod, hogyan viszonyul a lakás ára a környékbeli ikerházak átlagos árához. Ez nem azt jelenti, hogy ennyivel olcsóbb vagy drágább, mint amennyit a lakás ér, hanem hogy ennyivel tér el a környékbeli átlagtól.

Ennek a m² ára
Pomáz m² ár
1080 e Ft
832 e Ft -30%
Ennek az ára
Pomáz átlagár
119.9 M Ft m Ft
103.5 m Ft -16%

Az ingatlan elhelyezkedése

Cím: Pomáz

Eladó ingatlanok a környékről

Eladó ikerház
Eladó ikerház

Érd, Érdligeten található utca

64.9 M Ft
4 szoba
112 m2
Eladó ikerház
Eladó ikerház

Pomáz

119.9 M Ft
5 szoba
111 m2
Eladó ikerház
Eladó ikerház

Pomáz

85 M Ft
4 szoba
110 m2
Eladó ikerház
Eladó ikerház

Rád

100 M Ft
4 szoba
152 m2
Eladó ikerház
Eladó ikerház

Pomáz

149 M Ft
5 szoba
150 m2
Eladó ikerház
Eladó ikerház

Pomáz

129.3 M Ft
6 szoba
141 m2
Eladó ikerház
Eladó ikerház

Mogyoród, Fóti út

188 M Ft
6 szoba
182 m2
Eladó ikerház
Eladó ikerház

Pomáz

129.5 M Ft
4 szoba
100 m2
Eladó ikerház
Eladó ikerház

Pomáz

149 M Ft
5 szoba
150 m2
Eladó ikerház
Eladó ikerház

Pomáz

82.9 M Ft
2 + 1 szoba
55 m2
Eladó ikerház
Eladó ikerház

Pomáz

85 M Ft
4 szoba
110 m2
Eladó ikerház
Eladó ikerház

Pomáz

122.9 M Ft
5 szoba
115 m2
Eladó családi ház
Eladó családi ház

Kiskunlacháza

87.7 M Ft
4 szoba
91 m2
Eladó ikerház
Eladó ikerház

Pomáz

63.9 M Ft
4 szoba
97 m2
Eladó ikerház
Eladó ikerház

Pomáz

149 M Ft
5 szoba
130 m2
Eladó ikerház
Eladó ikerház

Veresegyház

145 M Ft
4 szoba
120 m2
Eladó ikerház
Eladó ikerház

Vác

149.9 M Ft
5 szoba
202 m2
Eladó ikerház
Eladó ikerház

Szentendre

359 M Ft
5 szoba
289 m2
Eladó ikerház
Eladó ikerház

Tahitótfalu

88.9 M Ft
4 szoba
110 m2
Eladó ikerház
Eladó ikerház

Pomáz

85 M Ft
4 szoba
110 m2
Eladó ikerház
Eladó ikerház

Pomáz

165 M Ft
6 szoba
130 m2
Eladó ikerház
Eladó ikerház

Vác

175.356 M Ft
5 szoba
165 m2
Eladó ipari ingatlan
Eladó ipari ingatlan

Törökbálint

399 M Ft
1512 m²
1438 m2
Eladó nyaraló
Eladó nyaraló

Erdőkertes

64.9 M Ft
2 szoba
40 m2

Falusi CSOK ingatlanok

Eladó családi ház
Eladó családi ház

Pécsvárad

140 M Ft
2 szoba
79 m2
Eladó családi ház
Eladó családi ház

Gyepükaján

12.9 M Ft
2 szoba
70 m2
Eladó családi ház
Eladó családi ház

Seregélyes

75 M Ft
6 szoba
160 m2
Eladó családi ház
Eladó családi ház

Perkáta

62.4 M Ft
5 szoba
120 m2
Eladó családi ház
Eladó családi ház

Ceglédbercel, Iskola utca

79.99 M Ft
5 szoba
90 m2
Eladó családi ház
Eladó családi ház

Márianosztra

85 M Ft
6 szoba
198 m2
Eladó családi ház
Eladó családi ház

Darnózseli

79.9 M Ft
4 szoba
104 m2
Eladó családi ház
Eladó családi ház

Badacsonytomaj

199.8 M Ft
3 szoba
166 m2