Pesti Házak

Eladó ikerház
Pomáz

+ 3 kép 1/6
119 900 000 Ft119.9 M Ft 1 080 180 Ft/m2
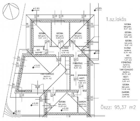
5 szoba
111 m2
építés éve:2025

Részletes adatok

Telekméret: 463 m2
Fűtés: Egyéb
Parkolás: Kocsibeálló
Közmű: Víz, Villany, Csatorna
Energetikai besorolás: Nem adta meg a hirdető

Az OTP Bank lakáshitel ajánlataFizetett hirdetés

+36 70 882
Kiss Krisztina
Körültekintő Ingatlan

Érdekel az OTP Bank kedvezményes lakáshitel ajánlata? *

* A kérdésre „Igen” válasz bejelölése esetén, az „Üzenet küldése” gombra kattintva kijelentem, hogy az OTP Bank Nyrt. Adatkezelési tájékoztatójának tartalmát megismertem és tudomásul vettem.

Eladó ikerház leírása

Pomázon a Meselia déli oldalában, csendes környezetben 463 nm-es saját, kizárólagos használatú kerttel rendelkező, egy szintes, nappali + 4 hálószobás ikerház-fél eladó.

Az építéssel kapcsolatos paraméterek:
- Tervezett átadás 2025 IV. negyedév
- hőszivattyús fűtés, padlófűtéssel, radiátorokkal
- magas minőségű hőszigetelés, ZÖLD hitelnek megfelelő energetikai besorolás
- több rétegű, műanyag nyílászárók
- választható belső burkolatok, szaniterek
- riasztó rendszer előkészítés
- 30 nm-es, az amerikai konyhás nappalihoz kapcsolódó terasz
- durva tereprendezés
- kulcsrakész átadás
Finanszírozási lehetőség:
- Zöld hitel kompatibilitás
- CSOK (10+15M) hitel, illeték mentesség, Áfa visszatérítés igényelhető.
- Az alaprajz igény szerint még módosítható.

A beruházó a környék elismert építési vállalkozója, rengeteg referenciamunkával rendelkezik.

Hirdetés feltöltve: 2025. 11. 03. Utoljára módosítva: 2025. 11. 03.

5 szobás ikerházak ára Pomázon

Ebből az összehasonlításból megtudhatod, hogyan viszonyul a lakás ára a környékbeli ikerházak átlagos árához. Ez nem azt jelenti, hogy ennyivel olcsóbb vagy drágább, mint amennyit a lakás ér, hanem hogy ennyivel tér el a környékbeli átlagtól.

Ennek a m² ára
Pomáz m² ár
1080 e Ft
832 e Ft -30%
Ennek az ára
Pomáz átlagár
119.9 M Ft m Ft
103.5 m Ft -16%

Az ingatlan elhelyezkedése

Cím: Pomáz

Eladó ikerházak a környékről

Eladó ikerház
Eladó ikerház

Pusztazámor

55 M Ft
10 szoba
470 m2
Eladó ikerház
Eladó ikerház

Pomáz

99 M Ft
4 szoba
83 m2
Eladó ikerház
Eladó ikerház

Pomáz

149 M Ft
5 szoba
130 m2
Eladó ikerház
Eladó ikerház

Mogyoród, Fóti út

188 M Ft
6 szoba
182 m2
Eladó ikerház
Eladó ikerház

Pomáz

149 M Ft
5 szoba
150 m2
Eladó ikerház
Eladó ikerház

Pécel

149.9 M Ft
5 szoba
306 m2
Eladó ikerház
Eladó ikerház

Vác

175.356 M Ft
5 szoba
165 m2
Eladó ikerház
Eladó ikerház

Üröm

249.9 M Ft
4 szoba
154 m2
Eladó ikerház
Eladó ikerház

Vác

175.356 M Ft
5 szoba
165 m2
Eladó ikerház
Eladó ikerház

Diósd

206.25 M Ft
5 szoba
184 m2
Eladó ikerház
Eladó ikerház

Pomáz

118.9 M Ft
4 szoba
120 m2
Eladó ikerház
Eladó ikerház

Pomáz

82.5 M Ft
4 szoba
56 m2
Eladó ikerház
Eladó ikerház

Szentendre

179 M Ft
5 + 1 szoba
147 m2
Eladó ikerház
Eladó ikerház

Tahitótfalu

88.9 M Ft
4 szoba
110 m2
Eladó ikerház
Eladó ikerház

Pécel, Pécel - kertváros

127 M Ft
4 szoba
125 m2
Eladó ikerház
Eladó ikerház

Pomáz

139 M Ft
4 szoba
90 m2
Eladó ikerház
Eladó ikerház

Pomáz

128.9 M Ft
5 szoba
115 m2
Eladó ikerház
Eladó ikerház

Vác

96.5 M Ft
4 + 1 szoba
129 m2
Eladó ikerház
Eladó ikerház

Pomáz

149 M Ft
5 szoba
150 m2
Eladó ikerház
Eladó ikerház

Szentendre

359 M Ft
5 szoba
289 m2
Eladó ikerház
Eladó ikerház

Rád

100 M Ft
4 szoba
152 m2
Eladó ikerház
Eladó ikerház

Pomáz

125.9 M Ft
5 szoba
111 m2
Eladó ikerház
Eladó ikerház

Pomáz

85 M Ft
4 szoba
110 m2
Eladó ikerház
Eladó ikerház

Pomáz

165 M Ft
6 szoba
130 m2

Falusi CSOK ingatlanok

Eladó családi ház
Eladó családi ház

Nagyberki, Újváros u

20.9 M Ft
3 szoba
88 m2
Eladó családi ház
Eladó családi ház

Markaz

120 M Ft
4 szoba
136 m2
Eladó családi ház
Eladó családi ház

Tab

49.9 M Ft
2 szoba
62 m2
Eladó családi ház
Eladó családi ház

Pálmonostora

17.4 M Ft
4 szoba
82 m2
Eladó családi ház
Eladó családi ház

Bezenye

84.9 M Ft
4 + 1 szoba
145 m2
Eladó családi ház
Eladó családi ház

Gamás

49.9 M Ft
5 szoba
150 m2
Eladó családi ház
Eladó családi ház

Tápiógyörgye

14.9 M Ft
2 szoba
60 m2
Eladó családi ház
Eladó családi ház

Jakabszállás

69.99 M Ft
1 + 4 szoba
91 m2