Eladó ikerház
Pomáz

+ 3 kép 1/6
119 900 000 Ft119.9 M Ft 1 080 180 Ft/m2
5 szoba
111 m2
építés éve:2025

Részletes adatok

Telekméret: 463 m2
Fűtés: Egyéb
Parkolás: Kocsibeálló
Közmű: Víz, Villany, Csatorna
Energetikai besorolás: Nem adta meg a hirdető

Az OTP Bank lakáshitel ajánlataFizetett hirdetés

+36 70 882
Kiss Krisztina
Körültekintő Ingatlan

Érdekel az OTP Bank kedvezményes lakáshitel ajánlata? *

* A kérdésre „Igen” válasz bejelölése esetén, az „Üzenet küldése” gombra kattintva kijelentem, hogy az OTP Bank Nyrt. Adatkezelési tájékoztatójának tartalmát megismertem és tudomásul vettem.

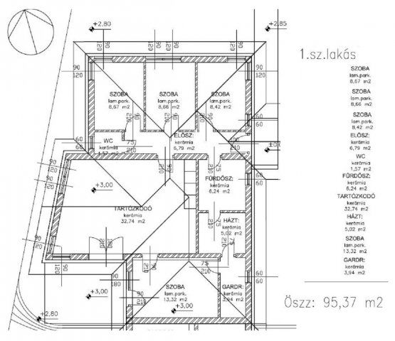
Eladó ikerház leírása

Pomázon a Meselia déli oldalában, csendes környezetben 463 nm-es saját, kizárólagos használatú kerttel rendelkező, egy szintes, nappali + 4 hálószobás ikerház-fél eladó.

Az építéssel kapcsolatos paraméterek:
- Tervezett átadás 2025 IV. negyedév
- hőszivattyús fűtés, padlófűtéssel, radiátorokkal
- magas minőségű hőszigetelés, ZÖLD hitelnek megfelelő energetikai besorolás
- több rétegű, műanyag nyílászárók
- választható belső burkolatok, szaniterek
- riasztó rendszer előkészítés
- 30 nm-es, az amerikai konyhás nappalihoz kapcsolódó terasz
- durva tereprendezés
- kulcsrakész átadás
Finanszírozási lehetőség:
- Zöld hitel kompatibilitás
- CSOK (10+15M) hitel, illeték mentesség, Áfa visszatérítés igényelhető.
- Az alaprajz igény szerint még módosítható.

A beruházó a környék elismert építési vállalkozója, rengeteg referenciamunkával rendelkezik.

Hirdetés feltöltve: 2025. 10. 24. Utoljára módosítva: 2025. 10. 25.

5 szobás ikerházak ára Pomázon

Ebből az összehasonlításból megtudhatod, hogyan viszonyul a lakás ára a környékbeli ikerházak átlagos árához. Ez nem azt jelenti, hogy ennyivel olcsóbb vagy drágább, mint amennyit a lakás ér, hanem hogy ennyivel tér el a környékbeli átlagtól.

Ennek a m² ára
Pomáz m² ár
1080 e Ft
832 e Ft -30%
Ennek az ára
Pomáz átlagár
119.9 M Ft m Ft
103.5 m Ft -16%

Az ingatlan elhelyezkedése

Cím: Pomáz

Eladó ingatlanok a környékről

Eladó ikerház
Eladó ikerház

Szentendre

359 M Ft
5 szoba
289 m2
Eladó ikerház
Eladó ikerház

Pomáz

82.5 M Ft
4 szoba
56 m2
Eladó ikerház
Eladó ikerház

Mogyoród, Fóti út

188 M Ft
6 szoba
182 m2
Eladó ikerház
Eladó ikerház

Pomáz

159 M Ft
5 szoba
155 m2
Eladó ikerház
Eladó ikerház

Pomáz

149 M Ft
5 szoba
150 m2
Eladó ikerház
Eladó ikerház

Pomáz

165 M Ft
6 szoba
130 m2
Eladó ikerház
Eladó ikerház

Pomáz

118.9 M Ft
4 szoba
120 m2
Eladó ikerház
Eladó ikerház

Rád

100 M Ft
4 szoba
152 m2
Eladó ikerház
Eladó ikerház

Pomáz

129.5 M Ft
4 szoba
100 m2
Eladó ikerház
Eladó ikerház

Pomáz

118.9 M Ft
4 szoba
120 m2
Eladó ikerház
Eladó ikerház

Pomáz

100 M Ft
4 + 1 szoba
130 m2
Eladó ikerház
Eladó ikerház

Pomáz

125.9 M Ft
5 szoba
111 m2
Eladó ikerház
Eladó ikerház

Pomáz

149 M Ft
5 szoba
130 m2
Eladó ikerház
Eladó ikerház

Pomáz

99 M Ft
4 szoba
83 m2
Eladó ikerház
Eladó ikerház

Vác

149.9 M Ft
5 szoba
202 m2
Eladó ikerház
Eladó ikerház

Pécel

149.9 M Ft
5 szoba
306 m2
Eladó ikerház
Eladó ikerház

Szentendre, Szentendre

398 M Ft
5 szoba
267 m2
Eladó ikerház
Eladó ikerház

Pomáz

149 M Ft
5 szoba
150 m2
Eladó ikerház
Eladó ikerház

Dunaharaszti

124.999 M Ft
4 szoba
105 m2
Eladó családi ház
Eladó családi ház

Pécel

126.5 M Ft
3 szoba
150 m2
Eladó ikerház
Eladó ikerház

Solymár

150 M Ft
4 + 2 szoba
252 m2
Eladó ikerház
Eladó ikerház

Szentendre

179 M Ft
5 + 1 szoba
147 m2
Eladó ikerház
Eladó ikerház

Pomáz

85 M Ft
4 szoba
110 m2
Eladó ikerház
Eladó ikerház

Dunakeszi

149 M Ft
1 + 4 szoba
127 m2

Falusi CSOK ingatlanok

Eladó családi ház
Eladó családi ház

Nagybaracska

35 M Ft
3 szoba
110 m2
Eladó családi ház
Eladó családi ház

Egyed

24.9 M Ft
2 + 1 szoba
56 m2
Eladó családi ház
Eladó családi ház

Markaz

120 M Ft
4 szoba
136 m2
Eladó családi ház
Eladó családi ház

Csót

12.9 M Ft
3 szoba
104 m2
Eladó ikerház
Eladó ikerház

Balatonakali

165 M Ft
4 szoba
138 m2
Eladó családi ház
Eladó családi ház

Kuncsorba, Kölcsey

14.5 M Ft
3 + 1 szoba
108 m2
Eladó családi ház
Eladó családi ház

Jászjákóhalma

23 M Ft
3 szoba
113 m2
Eladó családi ház
Eladó családi ház

Recsk

21 M Ft
4 szoba
220 m2