Avico Greentop

Eladó ikerház
Pilis

+ 3 kép 1/6
66 625 000 Ft66.625 M Ft 653 186 Ft/m2
3 szoba
102 m2
építés éve:2023

Részletes adatok

Telekméret: 900 m2
Fűtés: Gázkazán
Energetikai besorolás: Nem adta meg a hirdető

Az OTP Bank lakáshitel ajánlataFizetett hirdetés

3629619084
Rizmayer Mária
referens

Érdekel az OTP Bank kedvezményes lakáshitel ajánlata? *

* A kérdésre „Igen” válasz bejelölése esetén, az „Üzenet küldése” gombra kattintva kijelentem, hogy az OTP Bank Nyrt. Adatkezelési tájékoztatójának tartalmát megismertem és tudomásul vettem.

Eladó ikerház leírása

ELADÓ ÚJ ÉPÍTÉSŰ IKERHÁZ PILIS FREKVENTÁLT RÉSZÉN, VASÚTÁLLOMÁS KÖZELÉBEN!

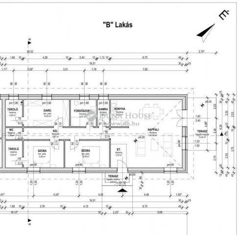
AZ Ingatlan 102 m2 alapterületű egy 900 m2-es telken helyezkedik el. További terasz mérete 20m2. Kiváló lakóközösség zárt Lakóparkban helyezkedik el, új építésű, pár éves ingatlanok szomszédságában.

CSOK, 5%-os áfa, illetékmentesség igénybe vehető.

Kialakítása: 2 szoba, tágas 40 m2-es amerikai nappali konyha, kamra, fürdő+wc, külön wc, gardrób, 2 tároló.

Fűtést gázcirkó biztosítja, mindenhol padlófűtés. Nappaliban 3,5 kw-os inverteres klíma.

EXTRA: viacolor beálló, redőny, Geberit márkájú wc a falba süllyesztve.

Választható hideg és meleg burkolatok 900.000 Ft-ig telje réteg rendben. Dekor fóliás ajtók 60.000 Ft-ig választhatók.

Szigetelés 15 cm, tető szigetelés 30 cm. Sok referencia munkát tudok mutatni, nézzük meg együtt a helyszínt és a kész lakóingatlanokat.
Homlokzat: antracit lábazat, fehér falak, antracit tető.

Közelben: pár perc gyalogosan Vasútállomás, Gyógyszertár... bevásárlási lehetőségek, Iskola, Óvoda.
Budapest autóval M4-es autópálya 25 perc, vonattal Budapest Nyugati Pályaudvarig 50 perc.

Átadás: 2024. augusztus Megbízható kivitelező, több éve a piacon.

Amennyiben felkeltettem érdeklődését, várom megtisztelő hívását a hét bármely napján.
Érd.: Rizmayer Mária +36202114504 email: rizmayer.maria@dh.hu

Referencia szám: HZ099750

Hirdetés feltöltve: 2025. 10. 11. Utoljára módosítva: 2025. 11. 27.

Az ingatlan elhelyezkedése

Cím: Pilis

Eladó ingatlanok a környékről

Eladó telek
Eladó telek

Pomáz

10.7 M Ft
1871 m²
Eladó családi ház
Eladó családi ház

Veresegyház

150 M Ft
5 szoba
164 m2
Eladó ikerház
Eladó ikerház

Pilis

66.625 M Ft
3 szoba
102 m2
Eladó ikerház
Eladó ikerház

Solymár

150 M Ft
4 + 2 szoba
252 m2
Eladó családi ház
Eladó családi ház

Monor

79.99 M Ft
6 szoba
100 m2
Eladó ikerház
Eladó ikerház

Pécel, Pécel - kertváros

127 M Ft
4 szoba
125 m2
Eladó ikerház
Eladó ikerház

Pilisjászfalu

70.563 M Ft
4 szoba
61 m2
Eladó családi ház
Eladó családi ház

Monorierdő

35 M Ft
2 szoba
75 m2
Eladó családi ház
Eladó családi ház

Ócsa

75.75 M Ft
7 szoba
100 m2
Eladó ikerház
Eladó ikerház

Pilis

66.33 M Ft
3 szoba
78 m2
Eladó ikerház
Eladó ikerház

Diósd

206.25 M Ft
5 szoba
184 m2
Eladó ikerház
Eladó ikerház

Pusztazámor

55 M Ft
10 szoba
470 m2
Eladó családi ház
Eladó családi ház

Pilis

10.49 M Ft
2 szoba
26 m2
Eladó ikerház
Eladó ikerház

Pilis

68 M Ft
4 szoba
90 m2
Eladó családi ház
Eladó családi ház

Szigethalom

85.9 M Ft
6 szoba
130 m2
Eladó családi ház
Eladó családi ház

Vecsés

99 M Ft
4 szoba
129 m2
Eladó ikerház
Eladó ikerház

Dunaharaszti

124.999 M Ft
4 szoba
105 m2
Eladó ikerház
Eladó ikerház

Szentendre

359 M Ft
5 szoba
289 m2
Eladó ikerház
Eladó ikerház

Érd, Érdligeten található utca

64.9 M Ft
4 szoba
112 m2
Eladó ikerház
Eladó ikerház

Rád

100 M Ft
4 szoba
152 m2
Eladó ikerház
Eladó ikerház

Dunakeszi

149 M Ft
1 + 4 szoba
127 m2
Eladó ikerház
Eladó ikerház

Pécel

149.9 M Ft
5 szoba
306 m2
Eladó ikerház
Eladó ikerház

Pilis

68 M Ft
4 szoba
90 m2
Eladó ikerház
Eladó ikerház

Vác

94.5 M Ft
4 + 1 szoba
126 m2

Falusi CSOK ingatlanok

Eladó családi ház
Eladó családi ház

Nagybörzsöny

36 M Ft
2 + 1 szoba
74 m2
Eladó családi ház
Eladó családi ház

Dunavecse

25 M Ft
3 szoba
120 m2
Eladó családi ház
Eladó családi ház

Bócsa

68 M Ft
3 szoba
100 m2
Eladó családi ház
Eladó családi ház

Seregélyes

75 M Ft
6 szoba
160 m2
Eladó családi ház
Eladó családi ház

Tokod

89 M Ft
6 szoba
187 m2
Eladó családi ház
Eladó családi ház

Ónod, Kossuth út 10

27.499 M Ft
3 + 2 szoba
120 m2
Eladó családi ház
Eladó családi ház

Úri

260 M Ft
7 szoba
300 m2
Eladó családi ház
Eladó családi ház

Törtel

25.9 M Ft
5 szoba
95 m2