City Pearl

Eladó ikerház
Pécel

+ 16 kép 1/19
133 000 000 Ft133 M Ft 801 205 Ft/m2
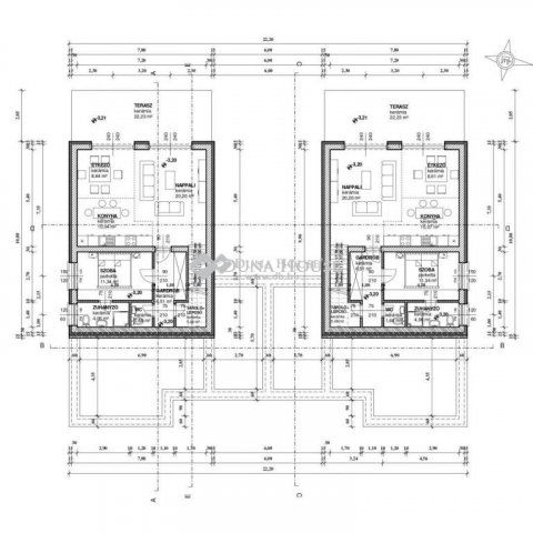
5 szoba
166 m²
építés éve:2025

Részletes adatok

Telekméret: 503 m2
Fűtés: Egyéb
Energetikai besorolás: Nem adta meg a hirdető

Az OTP Bank lakáshitel ajánlataFizetett hirdetés

3629998809
Fülöp Katalin
referens

Érdekel az OTP Bank kedvezményes lakáshitel ajánlata? *

* A kérdésre „Igen” válasz bejelölése esetén, az „Üzenet küldése” gombra kattintva kijelentem, hogy az OTP Bank Nyrt. Adatkezelési tájékoztatójának tartalmát megismertem és tudomásul vettem.

Eladó ikerház leírása

Páskomliget Lakópark – panorámás, újépítésű, hőszivattyús, 5 szobás otthon garázzsal!

Ha Önt vonzza a modern építészet, a környezettudatos életmód és a természet közelsége, akkor ez az otthon Pécel egyik legszebb részén tökéletes választás.
A Páskomliget lakópark biztonságos, rendezett és exkluzív környezete ideális mindazoknak, akik magas színvonalú életminőségre vágynak.

A házhoz tartozó garázs kényelmes parkolást biztosít, a 5 szoba pedig kiválóan kiszolgál nagycsaládosokat vagy azokat, akik tágas, jól megtervezett tereket keresnek.

A napfényes amerikai konyhás nappali és a hatalmas terasz lenyűgöző panorámát kínál a környező tájra.

Főbb jellemzők
- alumínium redőnyök
- 3 rétegű, 5 légkamrás műanyag nyílászárók
- klíma előkészítés
- 10 cm grafitos homlokzati szigetelés
- tetőn 20 cm kőzetgyapot szigetelés
- garázsban is padlófűtés
- vízlágyító és vízszűrő berendezés
- teraszokon üvegkorlát
- autóbeállónál és a ház körül viacolor burkolat

Modern, energiahatékony fűtés
A fűtésről legújabb technológiájú hőszivattyú gondoskodik, teljes körű padlófűtéssel.
A ház DNY-i tájolása miatt egész nap világos, napfényes, így a természetes fény és a panoráma minden évszakban élvezhető.

Tágas, jól átgondolt elrendezés
- amerikai konyhás nappali
- 5 külön nyíló szoba
- nagy méretű terasz panorámával
- garázs
- modern, letisztult belső terek
A kialakítás ideális nagycsaládosoknak, otthoni munkavégzéshez vagy azoknak, akik szeretik a tágas, világos tereket.

Átadás várható: 2025 év vége
Új tulajdonosa egy modern, energiahatékony, hosszú távon értékálló otthont kap Pécel egyik legkedveltebb lakóparkjában.
Forduljon hozzám bizalommal a Duna House teljes kínálatával kapcsolatban, illetve eladási szándékával!
Szolgáltatásaink között megtalálható:
-Ingyenes hitelügyintézés a nemzetközileg elismert Credipass segítségével, garantáltan a legjobb feltételekkel és a leggyorsabb ügyintézéssel.
-Teljes körű ügyintézés ingatlan eladásához és vételéhez.
-Energetikai tanúsítvány készítése gyorsan és megbízhatóan.
-Ingyenes tanácsadás és értékbecslés, hogy a legjobb döntést hozhassa meg.
-Megbízható ügyvédi háttér biztosítása az adásvétel zökkenőmentes lebonyolításához.

Érd.: Fülöp Katalin tel.: +36703500147 email: fulop.katalin@dh.hu

Referencia szám: HZ015946

Hirdetés feltöltve: 2026. 02. 16. Utoljára módosítva: 2026. 02. 16.

5 szobás ikerházak ára Pécelen

Ebből az összehasonlításból megtudhatod, hogyan viszonyul a lakás ára a környékbeli ikerházak átlagos árához. Ez nem azt jelenti, hogy ennyivel olcsóbb vagy drágább, mint amennyit a lakás ér, hanem hogy ennyivel tér el a környékbeli átlagtól.

Ennek a m² ára
Pécel m² ár
801 e Ft
782 e Ft -2%
Ennek az ára
Pécel átlagár
133 M Ft m Ft
161.4 m Ft 18%

Az ingatlan elhelyezkedése

Cím: Pécel

Eladó ikerházak a környékről

Pécel
Eladó ikerház

Pécel

95.9 M Ft
3 + 1 szoba
98 m²
Veresegyház
Eladó ikerház

Veresegyház

145 M Ft
4 szoba
120 m²
Diósd
Eladó ikerház

Diósd

213.46 M Ft
5 szoba
186 m²
Pécel
Eladó ikerház

Pécel

369 M Ft
11 szoba
430 m²
Pécel
Eladó ikerház

Pécel

125 M Ft
2 + 2 szoba
113 m²
Pécel
Eladó ikerház

Pécel

369 M Ft
11 szoba
430 m²
Mogyoród
Eladó ikerház

Mogyoród

129 M Ft
5 szoba
123 m²
Vác
Eladó ikerház

Vác

149.9 M Ft
5 szoba
202 m²
Pilisjászfalu
Eladó ikerház

Pilisjászfalu

82.279 M Ft
4 szoba
73 m²
Pécel
Eladó ikerház

Pécel

139 M Ft
6 szoba
200 m²
Pécel
Eladó ikerház

Pécel

119.9 M Ft
6 szoba
140 m²
Pécel, Pécel - kertváros
Eladó ikerház

Pécel

127 M Ft
4 szoba
125 m²
Dunakeszi
Eladó ikerház

Dunakeszi

149 M Ft
1 + 4 szoba
127 m²
Pécel, Pécel - kertváros
Eladó ikerház

Pécel

127 M Ft
4 szoba
125 m²
Pécel
Eladó ikerház

Pécel

153 M Ft
5 szoba
217 m²
Pomáz
Eladó ikerház

Pomáz

129.5 M Ft
4 szoba
100 m²
Pusztazámor
Eladó ikerház

Pusztazámor

55 M Ft
10 szoba
470 m²
Pécel
Eladó ikerház

Pécel

99.8 M Ft
4 szoba
101 m²
Pécel
Eladó ikerház

Pécel

155 M Ft
5 szoba
153 m²
Pécel
Eladó ikerház

Pécel

149.9 M Ft
5 szoba
306 m²
Vác
Eladó ikerház

Vác

89.9 M Ft
4 szoba
91 m²
Pécel
Eladó ikerház

Pécel

155 M Ft
5 szoba
153 m²
Pécel
Eladó ikerház

Pécel

133 M Ft
5 szoba
166 m²
Vácrátót
Eladó ikerház

Vácrátót

99.9 M Ft
3 + 2 szoba
112 m²

Falusi CSOK ingatlanok

Fertőszentmiklós
Eladó családi ház

Fertőszentmiklós

94.5 M Ft
2 + 2 szoba
130 m²
Kaposgyarmat
Eladó családi ház

Kaposgyarmat

695 M Ft
6 szoba
610 m²
Csemő
Eladó családi ház

Csemő

36.6 M Ft
1 szoba
48 m²
Bag
Eladó családi ház

Bag

16.9 M Ft
6 szoba
160 m²
Devecser
Eladó családi ház

Devecser

33.9 M Ft
4 szoba
120 m²
Mocsa
Eladó családi ház

Mocsa

35 M Ft
4 szoba
97 m²
Kenyeri
Eladó családi ház

Kenyeri

39.9 M Ft
3 szoba
94 m²
Törtel
Eladó családi ház

Törtel

25.9 M Ft
2 szoba
59 m²