Pesti Házak

Eladó ikerház
Pápa

+ 1 kép 1/4
58 900 000 Ft58.9 M Ft 499 153 Ft/m2
3 szoba
118 m2
építés éve:2025

Részletes adatok

Telekméret: 608 m2
Fűtés: Egyéb
Közmű: Villany, Csatorna
Energetikai besorolás: Nem adta meg a hirdető

Az OTP Bank lakáshitel ajánlataFizetett hirdetés

+36 70 467
Tóth Veronika
referens

Érdekel az OTP Bank kedvezményes lakáshitel ajánlata? *

* A kérdésre „Igen” válasz bejelölése esetén, az „Üzenet küldése” gombra kattintva kijelentem, hogy az OTP Bank Nyrt. Adatkezelési tájékoztatójának tartalmát megismertem és tudomásul vettem.

Eladó ikerház leírása

Fedezze fel ezt a kivételes lehetőséget, amelyet most kínálok Önnek! Ez a gyönyörű, új építésű ház Veszprém vármegye szívében, Pápán található, és minden igényt kielégít, amit egy modern otthon nyújthat.
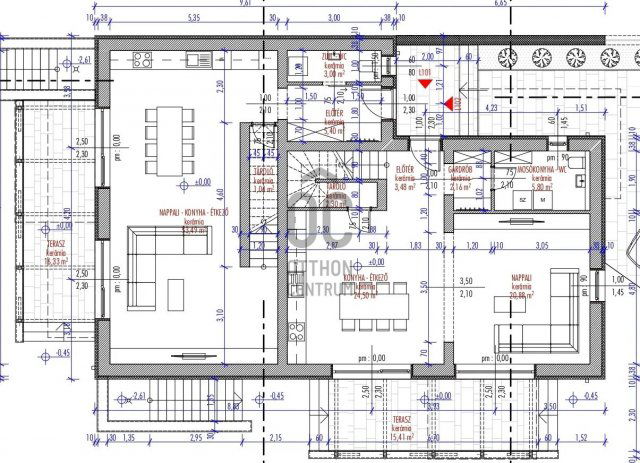
Az ingatlan alapterülete 118 négyzetméter, amely tökéletesen megtervezett belső terével és 3 tágas szobájával ideális választás családok számára, vagy akár befektetési célra is. A ház egy fürdőszobával rendelkezik, amely a kényelmet és a funkcionalitást egyesíti, így minden lakó számára kellemes élményt nyújt.
Az ingatlan elhelyezkedése páratlan, hiszen a csendes, nyugodt környezet garantálja a pihenést és a kikapcsolódást. A telek mérete 608 négyzetméter, amely lehetőséget ad a szép kertrendezésre, vagy akár egy medence kialakítására is.
A hőszivattyús fűtés nemcsak környezetbarát megoldás, de a fűtési költségeket is kedvezően befolyásolja, így Ön hosszú távon is költséghatékony megoldást választhat.
Az épület jelenleg kb. 30 %-os készültségű, a munkálatok jelenleg is folynak. Várható befejezés: 2026 nyarán.
A lakások teljesen elkülönülnek egymástól: külön bejárat, terasz, pincerész, udvarrész.
Fűtéskész (vakolt falak, homlokzati nyílászárók, víz,-csatorna,- alapszerelés, padlófűtés hőszivattyúval, esztrich réteggel, villamos alapszerelés) készültség: 58.900.000,- Ft Kulcsrakész kivitel: 74.900.000.-Ft

Pápa városa gazdag történelmi örökséggel bír, és számos kulturális lehetőséget kínál. Az ingatlan közelében található iskolák, óvodák, boltok és egészségügyi intézmények mind hozzájárulnak ahhoz, hogy a mindennapi élet kényelmes és zökkenőmentes legyen. A közlekedési lehetőségek is kedvezőek, hiszen a városban jól kiépített tömegközlekedési hálózat működik, így könnyedén elérheti a környező településeket és a város központját is. A környék biztonságos és családbarát, ami különösen fontos lehet a gyermekes családok számára. A csendes utcák és a barátságos szomszédság garantálják, hogy itt valóban otthonra találhat. A természet közelsége pedig lehetőséget ad a szabadidős tevékenységekre, mint például a kerékpározás vagy a túrázás.
Ez az ingatlan nem csupán egy ház, hanem egy lehetőség arra, hogy egy igazán különleges helyen éljen, ahol a modern kényelem és a természet közelsége egyesül. Ha felkeltette érdeklődését, kérem, ne habozzon, keressen bizalommal bármilyen kérdéssel kapcsolatban! Szívesen segítek Önnek az ingatlan megtekintésében, és válaszolok minden felmerülő kérdésére. Ne hagyja ki ezt a remek lehetőséget, hiszen az álmai otthona már csak egy telefonhívásnyira van!

Hirdetés feltöltve: 2025. 10. 20. Utoljára módosítva: 2025. 11. 03.

Az ingatlan elhelyezkedése

Cím: Pápa

Eladó ingatlanok a környékről

Eladó családi ház
Eladó családi ház

Balatonfőkajár

39.9 M Ft
2 szoba
95 m2
Eladó ikerház
Eladó ikerház

Balatonkenese, Tulipán utca

79.9 M Ft
4 szoba
80 m2
Eladó családi ház
Eladó családi ház

Balatonfűzfő, Radnóti Miklós utca

85.9 M Ft
5 szoba
168 m2
Eladó ikerház
Eladó ikerház

Balatonfüred

224.75 M Ft
4 szoba
165 m2
Eladó panellakás
Eladó panellakás

Veszprém, Jutasi úti lakótelep, Munkácsy Mihály utca

54.9 M Ft
3 szoba
53 m2
Eladó üzlethelyiség
Eladó üzlethelyiség

Várpalota, Tési Út

27.99 M Ft
60 m2
Eladó téglalakás
Eladó téglalakás

Balatonfüred

85 M Ft
3 szoba
89 m2
Eladó családi ház
Eladó családi ház

Bakonybél

91.5 M Ft
5 szoba
211 m2
Eladó téglalakás
Eladó téglalakás

Balatonfüred, Aranyhíd sétány

419 M Ft
4 szoba
159 m2
Eladó ikerház
Eladó ikerház

Pápa

86.83 M Ft
4 szoba
91 m2
Eladó családi ház
Eladó családi ház

Pápa

135 M Ft
4 szoba
155 m2
Eladó üzlethelyiség
Eladó üzlethelyiség

Tihany

480 M Ft
800 m²
350 m2
Eladó ikerház
Eladó ikerház

Balatonfüred

220 M Ft
4 szoba
164 m2
Eladó ikerház
Eladó ikerház

Balatonfüred

269 M Ft
4 szoba
294 m2
Eladó ikerház
Eladó ikerház

Révfülöp

119 M Ft
5 szoba
203 m2
Eladó ikerház
Eladó ikerház

Pápa

44.5 M Ft
4 szoba
99 m2
Eladó ikerház
Eladó ikerház

Zánka

285.25 M Ft
4 szoba
163 m2
Eladó ikerház
Eladó ikerház

Balatonfüred

281.801 M Ft
6 szoba
225 m2
Eladó családi ház
Eladó családi ház

Pápa

39.9 M Ft
2 + 2 szoba
93 m2
Eladó ikerház
Eladó ikerház

Zánka

260.8 M Ft
4 szoba
163 m2
Eladó ikerház
Eladó ikerház

Balatonfüred

224.75 M Ft
4 szoba
165 m2
Eladó ikerház
Eladó ikerház

Hajmáskér

39 M Ft
4 szoba
125 m2
Eladó ikerház
Eladó ikerház

Pápa

40 M Ft
3 szoba
89 m2
Eladó ikerház
Eladó ikerház

Pápa

75 M Ft
4 szoba
118 m2

Falusi CSOK ingatlanok

Eladó családi ház
Eladó családi ház

Galgagyörk

69.9 M Ft
3 szoba
110 m2
Eladó családi ház
Eladó családi ház

Pannonhalma

76.4 M Ft
4 szoba
97 m2
Eladó családi ház
Eladó családi ház

Nemesszentandrás

75 M Ft
4 szoba
164 m2
Eladó családi ház
Eladó családi ház

Taktaharkány

16.9 M Ft
4 + 1 szoba
140 m2
Eladó családi ház
Eladó családi ház

Akasztó

13.9 M Ft
3 szoba
103 m2
Eladó családi ház
Eladó családi ház

Tápiószőlős

17 M Ft
2 szoba
60 m2
Eladó téglalakás
Eladó téglalakás

Balatonszemes

244.5 M Ft
3 szoba
107 m2
Eladó családi ház
Eladó családi ház

Pécsely, Szőlő Dülő

499 M Ft
4 + 2 szoba
183 m2