City Pearl

Eladó ikerház
Mogyoród

+ 3 kép 1/6
122 490 000 Ft122.49 M Ft 862 606 Ft/m2
5 szoba
142 m²
építés éve:2026

Részletes adatok

Telekméret: 240 m2
Fűtés: Egyéb
Parkolás: Kocsibeálló
Energetikai besorolás: A+

Az OTP Bank lakáshitel ajánlataFizetett hirdetés

+36 70 490
Nagy Barbara
referens

Érdekel az OTP Bank kedvezményes lakáshitel ajánlata? *

* A kérdésre „Igen” válasz bejelölése esetén, az „Üzenet küldése” gombra kattintva kijelentem, hogy az OTP Bank Nyrt. Adatkezelési tájékoztatójának tartalmát megismertem és tudomásul vettem.

Eladó ikerház leírása

MOGYORÓD, ÚJÉPÍTÉSŰ IKERHÁZ, korszerű megoldásokkal, 5 SZOBÁVAL!
20% ÖNERŐVEL MEGVÁSÁROLHATÓ!
Építkezès folyamatban!
Eladásra kínálok Mogyoród belterületi részén, újszerű házak szomszédságában, kiváló közlekedéssel kettő ikerház felet.
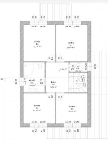
Felosztásauk: földszint+emelet, mindez 142 nm alapterületen!
A házba érve az előszobából nyílik a háztatrtási helyiség, a fürdőszoba, egy különálló mosdó, és a 32 nm nagyásgú tágas, és világos amerikai konyhás nappali, amelyből a közel 9 nm nagyságú teraszra érkezünk.
Az emeleten 4 db hálószoba, egy fürdőszoba, és egy különálló mosdó szolgálja a kényelmet.
30-as porotherm tégla falak, melyeket 10 cm vastag ytong válaszfalak egészítenek ki!
Hőszigetelés:
A külső falak külső síkján 10 cm hőszigetelés készül. A lábazati hőszigetelés a terepcsatlakozástól számított 30 cm-ig zártcellás hőszigetelésből készül 10 cm vastagsággal.
A tetőszerkezet alá 30 cm hőszigetelés kerül.
A földszinti padozat alatt 10+5 cm lépésálló hőszigetelés készül
A fűtést hőszívattyú biztosítja, padlőfűtéses hőleadással.
Az ablakok thermo üvegek.
Mit tartalmaz még az ár? Az ár tartalmazza az elektromos kapu, klíma,
kamerarendszer és riasztórendszer kiállásait is!
Mindez 862.676. ft-os négyzetméteráron!
Fontos kiemelni, hogy amint a látványterveken is látszik egymás mellett elhelyezkedő, külön bejárattal rendelkeő ikerház, vagyis maximális az intimitás a saját területen!
Hívjon bizalommal! ...TOVÁBBI, TÖBBEZRES INGATLAN KÍNÁLAT: www.gdn-ingatlan.hu - GDN azonosító: 392851

Hirdetés feltöltve: 2026. 02. 21. Utoljára módosítva: 2026. 04. 20.

5 szobás ikerházak ára Mogyoródon

Ebből az összehasonlításból megtudhatod, hogyan viszonyul a lakás ára a környékbeli ikerházak átlagos árához. Ez nem azt jelenti, hogy ennyivel olcsóbb vagy drágább, mint amennyit a lakás ér, hanem hogy ennyivel tér el a környékbeli átlagtól.

Ennek a m² ára
Mogyoród m² ár
863 e Ft
1073 e Ft 20%
Ennek az ára
Mogyoród átlagár
122.49 M Ft m Ft
161.6 m Ft 24%

Az ingatlan elhelyezkedése

Cím: Mogyoród

Eladó ikerházak a környékről

Mogyoród
Eladó ikerház

Mogyoród

198.75 M Ft
4 szoba
178 m²
Mogyoród
Eladó ikerház

Mogyoród

125 M Ft
4 szoba
140 m²
Mogyoród
Eladó ikerház

Mogyoród

135 M Ft
5 szoba
137 m²
Mogyoród
Eladó ikerház

Mogyoród

135 M Ft
5 szoba
137 m²
Herceghalom
Eladó ikerház

Herceghalom

148 M Ft
5 szoba
134 m²
Vác
Eladó ikerház

Vác

149.9 M Ft
5 szoba
202 m²
Mogyoród
Eladó ikerház

Mogyoród

199.99 M Ft
4 szoba
160 m²
Mogyoród
Eladó ikerház

Mogyoród

99.9 M Ft
5 szoba
109 m²
Pécel
Eladó ikerház

Pécel

149.9 M Ft
5 szoba
306 m²
Mogyoród
Eladó ikerház

Mogyoród

125 M Ft
5 szoba
133 m²
Nagytarcsa
Eladó ikerház

Nagytarcsa

119.9 M Ft
4 szoba
103 m²
Érd
Eladó ikerház

Érd

177.7 M Ft
7 szoba
181 m²
Diósd
Eladó ikerház

Diósd

213.46 M Ft
5 szoba
186 m²
Szentendre
Eladó ikerház

Szentendre

179 M Ft
5 + 1 szoba
147 m²
Vác
Eladó ikerház

Vác

96.7 M Ft
4 + 1 szoba
126 m²
Mogyoród
Eladó ikerház

Mogyoród

124.99 M Ft
4 szoba
115 m²
Mogyoród
Eladó ikerház

Mogyoród

120 M Ft
4 szoba
126 m²
Mogyoród
Eladó ikerház

Mogyoród

129 M Ft
5 szoba
123 m²
Budakalász
Eladó ikerház

Budakalász

195 M Ft
5 + 2 szoba
170 m²
Budakalász
Eladó ikerház

Budakalász

159 M Ft
6 szoba
140 m²
Herceghalom
Eladó ikerház

Herceghalom

99 M Ft
4 szoba
106 m²
Mogyoród
Eladó ikerház

Mogyoród

129 M Ft
5 szoba
123 m²
Szentendre
Eladó ikerház

Szentendre

359 M Ft
5 + 1 szoba
289 m²
Mogyoród
Eladó ikerház

Mogyoród

135 M Ft
5 szoba
137 m²

Falusi CSOK ingatlanok

Szigetújfalu
Eladó családi ház

Szigetújfalu

71.65 M Ft
2 + 1 szoba
81 m²
Galgamácsa
Eladó családi ház

Galgamácsa

79.9 M Ft
4 szoba
110 m²
Szabadbattyán
Eladó családi ház

Szabadbattyán

147.99 M Ft
5 szoba
255 m²
Hosszúhetény, Petőfi Sándor utca 10
Eladó családi ház

Hosszúhetény

20.65 M Ft
4 + 2 szoba
133 m²
Baks
Eladó családi ház

Baks

18.9 M Ft
3 szoba
118 m²
Jakabszállás
Eladó családi ház

Jakabszállás

105 M Ft
6 szoba
180 m²
Ónod
Eladó családi ház

Ónod

25.9 M Ft
3 + 1 szoba
180 m²
Pécsvárad
Eladó családi ház

Pécsvárad

189 M Ft
7 szoba
618 m²