Oasis Residence

Eladó ikerház
Keszthely

+ 1 kép 1/4
108 000 000 Ft108 M Ft 870 968 Ft/m2
3 szoba
124 m2
építés éve:2026

Részletes adatok

Telekméret: 400 m2
Fűtés: Egyéb
Parkolás: Garázs
Energetikai besorolás: Nem adta meg a hirdető

Az OTP Bank lakáshitel ajánlataFizetett hirdetés

+36 30 338
Fekete Bence
BJ Ingatlan

Érdekel az OTP Bank kedvezményes lakáshitel ajánlata? *

* A kérdésre „Igen” válasz bejelölése esetén, az „Üzenet küldése” gombra kattintva kijelentem, hogy az OTP Bank Nyrt. Adatkezelési tájékoztatójának tartalmát megismertem és tudomásul vettem.

Eladó ikerház leírása

Keszthely és Cserszegtomaj határában, egy új építésű projekt keretein belül, a Panoráma Lakóparkban, összesen 6 lakóegység épül, 3 különálló ikerház formájában.

A hirdetésben szereplő ikerházfél alapterülete 124 nm, garázzsal és terasszal együtt.
Minden épületrészhez 400 nm saját, kerített kert tartozik.
A lakrészek között kaptak helyet a garázsok, így kellően intim minden élettér.

Az ingatlanról bővebben:

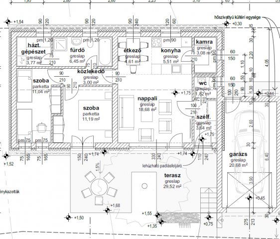
73,89 nm hasznos lakótér, plusz 29,52 nm terasz, és 20,68 nm garázs
30-as Porotherm N+F tégla falazat
Tető héjazata betoncserép
Az épületek a mai legmodernebb technológiával, korszerű anyagok felhasználásával épülnek
Fűtésről hőszivattyús rendszer gondoskodik, padlófűtésre csatlakoztatva
A hűtést szintén a hőszivattyú szolgáltatja, fancoil-ok segítségével

Helyiségek:

Előtér: 2.52 m2
WC: 1.68 m2
Kamra: 1.40 m2
Konyha-étkező: 12.59 m2
Nappali: 19.36 m2
Szoba: 11.04 m2
Szoba: 11.19 m2
Háztartási helyiség: 3.69 m2
Fürdő: 6.57 m2
Közlekedő: 3 m2
Összesen: 73.89 m2

+ Garázs: 20.68 m2
+ Terasz: 29.52 m2

A lakások kulcsrakész állapotban kerülnek átadásra.
A hálószobák parketta, a többi helyiség gres lap padlóburkolatot kapnak.
A belső nyílászárók, és burkolatok színei választható.
A vételár nem tartalmazza a konyhabútor beépítését.
Várható átadás 2026 ősz.
Összesen 6 lakóegység épül hasonló paraméterekkel.
Komoly érdeklődés esetén a teljes tervdokumentáció, és műszaki leírás biztosított.

A kivitelező cég nagy múlttal rendelkezik az építőipar területén, megbízható, kiváló minőségben épít.
Számos referenciája megtekinthető a környéken.

További információért, és személyes megtekintéssel kapcsolatban keressen bizalommal a megadott elérhetőségeken.
Előre egyeztetett időpontban szívesen megmutatom a teljes projektet!

Fekete Bence
BJ Ingatlan

Hirdetés feltöltve: 2025. 12. 18. Utoljára módosítva: 2026. 01. 14.

Az ingatlan elhelyezkedése

Cím: Keszthely

Eladó ingatlanok a környékről

Eladó családi ház
Eladó családi ház

Zalabér

19.9 M Ft
2 + 1 szoba
73 m2
Eladó ikerház
Eladó ikerház

Keszthely, József Attila utca

187 M Ft
5 szoba
149 m2
Eladó ikerház
Eladó ikerház

Keszthely, József Attila utca

120 M Ft
4 szoba
98 m2
Eladó ikerház
Eladó ikerház

Keszthely, József Attila utca

120 M Ft
4 szoba
98 m2
Eladó ikerház
Eladó ikerház

Keszthely, Mátyás Király 26

104.9 M Ft
5 + 1 szoba
109 m2
Eladó ikerház
Eladó ikerház

Keszthely, Tapolcai út

57.5 M Ft
5 szoba
113 m2
Eladó ikerház
Eladó ikerház

Keszthely, József Attila utca

120 M Ft
4 szoba
98 m2
Eladó ikerház
Eladó ikerház

Keszthely

44.9 M Ft
4 szoba
107 m2
Eladó ikerház
Eladó ikerház

Keszthely

128 M Ft
4 szoba
122 m2
Eladó ikerház
Eladó ikerház

Gellénháza, Olajbányász körút

45.9 M Ft
3 szoba
80 m2
Eladó ikerház
Eladó ikerház

Keszthely, József Attila utca

120 M Ft
3 szoba
98 m2
Eladó ikerház
Eladó ikerház

Felsőpáhok

57.899 M Ft
1 + 2 szoba
115 m2
Eladó ikerház
Eladó ikerház

Vonyarcvashegy

112 M Ft
4 szoba
128 m2
Eladó telek
Eladó telek

Keszthely

35 M Ft
428 m²
Eladó ikerház
Eladó ikerház

Keszthely

108 M Ft
4 + 1 szoba
100 m2
Eladó ikerház
Eladó ikerház

Keszthely, József Attila utca

120 M Ft
3 szoba
98 m2
Eladó telek
Eladó telek

Vonyarcvashegy

42 M Ft
804 m²
Eladó ikerház
Eladó ikerház

Zalaegerszeg

29.9 M Ft
2 szoba
125 m2
Eladó ikerház
Eladó ikerház

Keszthely, József Attila utca

187 M Ft
5 szoba
149 m2
Eladó ikerház
Eladó ikerház

Keszthely

109.9 M Ft
3 szoba
106 m2
Eladó családi ház
Eladó családi ház

Zalaszentgrót

8.5 M Ft
2 szoba
48 m2
Eladó ikerház
Eladó ikerház

Keszthely

40 M Ft
1 szoba
60 m2
Eladó családi ház
Eladó családi ház

Zalaegerszeg, Toldi Miklós utca

139.9 M Ft
6 szoba
130 m2
Eladó ikerház
Eladó ikerház

Alsópáhok

97.9 M Ft
5 szoba
190 m2

Falusi CSOK ingatlanok

Eladó családi ház
Eladó családi ház

Verseg

54 M Ft
2 szoba
92 m2
Eladó családi ház
Eladó családi ház

Rádfalva

13.8 M Ft
2 szoba
68 m2
Eladó családi ház
Eladó családi ház

Borszörcsök

13.99 M Ft
3 szoba
178 m2
Eladó családi ház
Eladó családi ház

Kenyeri

21.8 M Ft
2 szoba
75 m2
Eladó téglalakás
Eladó téglalakás

Balatonszemes

244.5 M Ft
3 szoba
107 m2
Eladó családi ház
Eladó családi ház

Pánd

28.9 M Ft
3 szoba
74 m2
Eladó családi ház
Eladó családi ház

Kislippó

16 M Ft
3 szoba
100 m2
Eladó családi ház
Eladó családi ház

Bagod

52 M Ft
2 + 2 szoba
112 m2