BAM Living

Eladó ikerház
Kecskemét

+ 2 kép 1/5
83 900 000 Ft83.9 M Ft 921 978 Ft/m2
4 szoba
91 m2
építés éve:2026

Részletes adatok

Telekméret: 360 m2
Fűtés: Gázkazán
Energetikai besorolás: Nem adta meg a hirdető

Az OTP Bank lakáshitel ajánlataFizetett hirdetés

+36 70 415
Veligdán Gabriella
HOUSE36 Ingatlanhálózat

Érdekel az OTP Bank kedvezményes lakáshitel ajánlata? *

* A kérdésre „Igen” válasz bejelölése esetén, az „Üzenet küldése” gombra kattintva kijelentem, hogy az OTP Bank Nyrt. Adatkezelési tájékoztatójának tartalmát megismertem és tudomásul vettem.

Eladó ikerház leírása

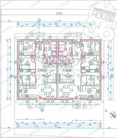
Új építésű 91 m2 es, nappali + 3 szobás ikerház eladó Kecskeméten!

Jellemzői:

2026januári átadás
nappali + 3 szoba
3%-os hitelre 10% önerővel megvásárolható
91 m2
téglaépítés
bioderítő
2 db klíma
gáz - cirkó fűtés BAXI kazánnal, padlófűtés
360 m2 telek
burkolat választható
15 cm-es szigetelés, 30 cm födémszigetelés



A tulajdonos kérésére az ingatlan bemutatása egy személyes konzultáció után történik, ahol részletes tájékoztatást kaphat az ingatlan paramétereiről és egyéb kényelmi szolgáltatásairól !Figyelem az adatlap megbízónktól kapott adatok alapján készült, pontosságáért felelősséget nem tudunk vállalni!

83900000 Ft
Az iroda legfrissebb, aktuális kínálatát a HOUSE36 saját weboldalán találja.

Referencia szám: 3620802

Hirdetés feltöltve: 2025. 11. 13. Utoljára módosítva: 2025. 11. 26.

4 szobás ikerházak ára Kecskeméten

Ebből az összehasonlításból megtudhatod, hogyan viszonyul a lakás ára a környékbeli ikerházak átlagos árához. Ez nem azt jelenti, hogy ennyivel olcsóbb vagy drágább, mint amennyit a lakás ér, hanem hogy ennyivel tér el a környékbeli átlagtól.

Ennek a m² ára
Kecskemét m² ár
922 e Ft
888 e Ft -4%
Ennek az ára
Kecskemét átlagár
83.9 M Ft m Ft
92.5 m Ft 9%

Az ingatlan elhelyezkedése

Cím: Kecskemét

Eladó ikerházak a környékről

Eladó ikerház
Eladó ikerház

Kecskemét, Bethlen-város, Szarvas utca

70 M Ft
4 szoba
110 m2
Eladó ikerház
Eladó ikerház

Kecskemét

114.99 M Ft
7 szoba
200 m2
Eladó ikerház
Eladó ikerház

Kecskemét, Bethlen-város, Szarvas utca

70 M Ft
4 szoba
110 m2
Eladó ikerház
Eladó ikerház

Kiskunmajsa

45 M Ft
3 szoba
113 m2
Eladó ikerház
Eladó ikerház

Kecskemét

83.9 M Ft
4 szoba
151 m2
Eladó ikerház
Eladó ikerház

Izsák

39.9 M Ft
300 m²
67 m2
Eladó ikerház
Eladó ikerház

Kecskemét

111.5 M Ft
5 szoba
171 m2
Eladó ikerház
Eladó ikerház

Kecskemét

85.9 M Ft
384 m²
94 m2
Eladó ikerház
Eladó ikerház

Kiskunfélegyháza

37.9 M Ft
3 szoba
86 m2
Eladó ikerház
Eladó ikerház

Kecskemét

114.99 M Ft
7 szoba
200 m2
Eladó ikerház
Eladó ikerház

Kecskemét

87.9 M Ft
4 szoba
105 m2
Eladó ikerház
Eladó ikerház

Kecskemét

122.5 M Ft
4 szoba
155 m2
Eladó ikerház
Eladó ikerház

Kecskemét

89.9 M Ft
530 m²
98 m2
Eladó ikerház
Eladó ikerház

Kecskemét

111.5 M Ft
5 szoba
171 m2
Eladó ikerház
Eladó ikerház

Kecskemét

111.5 M Ft
5 szoba
171 m2
Eladó ikerház
Eladó ikerház

Lajosmizse

75 M Ft
5 szoba
111 m2
Eladó ikerház
Eladó ikerház

Kecskemét, Mária-város, Szélmalom utca

109 M Ft
4 szoba
102 m2
Eladó ikerház
Eladó ikerház

Kecskemét

49.99 M Ft
7 szoba
200 m2
Eladó ikerház
Eladó ikerház

Kecskemét

118.5 M Ft
4 szoba
113 m2
Eladó ikerház
Eladó ikerház

Kecskemét

85 M Ft
3 szoba
91 m2
Eladó ikerház
Eladó ikerház

Kecskemét

105 M Ft
4 szoba
120 m2
Eladó ikerház
Eladó ikerház

Kecskemét

120 M Ft
5 szoba
120 m2
Eladó ikerház
Eladó ikerház

Kecskemét

88.9 M Ft
5 szoba
108 m2
Eladó ikerház
Eladó ikerház

Baja

180 M Ft
4 szoba
300 m2

Falusi CSOK ingatlanok

Eladó családi ház
Eladó családi ház

Tokod

89 M Ft
6 szoba
187 m2
Eladó családi ház
Eladó családi ház

Fajsz

25 M Ft
3 szoba
95 m2
Eladó családi ház
Eladó családi ház

Pétfürdő

65 M Ft
3 szoba
97 m2
Eladó családi ház
Eladó családi ház

Söpte

94.9 M Ft
4 szoba
94 m2
Eladó családi ház
Eladó családi ház

Dunaszentbenedek

24.9 M Ft
2 szoba
85 m2
Eladó családi ház
Eladó családi ház

Mályi

84.9 M Ft
4 szoba
100 m2
Eladó családi ház
Eladó családi ház

Kenyeri

39.9 M Ft
3 szoba
94 m2
Eladó családi ház
Eladó családi ház

Ádánd

53.5 M Ft
6 szoba
180 m2