Eladó ikerház
Hajdúsámson, Dombos

+ 1 kép 1/4
56 000 000 Ft56 M Ft 518 519 Ft/m2
3 szoba
108 m2
építés éve:2026

Részletes adatok

Telekméret: 400 m2
Fűtés: Gázkazán
Parkolás: Garázs
Közmű: Víz, Gáz, Villany
Energetikai besorolás: Nem adta meg a hirdető

Az OTP Bank lakáshitel ajánlataFizetett hirdetés

+36 70 626
Kiss Árpád
Kiss Árpád

Érdekel az OTP Bank kedvezményes lakáshitel ajánlata? *

* A kérdésre „Igen” válasz bejelölése esetén, az „Üzenet küldése” gombra kattintva kijelentem, hogy az OTP Bank Nyrt. Adatkezelési tájékoztatójának tartalmát megismertem és tudomásul vettem.

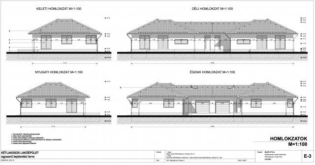
Eladó ikerház leírása

Hajdúsámson-Sámsonkertben új építésű, garázskapcsolatos ikerház eladó!

Hajdúsámson-Sámsonkertben, aszfaltozott úttól nem messze, újonnan épülő, kiváló elrendezésű, 3 hálószobás + amerikai konyha-nappalis, tégla építésű garázskapcsolatos ikerház eladó, 400 m²-es telekhányaddal.
Telekhányad: 10M Ft
Felépítmény: 56M Ft


Az ingatlan Porotherm 30-as téglából épül, 15 cm külső, 25 cm mennyezeti, valamint 12 cm aljzatszigeteléssel.
A nyílászárók 5 légkamrás, 3 rétegű üvegezéssel készülnek.

Fűtése gáz-cirkó kazánról, padlófűtéssel történik, a hűtést 2 darab inverteres klíma biztosítja.
A tető barna betoncserép fedést kap.

Helyiségek elosztása:

3 db hálószoba

Nappali + amerikai konyha

Fürdőszoba WC-vel

Külön mosdó

Előszoba

Háztartási helyiség

Garázs

A burkolatok választhatók, az ár 6.000 Ft/m²-ig tartalmazza a hideg- és melegburkolatokat.

A kivitelező rugalmas, így egyedi igények, kisebb változtatások egyeztethetők.
Tervezett átadás: 1 éven belül.

Megtekinthetők befejezett referenciaházak is, előzetes egyeztetés alapján.

Hirdetés feltöltve: 2025. 10. 07. Utoljára módosítva: 2025. 10. 07.

Az ingatlan elhelyezkedése

Cím: Hajdúsámson, Dombos

Eladó ikerházak a környékről

Eladó ikerház
Eladó ikerház

Hajdúsámson

83.967 M Ft
6 szoba
140 m2
Eladó ikerház
Eladó ikerház

Hajdúsámson

83.427 M Ft
5 szoba
145 m2
Eladó ikerház
Eladó ikerház

Hajdúsámson

81.02 M Ft
5 szoba
145 m2
Eladó ikerház
Eladó ikerház

Hajdúsámson

79.897 M Ft
5 szoba
145 m2
Eladó ikerház
Eladó ikerház

Hajdúsámson

80.346 M Ft
6 szoba
140 m2
Eladó ikerház
Eladó ikerház

Hajdúsámson

79.384 M Ft
5 szoba
145 m2
Eladó ikerház
Eladó ikerház

Hajdúsámson

83.687 M Ft
6 szoba
140 m2
Eladó ikerház
Eladó ikerház

Debrecen

73 M Ft
4 szoba
150 m2
Eladó ikerház
Eladó ikerház

Hajdúsámson

82.091 M Ft
6 szoba
140 m2
Eladó ikerház
Eladó ikerház

Hajdúsámson

78.682 M Ft
5 szoba
145 m2
Eladó ikerház
Eladó ikerház

Hajdúsámson

78.871 M Ft
5 szoba
145 m2
Eladó ikerház
Eladó ikerház

Debrecen, Tégláskert, Tégláskert utca

73 M Ft
4 szoba
150 m2
Eladó ikerház
Eladó ikerház

Debrecen

66 M Ft
1 + 2 szoba
59 m2
Eladó ikerház
Eladó ikerház

Debrecen

119 M Ft
3 szoba
107 m2
Eladó ikerház
Eladó ikerház

Hajdúsámson

79.411 M Ft
5 szoba
145 m2
Eladó ikerház
Eladó ikerház

Hajdúsámson

78.682 M Ft
5 szoba
145 m2
Eladó ikerház
Eladó ikerház

Hajdúsámson

82.306 M Ft
6 szoba
140 m2
Eladó ikerház
Eladó ikerház

Debrecen

268.9 M Ft
6 szoba
204 m2
Eladó ikerház
Eladó ikerház

Hajdúsámson

81.279 M Ft
6 szoba
140 m2
Eladó ikerház
Eladó ikerház

Hajdúsámson

82.091 M Ft
6 szoba
140 m2
Eladó ikerház
Eladó ikerház

Debrecen

153 M Ft
3 szoba
143 m2
Eladó ikerház
Eladó ikerház

Hajdúsámson

77.98 M Ft
5 szoba
145 m2
Eladó ikerház
Eladó ikerház

Hajdúsámson

76.522 M Ft
5 szoba
145 m2
Eladó ikerház
Eladó ikerház

Hajdúsámson

79.897 M Ft
5 szoba
145 m2

Falusi CSOK ingatlanok

Eladó családi ház
Eladó családi ház

Törtel

39 M Ft
1 + 1 szoba
118 m2
Eladó családi ház
Eladó családi ház

Fonyód

79.9 M Ft
7 szoba
149 m2
Eladó téglalakás
Eladó téglalakás

Újhartyán

69.99 M Ft
3 szoba
75 m2
Eladó családi ház
Eladó családi ház

Pécsvárad

140 M Ft
2 szoba
79 m2
Eladó családi ház
Eladó családi ház

Csátalja, Kossuth Lajos utca

41.9 M Ft
3 szoba
90 m2
Eladó családi ház
Eladó családi ház

Orgovány

68.5 M Ft
4 szoba
169 m2
Eladó családi ház
Eladó családi ház

Cece

23.5 M Ft
2 szoba
56 m2
Eladó családi ház
Eladó családi ház

Makád

140 M Ft
4 szoba
79 m2