Pesti Házak

Eladó ikerház
Eger

+ 17 kép 1/20
82 600 000 Ft82.6 M Ft 750 909 Ft/m2
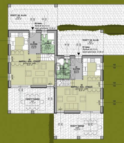
4 szoba
110 m2
építés éve:2023

Részletes adatok

Telekméret: 1100 m2
Fűtés: Egyéb
Közmű: Villany, Csatorna
Energetikai besorolás: Nem adta meg a hirdető

Az OTP Bank lakáshitel ajánlataFizetett hirdetés

+36 70 435
Kocsis György
Otthon Centrum - Ózd

Érdekel az OTP Bank kedvezményes lakáshitel ajánlata? *

* A kérdésre „Igen” válasz bejelölése esetén, az „Üzenet küldése” gombra kattintva kijelentem, hogy az OTP Bank Nyrt. Adatkezelési tájékoztatójának tartalmát megismertem és tudomásul vettem.

Eladó ikerház leírása

Igényes, modern tervezésű tárasházi lakások foglalhatóak Egerben, Felnémeten. Az első társasház építése 2023. április 10-én kezdődik és 2023. október 31-én lesz átvehető. Míg a másik építése 2023. szeptember 1-én kezdődik és 2024. március 31-én vehetik birtokba az új tulajdonosok.
A falak 30-as Wienerberger téglából épülnek, majd 10 cm-es szigetelést kapnak. A fűtésről hőszivattyú-rendszer gondoskodik, valamint egy-egy hűtő-fűtő inverteres klímát is tartalmaz az ár szintenként.
Hideg-, meleg-burkolatok: elszámolás alapja a bolti kiskereskedelmi bruttó listaár, melynek összegét a folyamatos áremelkedések okán az adásvétel napján kerül aktualizálásra. Az előtér, konyha, étkező és nappali rész valamint a fürdőszoba kerámia burkolatot kap, míg a szobák laminált parkettával lesznek burkolva.
Főbejárati- és ikerházankénti garázskapu: Hörmann típusú automatikával és motorral, a kerítés stílusában, lakatos szerkezetből , motoros mozgatású, 1db távirányító lakásonként. További távirányítók igény szerint vásárolható ráhangolással 11.000.- Ft/db áron.
Az épület 3 rétegű, magas minőségű nyílászárókat kap.
Mindegyik lakáshoz tartozik terasz valamint loggia. Továbbá kötelezően vásárolandó nyitott autóbeálló térkő aljzattal ellátva. Az épületeket térköves járda veszi körül.
Projekt bemutatása

Igényes, modern tervezésű tárasházi lakások foglalhatók Egerben, Felnémeten. Az első társasház építése 2023. április 10-én kezdődik és 2023. október 31-én lesz átvehető. Míg a másik építése 2023. szeptember 1-én kezdődik és 2024. március 31-én vehetik birtokba az új tulajdonosok.
A falak 30-as Wienerberger téglából épülnek, majd 10 cm-es szigetelést kapnak. A fűtésről hőszivattyú-rendszer gondoskodik, valamint egy-egy hűtő-fűtő inverteres klímát is tartalmaz az ár szintenként.
Hideg-, meleg-burkolatok: elszámolás alapja a bolti kiskereskedelmi bruttó listaár, melynek összegét a folyamatos áremelkedések okán az adásvétel napján kerül aktualizálásra. Az előtér, konyha, étkező és nappali rész valamint a fürdőszoba kerámia burkolatot kap, míg a szobák laminált parkettával lesznek burkolva.
Főbejárati- és ikerházanként a garázskapu: Hörmann típusú automatikával és motorral, a kerítés stílusában, lakatos szerkezetből , motoros mozgatású, 1db távirányító lakásonként. További távirányítók igény szerint vásárolható ráhangolással 11.000.- Ft/db áron.
Az épület 3 rétegű, magas minőségű nyílászárókat kap.
Mindegyik lakáshoz tartozik terasz valamint loggia. Továbbá kötelezően vásárolandó nyitott autóbeálló térkő aljzattal ellátva. Az épületeket térköves járda veszi körül.

Hirdetés feltöltve: 2025. 11. 16. Utoljára módosítva: 2025. 11. 16.

4 szobás ikerházak ára Egerben

Ebből az összehasonlításból megtudhatod, hogyan viszonyul a lakás ára a környékbeli ikerházak átlagos árához. Ez nem azt jelenti, hogy ennyivel olcsóbb vagy drágább, mint amennyit a lakás ér, hanem hogy ennyivel tér el a környékbeli átlagtól.

Ennek a m² ára
Eger m² ár
751 e Ft
903 e Ft 17%
Ennek az ára
Eger átlagár
82.6 M Ft m Ft
96.7 m Ft 15%

Az ingatlan elhelyezkedése

Cím: Eger

Eladó ikerházak a környékről

Eladó ikerház
Eladó ikerház

Eger

98.9 M Ft
3 + 1 szoba
123 m2
Eladó ikerház
Eladó ikerház

Eger

98.9 M Ft
3 + 1 szoba
123 m2
Eladó ikerház
Eladó ikerház

Lőrinci

29.9 M Ft
1 + 2 szoba
58 m2
Eladó ikerház
Eladó ikerház

Eger

105 M Ft
6 szoba
211 m2
Eladó ikerház
Eladó ikerház

Eger

98.9 M Ft
3 + 1 szoba
123 m2
Eladó ikerház
Eladó ikerház

Eger

98.9 M Ft
3 + 1 szoba
123 m2
Eladó ikerház
Eladó ikerház

Eger

98.9 M Ft
3 + 1 szoba
120 m2
Eladó ikerház
Eladó ikerház

Eger

98.9 M Ft
3 + 1 szoba
123 m2
Eladó ikerház
Eladó ikerház

Eger

98.9 M Ft
4 szoba
103 m2
Eladó ikerház
Eladó ikerház

Szihalom

29.5 M Ft
2 szoba
100 m2
Eladó ikerház
Eladó ikerház

Eger

109 M Ft
1 + 3 szoba
79 m2
Eladó ikerház
Eladó ikerház

Eger, Csákó, Meder u. 2

105 M Ft
6 + 1 szoba
211 m2
Eladó ikerház
Eladó ikerház

Eger

98.9 M Ft
4 szoba
103 m2
Eladó ikerház
Eladó ikerház

Eger

98.9 M Ft
3 + 1 szoba
120 m2
Eladó ikerház
Eladó ikerház

Eger

57.9 M Ft
2 + 1 szoba
71 m2
Eladó ikerház
Eladó ikerház

Eger

98.9 M Ft
3 + 1 szoba
123 m2
Eladó ikerház
Eladó ikerház

Parád

49.9 M Ft
4 + 1 szoba
81 m2
Eladó ikerház
Eladó ikerház

Eger

98.9 M Ft
3 + 1 szoba
123 m2
Eladó ikerház
Eladó ikerház

Eger

98.9 M Ft
3 + 1 szoba
123 m2
Eladó ikerház
Eladó ikerház

Felsőtárkány

49 M Ft
4 szoba
205 m2
Eladó ikerház
Eladó ikerház

Eger

109 M Ft
1 + 3 szoba
79 m2
Eladó ikerház
Eladó ikerház

Eger

98.9 M Ft
3 + 1 szoba
123 m2
Eladó ikerház
Eladó ikerház

Eger

57.9 M Ft
2 + 1 szoba
71 m2
Eladó ikerház
Eladó ikerház

Eger

57.9 M Ft
2 + 1 szoba
71 m2

Falusi CSOK ingatlanok

Eladó családi ház
Eladó családi ház

Kemence, Fő utca

25 M Ft
3 szoba
91 m2
Eladó téglalakás
Eladó téglalakás

Balatonszemes

86.8 M Ft
2 szoba
58 m2
Eladó családi ház
Eladó családi ház

Ásványráró

94.9 M Ft
6 szoba
180 m2
Eladó családi ház
Eladó családi ház

Újszilvás

24.9 M Ft
3 szoba
80 m2
Eladó családi ház
Eladó családi ház

Szenyér

6.5 M Ft
2 szoba
67 m2
Eladó ikerház
Eladó ikerház

Seregélyes

39.9 M Ft
4 szoba
150 m2
Eladó családi ház
Eladó családi ház

Nemeskolta

14 M Ft
2 szoba
75 m2
Eladó családi ház
Eladó családi ház

Zengővárkony

35 M Ft
3 szoba
87 m2