Aerogate Homes

Eladó ikerház
Eger

+ 17 kép 1/20
109 000 000 Ft109 M Ft 1 379 747 Ft/m2
1 + 3 szoba
79 m2
építés éve:2024

Részletes adatok

Telekméret: 344 m2
Fűtés: Egyéb
Energetikai besorolás: Nem adta meg a hirdető

Az OTP Bank lakáshitel ajánlataFizetett hirdetés

+36 30 182
Berecz Dávid
OTP Ingatlanpont Gyöngyös

Érdekel az OTP Bank kedvezményes lakáshitel ajánlata? *

* A kérdésre „Igen” válasz bejelölése esetén, az „Üzenet küldése” gombra kattintva kijelentem, hogy az OTP Bank Nyrt. Adatkezelési tájékoztatójának tartalmát megismertem és tudomásul vettem.

Eladó ikerház leírása

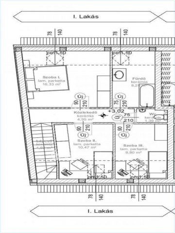
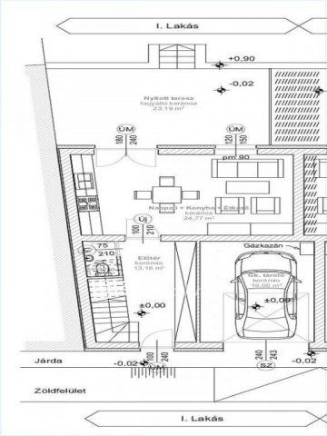
Egerben, a Belvároshoz közel, csendes utcában 344 nm-es telken épülő ikerház egyik 79/95nm-es kétszintes lakása saját kertrésszel, terasszal, garázzsal eladó.
Az ingatlanban a földszinten garázs, amerikai konyhás nappali, 24 nm-es terasz és kert kapcsolattal, egyéb helyiséggel, az emeleten három szoba, fürdőszobával lett kialakítva. Az ingatlan kiváló energetikai besorolású. Az épület főfalai 30 N+F vázkerámia tégla falazat, 15 cm EPS hőszigeteléssel, az épületek közötti elválasztó fal 30 NF+GT hanggátló tégla falazat, a tetőfedés Terrán Zenit beton - tetőcseréppel, természetes színben. A homlokzati nyílászárók 3 réteg hőszigetelő üvegezéssel készültek, a tetőtéri ablakok hőszigetelő üvegezéssel, külső hővédő rolóval felszereltek.
A fűtési rendszer kondenzációs gáz kazán 24KW-os Westen típusú szerelt kéményes, padlófűtéssel minden helyiségben. A tetőtérben kialakításra került 3,5 kW Gree Smart R hűtő-fűtő klíma, 1 db tetőtérben, 1 db nappaliban, WiFi csatlakozással.
Napelemes rendszer készült, ami az épület villamos hálózatára csatlakozik. A konyha gépesített, Elektrolux beépített készülékekkel, a beépített gardrób szekrény a földszinti közlekedőben (5x2,7m-es). IP kamera rendszer, rögzítővel. Okosotthon mobilról üzemeltethető rendszer. Beépített mosókonyha rész a lépcső alatti térben. A kert parkosított, dísznövényekkel telepített. Igényesen megtervezett ingatlan, ha tetszik, ide tényleg csak költözni kell!
Ingatlanirodánk ügyvédi háttérrel, CSOK, babaváró hitel, valamint kamatkedvezményes hitel ügyintézésével támogatja ügyfelei ingatlanvásárlását.

Hirdetés feltöltve: 2025. 10. 23. Utoljára módosítva: 2025. 12. 07.

4 szobás ikerházak ára Egerben

Ebből az összehasonlításból megtudhatod, hogyan viszonyul a lakás ára a környékbeli ikerházak átlagos árához. Ez nem azt jelenti, hogy ennyivel olcsóbb vagy drágább, mint amennyit a lakás ér, hanem hogy ennyivel tér el a környékbeli átlagtól.

Ennek a m² ára
Eger m² ár
1380 e Ft
867 e Ft -59%
Ennek az ára
Eger átlagár
109 M Ft m Ft
94.5 m Ft -15%

Az ingatlan elhelyezkedése

Cím: Eger

Eladó ikerházak a környékről

Eladó ikerház
Eladó ikerház

Eger

98.9 M Ft
3 + 1 szoba
123 m2
Eladó ikerház
Eladó ikerház

Szihalom

29.5 M Ft
2 szoba
100 m2
Eladó ikerház
Eladó ikerház

Eger

82.6 M Ft
4 szoba
112 m2
Eladó ikerház
Eladó ikerház

Eger

57.9 M Ft
2 + 1 szoba
71 m2
Eladó ikerház
Eladó ikerház

Eger

98.9 M Ft
4 szoba
103 m2
Eladó ikerház
Eladó ikerház

Eger

98.9 M Ft
3 + 1 szoba
123 m2
Eladó ikerház
Eladó ikerház

Hatvan

73.9 M Ft
2 + 1 szoba
80 m2
Eladó ikerház
Eladó ikerház

Eger

82.6 M Ft
4 szoba
112 m2
Eladó ikerház
Eladó ikerház

Eger

98.9 M Ft
3 + 1 szoba
123 m2
Eladó ikerház
Eladó ikerház

Eger

82.6 M Ft
4 szoba
110 m2
Eladó ikerház
Eladó ikerház

Eger

82.6 M Ft
4 szoba
112 m2
Eladó ikerház
Eladó ikerház

Egerszalók

49 M Ft
3 szoba
106 m2
Eladó ikerház
Eladó ikerház

Eger

98.9 M Ft
3 + 1 szoba
123 m2
Eladó ikerház
Eladó ikerház

Eger

98.9 M Ft
3 + 1 szoba
123 m2
Eladó ikerház
Eladó ikerház

Eger, Csákó, Meder u. 2

105 M Ft
6 + 1 szoba
211 m2
Eladó ikerház
Eladó ikerház

Felsőtárkány

49 M Ft
4 szoba
205 m2
Eladó ikerház
Eladó ikerház

Eger

98.9 M Ft
3 + 1 szoba
120 m2
Eladó ikerház
Eladó ikerház

Eger

82.6 M Ft
4 szoba
110 m2
Eladó ikerház
Eladó ikerház

Eger

109 M Ft
1 + 3 szoba
79 m2
Eladó ikerház
Eladó ikerház

Eger

98.9 M Ft
3 + 1 szoba
123 m2
Eladó ikerház
Eladó ikerház

Eger

98.5 M Ft
5 szoba
190 m2
Eladó ikerház
Eladó ikerház

Eger

98.9 M Ft
3 + 1 szoba
123 m2
Eladó ikerház
Eladó ikerház

Eger

82.6 M Ft
4 szoba
110 m2
Eladó ikerház
Eladó ikerház

Parádsasvár

38 M Ft
4 szoba
171 m2

Falusi CSOK ingatlanok

Eladó családi ház
Eladó családi ház

Somogygeszti

10.9 M Ft
2 szoba
115 m2
Eladó családi ház
Eladó családi ház

Üllés

35.5 M Ft
3 szoba
99 m2
Eladó családi ház
Eladó családi ház

Tésenfa, Kossuth utca 23/a

5.55 M Ft
1 + 1 szoba
109 m2
Eladó családi ház
Eladó családi ház

Fülöpszállás

299 M Ft
14 + 5 szoba
680 m2
Eladó családi ház
Eladó családi ház

Gerde

4.8 M Ft
2 szoba
62 m2
Eladó családi ház
Eladó családi ház

Petrivente, Kossuth Lajos utca

31.9 M Ft
3 szoba
127 m2
Eladó családi ház
Eladó családi ház

Nádasdladány

21.9 M Ft
3 szoba
66 m2
Eladó családi ház
Eladó családi ház

Tápiógyörgye

14.9 M Ft
2 szoba
67 m2