Kedves Felhasználónk! Rendszerfrissítés miatt az oldalunk 2026. február 9-én 12 órától várhatóan 20 óráig nem lesz elérhető. Köszönjük megértésed!
Seven Pearl

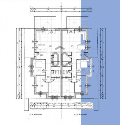
Eladó ikerház
Dunavarsány

+ 1 kép 1/4
99 800 000 Ft99.8 M Ft 1 073 118 Ft/m2
4 szoba
93 m2
építés éve:2026

Részletes adatok

Telekméret: 444 m2
Fűtés: Gázkazán
Közmű: Gáz, Villany, Csatorna
Energetikai besorolás: Nem adta meg a hirdető

Az OTP Bank lakáshitel ajánlataFizetett hirdetés

+36 70 465
Joó Krisztina
Otthon Centrum Szigethalom

Érdekel az OTP Bank kedvezményes lakáshitel ajánlata? *

* A kérdésre „Igen” válasz bejelölése esetén, az „Üzenet küldése” gombra kattintva kijelentem, hogy az OTP Bank Nyrt. Adatkezelési tájékoztatójának tartalmát megismertem és tudomásul vettem.

Eladó ikerház leírása

Dunavarsány újépítésű ikerház

️téglaépítésű
️nettó 93 m2-es
️amerikai konyhás nappali + 3 hálószobás
️háztartási helyiség
️egy fürdőszoba, két wc
️fűtése: Bosch Condens 2300iW típusú kombi kondenzációs átfolyós fali gázkazán 24kW
teljesítménnyel – digitális termosztáttal + PADLÓFŰTÉS
️külső nyílászárók műanyagok, ötkamrás
kerettel, háromrétegű hőszigetelő üvegezéssel, argon gázzal töltve - fekete színben
️választható burkolatok 6.000.-Ft /m2
️homlokzati hőszigetelés 15cm
️minden lakáshoz vezetékes víz-, gáz-, és csatornaellátás, valamint egyfázisú 32A
áramerősségű villamos energiaellátás biztosított. Jelenlegi kedvezményes értékesítésünk
keretében az eladási ár magában foglalja a 1x25A áramerősségű „H” tarifa díjszabású
mérőhely kialakítását
️Az eladási ár tartalmazza a nyílászárókhoz való, beépített redőnytokok és
redőnylefutók árát, redőny lamella és szúnyogháló nélkül.
️Az eladási ár tartalmazza a hűtő-fűtő hőszivattyús klímaberendezéseket a három
szobában és a nappaliban – rejtett csövezéssel kiépítve, felszerelve és
beüzemelve.
️hatalmas közel 16 m2-es terasz
️7 méter x 3 méter méretű térkővel burkolt parkolóhely kerül kiépítésre
️ telek 444 m2

Opcióként kérhető még:

❖ Konyhabútor
❖ Konyhafelszerelés
❖ Légkondicionáló berendezés kiépítése (jelenlegi ajánlatunk keretében
térítésmentes!)
❖ Kapuautomatizálás
❖ Vagyonvédelmi eszközök beszerelése
❖ Árnyékolástechnika (jelenlegi ajánlatunk keretében a beépített redőnytok
térítésmentes!)
❖ Lakberendezési tanácsadás, komplett belsőépítészeti tervezés, kivitelezés
❖ Kaputelefon
❖ Csapadékvíz szikkasztása
❖ Elektromos törölközőszárító
❖ Kerti csap
❖ Gépkocsi felhajtó térkövezése
❖ Gipszkarton álmennyezet elképzelés szerinti kialakítása
❖ Járható padlásfödém készítése
❖ Zuhanykabin, perem nélküli épített zuhanytálca kialakítása

Hitel, CSOK, Otthon Start igényelhető.

Várható átadás: 2026. május vége
Megbízható kivitelező.

Hirdetés feltöltve: 2025. 12. 19. Utoljára módosítva: 2026. 01. 13.

4 szobás ikerházak ára Dunavarsányban

Ebből az összehasonlításból megtudhatod, hogyan viszonyul a lakás ára a környékbeli ikerházak átlagos árához. Ez nem azt jelenti, hogy ennyivel olcsóbb vagy drágább, mint amennyit a lakás ér, hanem hogy ennyivel tér el a környékbeli átlagtól.

Ennek a m² ára
Dunavarsány m² ár
1073 e Ft
1007 e Ft -7%
Ennek az ára
Dunavarsány átlagár
99.8 M Ft m Ft
98.1 m Ft -2%

Az ingatlan elhelyezkedése

Cím: Dunavarsány

Eladó ikerházak a környékről

Eladó ikerház
Eladó ikerház

Dunavarsány

98 M Ft
4 szoba
96 m2
Eladó ikerház
Eladó ikerház

Pécel, Pécel - kertváros

127 M Ft
4 szoba
125 m2
Eladó ikerház
Eladó ikerház

Dunakeszi

149 M Ft
1 + 4 szoba
127 m2
Eladó ikerház
Eladó ikerház

Kiskunlacháza

41 M Ft
2 szoba
39 m2
Eladó ikerház
Eladó ikerház

Dunavarsány

99.8 M Ft
4 szoba
93 m2
Eladó ikerház
Eladó ikerház

Mogyoród

129 M Ft
5 szoba
123 m2
Eladó ikerház
Eladó ikerház

Dunavarsány

90 M Ft
5 szoba
102 m2
Eladó ikerház
Eladó ikerház

Pomáz

129.5 M Ft
4 szoba
100 m2
Eladó ikerház
Eladó ikerház

Szentendre

718 M Ft
10 + 2 szoba
578 m2
Eladó ikerház
Eladó ikerház

Dunavarsány

96 M Ft
4 szoba
115 m2
Eladó ikerház
Eladó ikerház

Dunavarsány

96 M Ft
4 szoba
115 m2
Eladó ikerház
Eladó ikerház

Dunavarsány

120 M Ft
5 szoba
118 m2
Eladó ikerház
Eladó ikerház

Pusztazámor

55 M Ft
10 szoba
470 m2
Eladó ikerház
Eladó ikerház

Szentendre

359 M Ft
5 + 1 szoba
289 m2
Eladó ikerház
Eladó ikerház

Vác

149.9 M Ft
5 szoba
202 m2
Eladó ikerház
Eladó ikerház

Vác

99.7 M Ft
4 + 1 szoba
129 m2
Eladó ikerház
Eladó ikerház

Vác

89.9 M Ft
4 szoba
91 m2
Eladó ikerház
Eladó ikerház

Dunavarsány

99 M Ft
522 m²
138 m2
Eladó ikerház
Eladó ikerház

Szentendre

179 M Ft
5 + 1 szoba
147 m2
Eladó ikerház
Eladó ikerház

Mogyoród

135 M Ft
5 szoba
137 m2
Eladó ikerház
Eladó ikerház

Dunavarsány

98 M Ft
4 szoba
95 m2
Eladó ikerház
Eladó ikerház

Dunavarsány

90 M Ft
5 szoba
102 m2
Eladó ikerház
Eladó ikerház

Diósd

206.25 M Ft
5 szoba
184 m2
Eladó ikerház
Eladó ikerház

Dunavarsány

98 M Ft
4 szoba
95 m2

Falusi CSOK ingatlanok

Eladó családi ház
Eladó családi ház

Újhartyán

89.9 M Ft
4 szoba
99 m2
Eladó családi ház
Eladó családi ház

Badacsonytördemic

179.07 M Ft
4 szoba
160 m2
Eladó családi ház
Eladó családi ház

Illocska

15 M Ft
2 szoba
105 m2
Eladó családi ház
Eladó családi ház

Drágszél, Petőfi utca 12

5.58 M Ft
1 + 1 szoba
106 m2
Eladó családi ház
Eladó családi ház

Magyarszék

48.5 M Ft
3 + 1 szoba
86 m2
Eladó családi ház
Eladó családi ház

Zengővárkony

28 M Ft
3 szoba
87 m2
Eladó családi ház
Eladó családi ház

Győrság

477 M Ft
15 szoba
1115 m2
Eladó családi ház
Eladó családi ház

Elek

85.9 M Ft
5 szoba
274 m2