Eladó ikerház
Diósd

+ 10 kép 1/13
129 000 000 Ft129 M Ft 1 141 593 Ft/m2
4 szoba
113 m2
építés éve:2025

Részletes adatok

Telekméret: 740 m2
Fűtés: Egyéb
Parkolás: Garázs
Energetikai besorolás: Nem adta meg a hirdető

Az OTP Bank lakáshitel ajánlataFizetett hirdetés

+36 30 250
Nyegrutz Tibor
referens

Érdekel az OTP Bank kedvezményes lakáshitel ajánlata? *

* A kérdésre „Igen” válasz bejelölése esetén, az „Üzenet küldése” gombra kattintva kijelentem, hogy az OTP Bank Nyrt. Adatkezelési tájékoztatójának tartalmát megismertem és tudomásul vettem.

Eladó ikerház leírása

DIÓSDON családi házas környezetbe kínálunk megvételre egy
ÚJ ÉPÍTÉSŰ, most épülő IKERHÁZAT, ahol kettő db kétszintes 4 szobás, nettó 113 m2 -es, GARÁZZSAL érintkező LAKÓHÁZAT, összesen 740 m2-es telken kerül megépítésre.

MINDKÉT LAKÓHÁZ ALAPRAJZA, KIVITELEZÉSE, MŰSZAKI TARTALMA AZONOS! A lakóházak egymástól elkerítve, külön bejárattal kerülnek kialakításra, de a telek méretek különbözőek.

Az utcafronti, előkertes ikerházfél(1. számú lakóház) 360 m2-es telekrészen épül, elkerítve a hátsó féltől.

AZ 1. SZÁMÚ LAKÓHÁZ KULCSRAKÉSZ ÁRA : 129 millió Ft.

A hátsó ikerházfélhez ( 2.számú lakás) 380 m2-es telekrész tartozik, elkerített kertrésszel, külön bejárattal.

A lakóházakban lévő mindkét garázs térkövezett szolgalmi úton érhető el.

2. SZÁMÚ LAKÓHÁZ KULCSRAKÉSZ ÁRA: 134,9 millió Ft

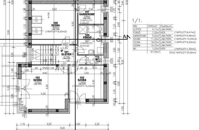
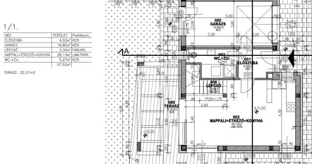
A tervezés szerint a lakóházak FÖLDSZINTJÉN :
előszoba (4 m2),nappali-étkező+ konyha ( 28 m2), zuhanyozó +WC (5,27 m2), emeletre vezető lépcső, plusz egy 22,5 m2-es terasz kerül kialakításra.

EMELETEN: 3 szoba (19,33 m2,11,22 m2, 9,20 m2), fürdőszoba (7,25 m2), WC, előtér, gardrob (5 m2).

A HELYISÉGEK ELRENDEZÉSE AZ ALAPRAJZOKON LÁTHATÓ !

MŰSZAKI TARTALOM:
-YTONG 30 cm-es falazat, 15 cm külső szigetelés
- válasz falak 10 cm*es ytong tégla
- vasbeton födém
- három rétegű üvegezéssel műanyag külső nyílászárok
- elektromos alumínium redőnyök, szúnyoghálóval
- minden helyiségben padlófűtés,helyiségenként szabályozható
osztógyűjtővel
- fűtés hőszivattyúval
- vízmelegítő 100 l tartály, hőszivattyús
- szárnyas kerítés kiskapuval elektromos nyitás- zárás
- a hideg és meleg burkolatok 8000 Ft /m2, beltéri ajtók 80.000 Ft /db,
kád 100.000 Ft/db, szaniterek 30.000 Ft / db áron választhatók, amit tartalmaz az ingatlan vételára.
- térkövezett járdák és autóbeállók
- a fűtési rendszerhez kedvezményes "H" tarifás áram tartozik, így
biztosítja a hőszivattyús fűtés és a jó szigeteléssel a lakóházak
alacsony rezsi költséget.

AZ IKERHÁZ TERVEZETT ÁTADÁSA : 2025. DECEMBER

A lakóházak, ÖNÁLLÓ MÉRŐÓRÁKKAL, HASZNÁLATBAVÉTELI ENGEDÉLLYEL, TÁRSASHÁZ ALAPÍTÓ OKIRATTAL, valamint H-TARIFÁS VILLANYÓRÁKKAL kerülnek átadásra.

Az építkezés jelen szakaszában a RUGALMAS VÁLLALKOZÓVAL
EGYEDI KÉRÉSEK IS EGYEZTETHETŐEK !

A környék infrastruktúrája jó, közelben bölcsőde, óvoda, orvosi rendelő, bevásárlási lehetőség (INTERSPÁR)
Könnyen elérhető az 7-es főút és az autópályák is M0,M1,M7

Az ingatlanok HITELKÉPESEK !
További kérdéseivel, ÉRDEKLŐDÉSÉVEL VÁROM JELENTKEZÉSÉT!
FORDULJON HOZZÁM BIZALOMMAL !

(G.I.) ...TOVÁBBI, TÖBBEZRES INGATLAN KÍNÁLAT: www.gdn-ingatlan.hu - GDN azonosító: 386345

Hirdetés feltöltve: 2025. 08. 19. Utoljára módosítva: 2025. 09. 17.

4 szobás ikerházak ára Diósdon

Ebből az összehasonlításból megtudhatod, hogyan viszonyul a lakás ára a környékbeli ikerházak átlagos árához. Ez nem azt jelenti, hogy ennyivel olcsóbb vagy drágább, mint amennyit a lakás ér, hanem hogy ennyivel tér el a környékbeli átlagtól.

Ennek a m² ára
Diósd m² ár
1142 e Ft
955 e Ft -20%
Ennek az ára
Diósd átlagár
129 M Ft m Ft
113 m Ft -14%

Az ingatlan elhelyezkedése

Cím: Diósd

Eladó ikerházak a környékről

Eladó ikerház
Eladó ikerház

Érd, Érdliget - Kutyavár, Érdligeten található utca

64.9 M Ft
4 szoba
112 m2
Eladó ikerház
Eladó ikerház

Veresegyház

145 M Ft
4 szoba
120 m2
Eladó ikerház
Eladó ikerház

Vác

92.9 M Ft
4 + 1 szoba
126 m2
Eladó ikerház
Eladó ikerház

Diósd

206.2 M Ft
5 szoba
179 m2
Eladó ikerház
Eladó ikerház

Üröm

249.9 M Ft
4 szoba
154 m2
Eladó ikerház
Eladó ikerház

Diósd

198.5 M Ft
5 szoba
170 m2
Eladó ikerház
Eladó ikerház

Kiskunlacháza

89.1 M Ft
4 szoba
99 m2
Eladó ikerház
Eladó ikerház

Pilisjászfalu

70.563 M Ft
4 szoba
61 m2
Eladó ikerház
Eladó ikerház

Diósd

279 M Ft
6 szoba
242 m2
Eladó ikerház
Eladó ikerház

Diósd

206.2 M Ft
5 szoba
179 m2
Eladó ikerház
Eladó ikerház

Diósd

198.5 M Ft
5 szoba
170 m2
Eladó ikerház
Eladó ikerház

Diósd

215.8 M Ft
5 szoba
186 m2
Eladó ikerház
Eladó ikerház

Dunaharaszti

124.999 M Ft
4 szoba
105 m2
Eladó ikerház
Eladó ikerház

Diósd

211.9 M Ft
6 szoba
178 m2
Eladó ikerház
Eladó ikerház

Diósd

179.3 M Ft
4 + 1 szoba
174 m2
Eladó ikerház
Eladó ikerház

Vác

94.9 M Ft
4 + 1 szoba
129 m2
Eladó ikerház
Eladó ikerház

Diósd

206.2 M Ft
5 szoba
179 m2
Eladó ikerház
Eladó ikerház

Diósd

213.46 M Ft
5 szoba
186 m2
Eladó ikerház
Eladó ikerház

Diósd

215.8 M Ft
5 szoba
186 m2
Eladó ikerház
Eladó ikerház

Pécel, Pécel - kertváros

127 M Ft
4 szoba
125 m2
Eladó ikerház
Eladó ikerház

Vác

175.356 M Ft
5 szoba
165 m2
Eladó ikerház
Eladó ikerház

Érd

139.9 M Ft
5 szoba
159 m2
Eladó ikerház
Eladó ikerház

Diósd, Szabadság út

184.8 M Ft
3 szoba
160 m2
Eladó ikerház
Eladó ikerház

Diósd

94.9 M Ft
3 szoba
82 m2

Falusi CSOK ingatlanok

Eladó családi ház
Eladó családi ház

Jászjákóhalma

23 M Ft
3 szoba
113 m2
Eladó családi ház
Eladó családi ház

Miháld

39.9 M Ft
5 szoba
101 m2
Eladó családi ház
Eladó családi ház

Kaposgyarmat

695 M Ft
6 szoba
610 m2
Eladó családi ház
Eladó családi ház

Iváncsa

73.9 M Ft
1 + 3 szoba
97 m2
Eladó téglalakás
Eladó téglalakás

Tokaj

116.5 M Ft
2 szoba
49 m2
Eladó családi ház
Eladó családi ház

Magyarszék

48.5 M Ft
3 + 1 szoba
86 m2
Eladó családi ház
Eladó családi ház

Sávoly

12.9 M Ft
3 szoba
84 m2
Eladó családi ház
Eladó családi ház

Geresdlak

24.8 M Ft
1 szoba
50 m2