Eladó ikerház
Debrecen

+ 17 kép 1/20
115 000 000 Ft115 M Ft 575 000 Ft/m2
3 szoba
200 m2
építés éve:1961

Részletes adatok

Telekméret: 730 m2
Fűtés: Gázkazán
Parkolás: Garázs
Közmű: Víz, Gáz, Villany, Csatorna
Energetikai besorolás: Nem adta meg a hirdető

Az OTP Bank lakáshitel ajánlataFizetett hirdetés

+36 70 564
Mészáros Zoltán
referens

Érdekel az OTP Bank kedvezményes lakáshitel ajánlata? *

* A kérdésre „Igen” válasz bejelölése esetén, az „Üzenet küldése” gombra kattintva kijelentem, hogy az OTP Bank Nyrt. Adatkezelési tájékoztatójának tartalmát megismertem és tudomásul vettem.

Eladó ikerház leírása

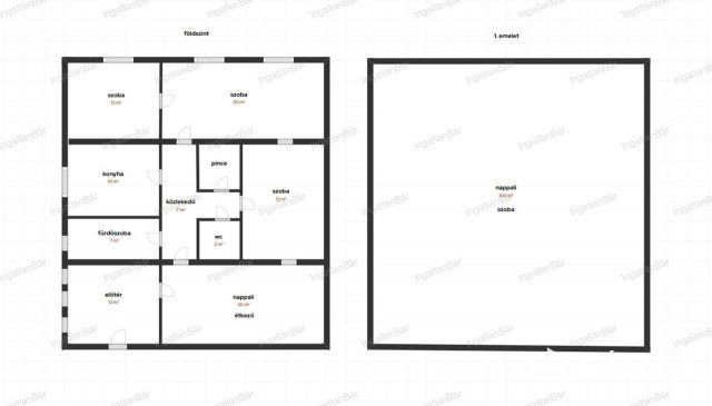
Eladó Debrecenben a Mikepércsi út közelében egy igazi gyöngyszem, egy ikerház, amely tökéletes választás családok számára. Az ingatlan 200 négyzetméteren terül el, és egy 730 négyzetméteres telken helyezkedik el, így bőséges teret biztosít a mindennapi élethez.

Az 1961-ben épült tégla ház jó állapotban várja új tulajdonosát, akinek nem kell aggódnia a felújítás miatt, hiszen a külső állapota is kedvező. A három tágas szobával rendelkező ingatlan összkomfortos, így mind a kényelmet, mind a praktikumot szem előtt tartja. A gázkazános fűtés biztosítja a kellemes meleget a téli hónapokban, így a hideg időjárás nem jelenthet problémát.

A kert makulátlanul rendben tartott, parkosított, több melléképülettel is rendelkezik, valamint dupla garázs és kinti wc is található rajta.

A telek lehetőséget biztosít további beépíthetőségre és üzleti célok megvalósítására.

Az ingatlanhoz tartozó garázsokban kényelmesen parkolhat, ami különösen hasznos lehet a városi környezetben. A 115 000 000 Ft irányáron kínált ikerház nemcsak egy otthon, hanem egy lehetőség is, hogy egy igazi közösség tagjává váljon Debrecenben. Ne hagyja ki ezt a remek lehetőséget, és hívjon még ma, hogy megtekinthesse ezt a csodás ingatlant!

Ingyenes, teljes körű pénzügyi tanácsadással is szolgálunk, minden hazai bank ajánlata megtalálható nálunk!

Érdeklődni:

Mészáros Zoltán +36705644496

meszaros.zoltan@ingatlanbar.hu

Hirdetés feltöltve: 2025. 10. 17. Utoljára módosítva: 2025. 10. 18.

3 szobás ikerházak ára Debrecenben

Ebből az összehasonlításból megtudhatod, hogyan viszonyul a lakás ára a környékbeli ikerházak átlagos árához. Ez nem azt jelenti, hogy ennyivel olcsóbb vagy drágább, mint amennyit a lakás ér, hanem hogy ennyivel tér el a környékbeli átlagtól.

Ennek a m² ára
Debrecen m² ár
575 e Ft
913 e Ft 37%
Ennek az ára
Debrecen átlagár
115 M Ft m Ft
106.8 m Ft -8%

Az ingatlan elhelyezkedése

Cím: Debrecen

Eladó ikerházak a környékről

Eladó ikerház
Eladó ikerház

Debrecen

268.9 M Ft
6 szoba
204 m2
Eladó ikerház
Eladó ikerház

Debrecen

98 M Ft
3 szoba
130 m2
Eladó ikerház
Eladó ikerház

Debrecen

268.9 M Ft
6 szoba
204 m2
Eladó ikerház
Eladó ikerház

Debrecen, Széchenyikert, Széchenyi utca

175 M Ft
5 szoba
120 m2
Eladó ikerház
Eladó ikerház

Debrecen

129.99 M Ft
4 szoba
133 m2
Eladó ikerház
Eladó ikerház

Hajdúsámson

84.975 M Ft
6 szoba
140 m2
Eladó ikerház
Eladó ikerház

Debrecen

66 M Ft
1 + 2 szoba
59 m2
Eladó ikerház
Eladó ikerház

Debrecen

66 M Ft
1 + 2 szoba
59 m2
Eladó ikerház
Eladó ikerház

Hajdúsámson

82.952 M Ft
5 szoba
145 m2
Eladó ikerház
Eladó ikerház

Debrecen

78 M Ft
2 + 2 szoba
95 m2
Eladó ikerház
Eladó ikerház

Hajdúsámson

79.897 M Ft
5 szoba
145 m2
Eladó ikerház
Eladó ikerház

Debrecen

192 M Ft
5 szoba
212 m2
Eladó ikerház
Eladó ikerház

Debrecen

159 M Ft
3 szoba
133 m2
Eladó ikerház
Eladó ikerház

Bocskaikert

70 M Ft
4 szoba
97 m2
Eladó ikerház
Eladó ikerház

Debrecen, Tégláskert, Tégláskert utca

73 M Ft
4 szoba
150 m2
Eladó ikerház
Eladó ikerház

Debrecen

268.9 M Ft
6 szoba
204 m2
Eladó ikerház
Eladó ikerház

Debrecen

129.99 M Ft
4 szoba
113 m2
Eladó ikerház
Eladó ikerház

Debrecen

186.9 M Ft
4 szoba
169 m2
Eladó ikerház
Eladó ikerház

Debrecen, Tégláskert, Tégláskert utca

73 M Ft
4 szoba
150 m2
Eladó ikerház
Eladó ikerház

Debrecen

159 M Ft
3 szoba
143 m2
Eladó ikerház
Eladó ikerház

Debrecen

159 M Ft
3 szoba
143 m2
Eladó ikerház
Eladó ikerház

Debrecen

119 M Ft
3 szoba
107 m2
Eladó ikerház
Eladó ikerház

Hajdúsámson

81.02 M Ft
5 szoba
145 m2
Eladó ikerház
Eladó ikerház

Hajdúsámson

83.427 M Ft
5 szoba
145 m2

Falusi CSOK ingatlanok

Eladó családi ház
Eladó családi ház

Rábaszentandrás

24 M Ft
3 szoba
130 m2
Eladó családi ház
Eladó családi ház

Kislőd

44.9 M Ft
3 szoba
115 m2
Eladó családi ház
Eladó családi ház

Tápiógyörgye

6.5 M Ft
2 szoba
62 m2
Eladó családi ház
Eladó családi ház

Nagyrécse

19 M Ft
2 szoba
52 m2
Eladó családi ház
Eladó családi ház

Jászkarajenő

25 M Ft
4 szoba
136 m2
Eladó családi ház
Eladó családi ház

Mezőkeresztes

23.9 M Ft
2 + 1 szoba
82 m2
Eladó téglalakás
Eladó téglalakás

Hegyeshalom

35 M Ft
43 m2
Eladó családi ház
Eladó családi ház

Zsámbok

45 M Ft
2 szoba
60 m2