Astora Art House

Eladó ikerház
Budapest, XVIII. kerület

+ 12 kép 1/15
199 999 000 Ft199.999 M Ft 934 575 Ft/m2
4 szoba
214 m²
építés éve:2026

Részletes adatok

Telekméret: 200 m2
Fűtés: Egyéb
Energetikai besorolás: C

Az OTP Bank lakáshitel ajánlataFizetett hirdetés

+36 30 667
Frank Zénó András
referens

Érdekel az OTP Bank kedvezményes lakáshitel ajánlata? *

* A kérdésre „Igen” válasz bejelölése esetén, az „Üzenet küldése” gombra kattintva kijelentem, hogy az OTP Bank Nyrt. Adatkezelési tájékoztatójának tartalmát megismertem és tudomásul vettem.

Eladó ikerház leírása

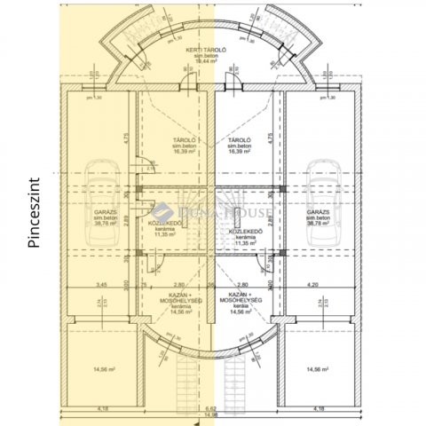
Budapest XVIII. kerületének egyik legkeresettebb részén a Péterhalmi erdő szomszédságában épül ez a kétlakásos, háromszintes, A+ energetikájú otthon, amelyből mindössze egy bal és egy jobb ikerfél készül. A 2026-os átadás miatt most még minden részlet személyre szabható.Ez az a pillanat, amikor még bele lehet nyúlni a burkolatokba, színekbe, kialakításokba később már nem.Főbb adatok:-214m2-es alapterületPinceszint: 104m21. szint: 75,5m22. szint: 35m2-Hozzá tartozó telekterület: Körülbelül 200m2Háromszintes elrendezés- Pinceszint (garázs + tárolók + gépészet),- 1.szint (nappali, konyha, étkező, szobák),- 2. szint (szoba, gardrób )Plusz további tetőtér még beépíthetőA+ energetika A műszaki leírás szerint:- 40 cm tetőszigetelés,- hőszivattyús fűtés,- padlófűtés mindhárom szinten,-3db hűtő-fűtő klíma- Htarifás villanyóraPrémium szerkezetek és anyagok- 30 cm nf főfalak,- betonfödém,- Terrán cserépfedés,- 6 légkamrás műanyag nyílászárók 1.0 üvegezéssel,- elektromos redőnyök,- elektromos garázskapuMiért különleges?A pince szint ami miatt ez az ingatlan eltér a mai újépítésű ikerházfelektől- teljes értékűen szigetelt,- gépi vakolt falakkal,- 10 cm lépésálló hőszigeteléssel,- simított betonpadlóval készül.nem csak egy garázs, hanem egy komplett funkcionális szintFürdők, konyha, belső terek még te döntesz- 100.000 Ft-ig választható zuhanyrendszer,- 100.000 Ft-ig választható mosdószekrény,- 150.000 Ft-ig választható falba épített WC szett,- 10.000 Ft/m²-ig választható hidegburkolat,- 10.000 Ft/m²-ig választható laminált padló.Ez azt jelenti, hogy most még te alakítod ki a saját ízlésed szerint, és nem kell kompromisszumot kötni egy készre burkolt házzal.Kert és környezet- viacolor kocsibeálló,- viacolor járda,- elektromos kétszárnyú nagykapu,- 3D táblás elválasztókerítésKörnyezet:A környék hangulata egyszerre nyugodt és élhető, mégis minden fontos szolgáltatás pár percen belül elérhető.A XVIII. kerületet érintő járatok között szerepel a 166, 182, 266, 282E és 950-es busz, valamint az 50-es villamos, amely gyors kapcsolatot ad a metróhoz is Autóval pedig a kerületből indulva könnyen elérhető:- az M0,- az M5,- a Gyömrői út,- a repülőtérVárható átadás: 2026. 4. negyedévMegbízható kivitelező referencia munkákkal!

Referencia szám: HZ083151

Hirdetés feltöltve: 2026. 04. 17. Utoljára módosítva: 2026. 04. 18.

4 szobás ikerházak ára Budapesten

Ebből az összehasonlításból megtudhatod, hogyan viszonyul a lakás ára a környékbeli ikerházak átlagos árához. Ez nem azt jelenti, hogy ennyivel olcsóbb vagy drágább, mint amennyit a lakás ér, hanem hogy ennyivel tér el a környékbeli átlagtól.

Ennek a m² ára
XVIII. kerület m² ár
Budapest m² ár
935 e Ft
915 e Ft -2%
1166 e Ft 20%
Ennek az ára
XVIII. kerület átlagár
Budapest átlagár
199.999 M Ft m Ft
130.3 m Ft -54%
166.3 m Ft -20%

Az ingatlan elhelyezkedése

Cím: Budapest, XVIII. kerület

Eladó ingatlanok a környékről

XVIII. kerület
Eladó ikerház

Budapest, XVIII. kerület

139.99 M Ft
5 szoba
140 m²
XVIII. kerület
Eladó ikerház

Budapest, XVIII. kerület

149.9 M Ft
5 szoba
137 m²
XVIII. kerület
Eladó ikerház

Budapest, XVIII. kerület

149.9 M Ft
5 szoba
137 m²
XVIII. kerület
Eladó ikerház

Budapest, XVIII. kerület

99.9 M Ft
4 szoba
110 m²
XI. kerület, Kőérberek, Kánai út 31
Eladó téglalakás

Budapest, XI. kerület

127.99 M Ft
3 szoba
55 m²
XI. kerület, Kőérberek, Kánai út 31
Eladó téglalakás

Budapest, XI. kerület

96.49 M Ft
2 szoba
45 m²
XI. kerület, Kőérberek, Kánai út 31
Eladó téglalakás

Budapest, XI. kerület

170.99 M Ft
4 szoba
88 m²
XVIII. kerület
Eladó ikerház

Budapest, XVIII. kerület

149.9 M Ft
5 szoba
134 m²
XI. kerület, Kőérberek, Kánai út 31
Eladó téglalakás

Budapest, XI. kerület

129.99 M Ft
3 szoba
60 m²
XVIII. kerület
Eladó ikerház

Budapest, XVIII. kerület

49.9 M Ft
2 szoba
40 m²
XI. kerület, Kőérberek, Kánai út 31
Eladó téglalakás

Budapest, XI. kerület

130.99 M Ft
3 szoba
60 m²
XI. kerület, Kőérberek, Kánai út 31
Eladó téglalakás

Budapest, XI. kerület

246.99 M Ft
4 szoba
100 m²
XI. kerület, Kőérberek, Kánai út 31
Eladó téglalakás

Budapest, XI. kerület

101.99 M Ft
2 szoba
49 m²
XI. kerület, Kőérberek, Kánai út 31
Eladó téglalakás

Budapest, XI. kerület

179.99 M Ft
4 szoba
88 m²
XI. kerület, Kőérberek, Kánai út 31
Eladó téglalakás

Budapest, XI. kerület

117.49 M Ft
3 szoba
63 m²
XI. kerület, Kőérberek, Kánai út 31
Eladó téglalakás

Budapest, XI. kerület

88.49 M Ft
2 szoba
46 m²
XI. kerület, Kőérberek, Kánai út 31
Eladó téglalakás

Budapest, XI. kerület

90.99 M Ft
2 szoba
46 m²
XI. kerület, Kőérberek, Kánai út 31
Eladó téglalakás

Budapest, XI. kerület

125.99 M Ft
3 szoba
63 m²
XVIII. kerület
Eladó ikerház

Budapest, XVIII. kerület

149.9 M Ft
5 szoba
136 m²
XI. kerület, Kőérberek, Kánai út 31
Eladó téglalakás

Budapest, XI. kerület

156.49 M Ft
4 szoba
90 m²
XVIII. kerület
Eladó ikerház

Budapest, XVIII. kerület

149.9 M Ft
5 szoba
137 m²
XVIII. kerület
Eladó ikerház

Budapest, XVIII. kerület

119.9 M Ft
5 szoba
144 m²
XVIII. kerület
Eladó ikerház

Budapest, XVIII. kerület

149.9 M Ft
5 szoba
137 m²
XI. kerület, Kőérberek, Kánai út 31
Eladó téglalakás

Budapest, XI. kerület

121.99 M Ft
3 szoba
61 m²

Falusi CSOK ingatlanok

Levelek
Eladó családi ház

Levelek

73 M Ft
5 szoba
220 m²
Kisapáti
Eladó családi ház

Kisapáti

39.99 M Ft
2 szoba
61 m²
Sásd
Eladó családi ház

Sásd

35.9 M Ft
4 + 1 szoba
71 m²
Tiszasziget, Sziget lakópark
Eladó sorház

Tiszasziget

33.9 M Ft
2 szoba
48 m²
Noszlop
Eladó családi ház

Noszlop

162.9 M Ft
4 + 1 szoba
170 m²
Bag
Eladó ikerház

Bag

93 M Ft
3 szoba
68 m²
Beszterec
Eladó családi ház

Beszterec

54 M Ft
3 szoba
100 m²
Tótszentmárton
Eladó családi ház

Tótszentmárton

31.5 M Ft
5 szoba
130 m²