NapForrás 20 - Buda

Eladó ikerház
Budapest, XVIII. kerület

+ 1 kép 1/4
199 999 000 Ft199.999 M Ft 934 575 Ft/m2
4 szoba
214 m²
építés éve:2026

Részletes adatok

Telekméret: 200 m2
Fűtés: Egyéb
Energetikai besorolás: F

Az OTP Bank lakáshitel ajánlataFizetett hirdetés

+36 1 690
Nagy Annamária
referens

Érdekel az OTP Bank kedvezményes lakáshitel ajánlata? *

* A kérdésre „Igen” válasz bejelölése esetén, az „Üzenet küldése” gombra kattintva kijelentem, hogy az OTP Bank Nyrt. Adatkezelési tájékoztatójának tartalmát megismertem és tudomásul vettem.

Eladó ikerház leírása

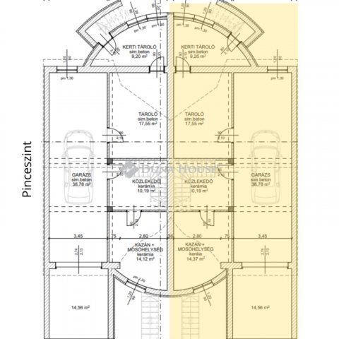
Budapest XVIII. kerületének egyik legkeresettebb részén a Péterhalmi erdő szomszédságában épül ez a kétlakásos, háromszintes, A+ energetikájú otthon, amelyből mindössze egy bal és egy jobb ikerfél készül.A 2026-os átadás miatt most még minden részlet személyre szabható.Ez az a pillanat, amikor még bele lehet nyúlni a burkolatokba, színekbe, kialakításokba később már nem.Főbb adatok:-214m2-es alapterületPinceszint: 104m21. szint: 75,5m22. szint: 35m2-Hozzá tartozó telekterület: Körülbelül 200m2Háromszintes elrendezés- Pinceszint (garázs + tárolók + gépészet),- 1.szint (nappali, konyha, étkező, szobák),- 2. szint (szoba, gardrób )Plusz további tetőtér még beépíthetőA+ energetikaA műszaki leírás szerint:- 40 cm tetőszigetelés,- hőszivattyús fűtés,- padlófűtés mindhárom szinten,- mennyezethűtés-fűtés,- Htarifás villanyóraPrémium szerkezetek és anyagok- 30 cm nf főfalak,- betonfödém,- Terrán cserépfedés,- 6 légkamrás műanyag nyílászárók 1.0 üvegezéssel,- elektromos redőnyök,- elektromos garázskapuMiért különleges?A pince szint ami miatt ez az ingatlan eltér a mai újépítésű ikerházfelektől- teljes értékűen szigetelt,- gépi vakolt falakkal,- 10 cm lépésálló hőszigeteléssel,- simított betonpadlóval készül.nem csak egy garázs, hanem egy komplett funkcionális szintFürdők, konyha, belső terek még te döntesz- 100.000 Ft-ig választható zuhanyrendszer,- 100.000 Ft-ig választható mosdószekrény,- 150.000 Ft-ig választható falba épített WC szett,- 10.000 Ft/m²-ig választható hidegburkolat,- 10.000 Ft/m²-ig választható laminált padló.Ez azt jelenti, hogy most még te alakítod ki a saját ízlésed szerint, és nem kell kompromisszumot kötni egy készre burkolt házzal.Kert és környezet- viacolor kocsibeálló,- viacolor járda,- elektromos kétszárnyú nagykapu,- 3D táblás elválasztókerítésKörnyezet:A környék hangulata egyszerre nyugodt és élhető, mégis minden fontos szolgáltatás pár percen belül elérhető.A XVIII. kerületet érintő járatok között szerepel a 166, 182, 266, 282E és 950-es busz, valamint az 50-es villamos, amely gyors kapcsolatot ad a metróhoz isAutóval pedig a kerületből indulva könnyen elérhető:- az M0,- az M5,- a Gyömrői út,- a repülőtérVárható átadás: 2026. 4. negyedévMegbízható kivitelező referencia munkákkal!

Hirdetés feltöltve: 2026. 03. 17. Utoljára módosítva: 2026. 03. 18.

4 szobás ikerházak ára Budapesten

Ebből az összehasonlításból megtudhatod, hogyan viszonyul a lakás ára a környékbeli ikerházak átlagos árához. Ez nem azt jelenti, hogy ennyivel olcsóbb vagy drágább, mint amennyit a lakás ér, hanem hogy ennyivel tér el a környékbeli átlagtól.

Ennek a m² ára
XVIII. kerület m² ár
Budapest m² ár
935 e Ft
1005 e Ft 7%
1195 e Ft 22%
Ennek az ára
XVIII. kerület átlagár
Budapest átlagár
199.999 M Ft m Ft
140.4 m Ft -42%
170.9 m Ft -17%

Az ingatlan elhelyezkedése

Cím: Budapest, XVIII. kerület

Eladó ingatlanok a környékről

XVII. kerület
Eladó téglalakás

Budapest, XVII. kerület

139 M Ft
4 szoba
120 m²
II. kerület
Eladó téglalakás

Budapest, II. kerület

63 M Ft
2 szoba
31 m²
XVIII. kerület, Erzsébettelep
Eladó ikerház

Budapest, XVIII. kerület

74.5 M Ft
4 szoba
110 m²
XVIII. kerület
Eladó ikerház

Budapest, XVIII. kerület

129.9 M Ft
5 szoba
152 m²
XXI. kerület
Eladó panellakás

Budapest, XXI. kerület

64.9 M Ft
2 + 1 szoba
55 m²
XVIII. kerület
Eladó ikerház

Budapest, XVIII. kerület

49.9 M Ft
2 szoba
40 m²
XIII. kerület, Újlipótváros, Kresz Géza
Eladó téglalakás

Budapest, XIII. kerület

59.99 M Ft
15 szoba
35 m²
IX. kerület
Eladó téglalakás

Budapest, IX. kerület

70 M Ft
2 szoba
69 m²
V. kerület, Belváros, Belgrád rakpart
Eladó téglalakás

Budapest, V. kerület

369 M Ft
4 szoba
146 m²
XVIII. kerület
Eladó ikerház

Budapest, XVIII. kerület

249 M Ft
4 szoba
164 m²
VII. kerület, Külső Erzsébetváros, Dohány utca
Eladó téglalakás

Budapest, VII. kerület

104 M Ft
3 szoba
64 m²
XVIII. kerület, Gloriett-telep, Sólyom utca
Eladó ikerház

Budapest, XVIII. kerület

49.9 M Ft
2 szoba
40 m²
XIX. kerület, Kispest
Eladó családi ház

Budapest, XIX. kerület

55 M Ft
2 szoba
76 m²
XVIII. kerület, Alacskai úti lakótelep
Eladó téglalakás

Budapest, XVIII. kerület

70.9 M Ft
2 szoba
47 m²
XVIII. kerület, Almáskert
Eladó ikerház

Budapest, XVIII. kerület

149.9 M Ft
5 szoba
137 m²
XVIII. kerület, Erzsébettelep
Eladó ikerház

Budapest, XVIII. kerület

74.5 M Ft
4 szoba
110 m²
XVIII. kerület
Eladó ikerház

Budapest, XVIII. kerület

74.5 M Ft
4 szoba
110 m²
VII. kerület
Eladó téglalakás

Budapest, VII. kerület

58 M Ft
1 szoba
39 m²
XVIII. kerület
Eladó panellakás

Budapest, XVIII. kerület

50.99 M Ft
2 szoba
35 m²
XVIII. kerület
Eladó ikerház

Budapest, XVIII. kerület

99.9 M Ft
4 szoba
110 m²
XVIII. kerület, Belsőmajor
Eladó ikerház

Budapest, XVIII. kerület

125 M Ft
7 szoba
270 m²
XVIII. kerület
Eladó ikerház

Budapest, XVIII. kerület

159 M Ft
5 szoba
134 m²
XVIII. kerület, Újpéteritelep
Eladó ikerház

Budapest, XVIII. kerület

119.9 M Ft
5 szoba
144 m²
II. kerület
Eladó téglalakás

Budapest, II. kerület

221 M Ft
2 szoba
84 m²

Falusi CSOK ingatlanok

Bugac
Eladó családi ház

Bugac

17 M Ft
3 szoba
80 m²
Somogyhárságy
Eladó családi ház

Somogyhárságy

183.75 M Ft
5 szoba
250 m²
Tésenfa, Kossuth utca 23/a
Eladó családi ház

Tésenfa

5.55 M Ft
1 + 1 szoba
109 m²
Bugac
Eladó családi ház

Bugac

90 M Ft
5 szoba
230 m²
Balatonszemes
Eladó téglalakás

Balatonszemes

202 M Ft
3 szoba
154 m²
Tiszapüspöki, Deák Ferenc utca 29
Eladó családi ház

Tiszapüspöki

4.6 M Ft
2 szoba
110 m²
Gyöngyössolymos
Eladó családi ház

Gyöngyössolymos

57.99 M Ft
4 szoba
160 m²
Adony
Eladó családi ház

Adony

84.9 M Ft
3 szoba
106 m²