Avico Greentop

Eladó ikerház
Budapest, XVIII. kerület, Alacskai úti lakótelep

+ 1 kép 1/4
194 900 000 Ft194.9 M Ft 1 188 415 Ft/m2
3 + 2 szoba
164 m²
építés éve:2025

Részletes adatok

Telekméret: 1556 m2
Fűtés: Geotermikus
Energetikai besorolás: Nem adta meg a hirdető

Az OTP Bank lakáshitel ajánlataFizetett hirdetés

+36 70 329
Hegedűs Tibor
Otp Ingatlanpont Falk Miksa

Érdekel az OTP Bank kedvezményes lakáshitel ajánlata? *

* A kérdésre „Igen” válasz bejelölése esetén, az „Üzenet küldése” gombra kattintva kijelentem, hogy az OTP Bank Nyrt. Adatkezelési tájékoztatójának tartalmát megismertem és tudomásul vettem.

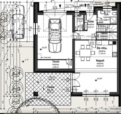
Eladó ikerház leírása

Eladó újépítésű ikerházfél, modern otthon, tágas terekkel!
Kiváló lehetőség családok számára! 2026 4. negyedévében készül el ez a 164nm hasznos alapterületű, újépítésű ikerházfél, amely modern elrendezésével és minőségi kivitelezésével hosszú távon kényelmes otthont biztosít.

Főbb jellemzők:
Összesen 4 hálószoba - ideális nagyobb családnak vagy home office kialakításához.
2 fürdőszoba - kényelmes használat több generáció számára.
Külön gardrób helyiség - rendezett tárolási lehetőség.
Zárható garázs - biztonságos parkolás és extra tárolóhely.
Tágas nappali és étkező - központi élettér a család számára.
Két terasz (földszinten és emeleten) - pihenéshez és közös időtöltéshez.

Kiváló minőségű építőanyagok és modern kialakítás.

Ez a ház egyszerre kínál praktikus belső elosztást és modern kényelmet, amely megfelel a mai igényeknek.
Várható átadás: 2026. 4. negyedév.

Ingatlanjogász ügyvédi iroda vagyunk 25 éve.
Az OTP Csoport teljes körű ügyintézéssel áll az eladók és a vevők rendelkezésére! Cégünk digitális rendszerrel dolgozik már közel 6 éve, így akár online, személyes találkozó nélkül is zökkenőmentesen vásárolhatja meg a kiválasztott ingatlant! A kínálatunkból választott ingatlan finanszírozásához kedvezményes hitel- és lízing konstrukciót, állami támogatásokat, lakás-takarékpénztári megoldásokat kínálunk. Az adásvételi szerződés megkötéséhez igény szerint megbízható ügyvédi közreműködést biztosítunk, és segítséget nyújtunk az adásvételhez kapcsolódó ügyek intézésében is. Bővebb tájékoztatásért hívjon bizalommal akár hétvégén is!

Referencia szám: M310395-ZE

Hirdetés feltöltve: 2026. 02. 19. Utoljára módosítva: 2026. 02. 19.

5 szobás ikerházak ára Budapesten

Ebből az összehasonlításból megtudhatod, hogyan viszonyul a lakás ára a környékbeli ikerházak átlagos árához. Ez nem azt jelenti, hogy ennyivel olcsóbb vagy drágább, mint amennyit a lakás ér, hanem hogy ennyivel tér el a környékbeli átlagtól.

Ennek a m² ára
XVIII. kerület m² ár
Budapest m² ár
1188 e Ft
996 e Ft -19%
1181 e Ft -1%
Ennek az ára
XVIII. kerület átlagár
Budapest átlagár
194.9 M Ft m Ft
136.7 m Ft -43%
208.1 m Ft 6%

Az ingatlan elhelyezkedése

Cím: Budapest, XVIII. kerület, Alacskai úti lakótelep

Eladó ingatlanok a környékről

XVIII. kerület
Eladó ikerház

Budapest, XVIII. kerület

135 M Ft
5 szoba
140 m²
XVIII. kerület
Eladó ikerház

Budapest, XVIII. kerület

79.9 M Ft
4 szoba
88 m²
VI. kerület, Belső Terézváros, Jókai utca
Eladó téglalakás

Budapest, VI. kerület

87.6 M Ft
3 szoba
75 m²
I. kerület, Víziváros, Széna tér
Eladó iroda

Budapest, I. kerület

189 M Ft
4 szoba
90 m²
XVIII. kerület
Eladó ikerház

Budapest, XVIII. kerület

99.9 M Ft
4 szoba
110 m²
XIII. kerület, Angyalföld, Fiastyúk utca
Eladó téglalakás

Budapest, XIII. kerület

39.9 M Ft
1 + 1 szoba
34 m²
XVIII. kerület
Eladó ikerház

Budapest, XVIII. kerület

99.9 M Ft
4 szoba
110 m²
XVIII. kerület
Eladó ikerház

Budapest, XVIII. kerület

74.5 M Ft
4 szoba
110 m²
I. kerület, Krisztinaváros, Feszty Árpád utca
Eladó téglalakás

Budapest, I. kerület

78.99 M Ft
1 szoba
28 m²
V. kerület
Eladó téglalakás

Budapest, V. kerület

159.9 M Ft
3 szoba
81 m²
XVIII. kerület, Erzsébettelep
Eladó ikerház

Budapest, XVIII. kerület

122 M Ft
4 + 1 szoba
117 m²
XVIII. kerület, Almáskert
Eladó ikerház

Budapest, XVIII. kerület

149.9 M Ft
5 szoba
136 m²
IV. kerület, Újpest, Kassai utca
Eladó téglalakás

Budapest, IV. kerület

81.9 M Ft
2 + 1 szoba
71 m²
XVIII. kerület
Eladó ikerház

Budapest, XVIII. kerület

249 M Ft
4 szoba
164 m²
XVIII. kerület, Erzsébettelep
Eladó ikerház

Budapest, XVIII. kerület

74.5 M Ft
4 szoba
110 m²
XXII. kerület, Budafok, Baross utca
Eladó családi ház

Budapest, XXII. kerület

222 M Ft
6 + 1 szoba
200 m²
XI. kerület, Lágymányos, Móricz Zsigmond körtér
Eladó téglalakás

Budapest, XI. kerület

89.5 M Ft
2 szoba
52 m²
XVIII. kerület, Almáskert
Eladó ikerház

Budapest, XVIII. kerület

149.9 M Ft
5 szoba
137 m²
VI. kerület, Külső Terézváros, Szófia utca
Eladó téglalakás

Budapest, VI. kerület

112.9 M Ft
4 szoba
103 m²
XVIII. kerület
Eladó ikerház

Budapest, XVIII. kerület

129.9 M Ft
5 szoba
152 m²
V. kerület
Eladó téglalakás

Budapest, V. kerület

110 M Ft
1 szoba
44 m²
XIV. kerület, Kiszugló, Kövér Lajos utca
Eladó téglalakás

Budapest, XIV. kerület

168 M Ft
3 + 1 szoba
84 m²
III. kerület, Óbuda, Bécsi
Eladó téglalakás

Budapest, III. kerület

79.9 M Ft
2 + 1 szoba
60 m²
I. kerület, Krisztinaváros, Széna tér
Eladó téglalakás

Budapest, I. kerület

189 M Ft
4 szoba
90 m²

Falusi CSOK ingatlanok

Vásárosdombó
Eladó ikerház

Vásárosdombó

21.7 M Ft
3 szoba
98 m²
Pécsvárad
Eladó családi ház

Pécsvárad

140 M Ft
2 szoba
79 m²
Geresdlak, Dózsa György utca
Eladó családi ház

Geresdlak

29.99 M Ft
3 szoba
90 m²
Zalalövő
Eladó családi ház

Zalalövő

34.99 M Ft
3 szoba
110 m²
Bősárkány
Eladó családi ház

Bősárkány

80 M Ft
3 szoba
98 m²
Végegyháza
Eladó családi ház

Végegyháza

62.9 M Ft
4 + 1 szoba
150 m²
Nagybánhegyes
Eladó családi ház

Nagybánhegyes

21.9 M Ft
4 szoba
150 m²
Véménd, Zrínyi Miklós utca
Eladó családi ház

Véménd

12.99 M Ft
3 szoba
70 m²