Astora Márvány8

Eladó ikerház
Budapest, XVIII. kerület, Belsőmajor

+ 3 kép 1/6
110 000 000 Ft110 M Ft 1 000 000 Ft/m2
5 szoba
110 m²
építés éve:2025

Részletes adatok

Telekméret: 170 m2
Fűtés: Egyéb
Energetikai besorolás: Nem adta meg a hirdető

Az OTP Bank lakáshitel ajánlataFizetett hirdetés

+36 70 465
Kozmáné Buga Adrienne
referens

Érdekel az OTP Bank kedvezményes lakáshitel ajánlata? *

* A kérdésre „Igen” válasz bejelölése esetén, az „Üzenet küldése” gombra kattintva kijelentem, hogy az OTP Bank Nyrt. Adatkezelési tájékoztatójának tartalmát megismertem és tudomásul vettem.

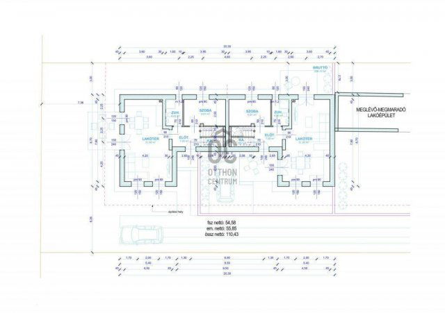
Eladó ikerház leírása

Eladó a XVIII.kerület Belsőmajorban egy ikerház!

Eladó újépítésű ikerház Budapest XVIII. kerületben a Nagykőrösi úton!
Az ingatlan egy hátsó telekrészen helyezkedik el, amit szorgalmi úton lehet megközlelíteni.

110 nm hasznos alapterületű, amerikai konyhás nappali, 4 hálós, 2 fürdőszoba-wc, kamra, terasz és saját kerttel rendelkezik, autónak udvari beálló!
A telek 266.64m2 a Telekhasználaton 2. lakás!

Műszaki tartalom (részlet)
- falazata 30-as Leier 10 cm-es grafitos szigeteléssel, lábazat 15 cm XPS szigetelés
- válaszfalak 10 cm-es Leier tégla
- födémen 20 cm-es kőzetgyapot szigeteléssel
- hőszivattyú padlófűtéssel
- 3 rétegű külső nyílászárók

A fűtése hőszivattyús, padlófűtés az egész házban
-választható vagy a nappaliban 3,5 kw-os klíma, vagy klíma kiállás kiépítése minden szobában!
-elektromos kapu,
-napelem előkészítés,
-komplett kamerarendszer riasztóval beépítve

Ami vételár részét képezi:
Meleg burkolat: 5000ft/m2 amely tartalmazza a filc alátétet és a szegélyt is.
Hideg burkolat: 5000ft/m2 amely tartalmazza a fugát és a burkolat váltókat is.

Belső tartozékok, szaniter árak:
-beltéri ajtó kilinccsel 80.000 Ft/db
-kád tartozékaival 80.000 Ft/db
-csap 20.000 Ft/db
-mosdó 20.000 Ft/db
-plusz víz csatorna kiállás kérésre 50.000 Ft/db
-villanykiállás fejegységenként 30.000 Ft/db
-Kerti csap ára kompletten szerelve: 100.000 Ft/db

szaniterek belső nyílászárók készültségi foktól függően választhatók.

Megbeszélés és egyeztetés alapján kérhetők plusz extrák és változtatások!

A lakás az összes jelenleg futó támogatásra jogosult!

Az ingatlan 30% önerővel lefoglalható!

Várható átadás 2026.II. negyedév!

Amiben segítünk :független Hitelszakértő, ügyvédi háttér!!

Hívjon a hét bármelyik napján további információért!

110000000 Ft

Referencia szám: U0048705-ZE

Hirdetés feltöltve: 2026. 02. 09. Utoljára módosítva: 2026. 03. 23.

5 szobás ikerházak ára Budapesten

Ebből az összehasonlításból megtudhatod, hogyan viszonyul a lakás ára a környékbeli ikerházak átlagos árához. Ez nem azt jelenti, hogy ennyivel olcsóbb vagy drágább, mint amennyit a lakás ér, hanem hogy ennyivel tér el a környékbeli átlagtól.

Ennek a m² ára
XVIII. kerület m² ár
Budapest m² ár
1000 e Ft
1019 e Ft 2%
1198 e Ft 17%
Ennek az ára
XVIII. kerület átlagár
Budapest átlagár
110 M Ft m Ft
140.4 m Ft 22%
212.2 m Ft 48%

Az ingatlan elhelyezkedése

Cím: Budapest, XVIII. kerület, Belsőmajor

Eladó ingatlanok a környékről

XVIII. kerület, Gloriett-telep, Sólyom utca
Eladó ikerház

Budapest, XVIII. kerület

99.9 M Ft
4 szoba
110 m²
XVIII. kerület, Almáskert
Eladó ikerház

Budapest, XVIII. kerület

149.9 M Ft
5 szoba
137 m²
XVIII. kerület, Erzsébettelep
Eladó ikerház

Budapest, XVIII. kerület

74.5 M Ft
4 szoba
110 m²
XIII. kerület
Eladó téglalakás

Budapest, XIII. kerület

85.9 M Ft
2 szoba
58 m²
VIII. kerület, Józsefváros, Üllői út
Eladó téglalakás

Budapest, VIII. kerület

119 M Ft
4 szoba
96 m²
XVIII. kerület
Eladó ikerház

Budapest, XVIII. kerület

99.9 M Ft
4 szoba
110 m²
X. kerület, Laposdűlő, Salgótarjáni utca
Eladó téglalakás

Budapest, X. kerület

59.99 M Ft
2 szoba
44 m²
XVIII. kerület, Erzsébettelep
Eladó ikerház

Budapest, XVIII. kerület

74.5 M Ft
4 szoba
110 m²
XVIII. kerület
Eladó ikerház

Budapest, XVIII. kerület

159 M Ft
5 szoba
134 m²
XVIII. kerület
Eladó ikerház

Budapest, XVIII. kerület

131.9 M Ft
5 szoba
140 m²
XVIII. kerület
Eladó ikerház

Budapest, XVIII. kerület

49.9 M Ft
2 szoba
40 m²
IX. kerület
Eladó téglalakás

Budapest, IX. kerület

71.9 M Ft
2 szoba
51 m²
XVI. kerület
Eladó családi ház

Budapest, XVI. kerület

134.9 M Ft
5 + 1 szoba
240 m²
XIX. kerület, Kispest
Eladó családi ház

Budapest, XIX. kerület

55 M Ft
2 szoba
76 m²
II. kerület
Eladó téglalakás

Budapest, II. kerület

63 M Ft
2 szoba
31 m²
XVIII. kerület, Erzsébettelep
Eladó ikerház

Budapest, XVIII. kerület

74.5 M Ft
4 szoba
110 m²
XVIII. kerület, Erzsébettelep
Eladó ikerház

Budapest, XVIII. kerület

122 M Ft
4 + 1 szoba
117 m²
XVII. kerület
Eladó téglalakás

Budapest, XVII. kerület

139 M Ft
4 szoba
120 m²
XVIII. kerület
Eladó ikerház

Budapest, XVIII. kerület

249 M Ft
4 szoba
164 m²
XVIII. kerület, Újpéteritelep
Eladó ikerház

Budapest, XVIII. kerület

119.9 M Ft
5 szoba
144 m²
XVIII. kerület, Alacskai úti lakótelep
Eladó téglalakás

Budapest, XVIII. kerület

70.9 M Ft
2 szoba
47 m²
XVIII. kerület
Eladó ikerház

Budapest, XVIII. kerület

129.9 M Ft
5 szoba
152 m²
XXI. kerület
Eladó panellakás

Budapest, XXI. kerület

64.9 M Ft
2 + 1 szoba
55 m²
V. kerület, Belváros, Belgrád rakpart
Eladó téglalakás

Budapest, V. kerület

369 M Ft
4 szoba
146 m²

Falusi CSOK ingatlanok

Balatonszemes
Eladó téglalakás

Balatonszemes

91.5 M Ft
2 szoba
60 m²
Fülöpszállás
Eladó családi ház

Fülöpszállás

23.6 M Ft
3 szoba
115 m²
Herend
Eladó téglalakás

Herend

59.99 M Ft
3 szoba
69 m²
Homokbödöge
Eladó családi ház

Homokbödöge

47.9 M Ft
4 + 1 szoba
167 m²
Badacsonytomaj
Eladó családi ház

Badacsonytomaj

392 M Ft
11 szoba
504 m²
Szigliget
Eladó családi ház

Szigliget

299 M Ft
3 szoba
95 m²
Taszár
Eladó családi ház

Taszár

82 M Ft
3 + 1 szoba
160 m²
Somogyhárságy
Eladó családi ház

Somogyhárságy

183.75 M Ft
5 szoba
250 m²