Eladó ikerház
Budapest, XVIII. kerület

+ 9 kép 1/12
120 000 000 Ft120 M Ft 1 090 909 Ft/m2
5 szoba
110 m2
építés éve:2025

Részletes adatok

Telekméret: 266 m2
Fűtés: Egyéb
Energetikai besorolás: Nem adta meg a hirdető

Az OTP Bank lakáshitel ajánlataFizetett hirdetés

+36 1 690
Zoltai István
referens

Érdekel az OTP Bank kedvezményes lakáshitel ajánlata? *

* A kérdésre „Igen” válasz bejelölése esetén, az „Üzenet küldése” gombra kattintva kijelentem, hogy az OTP Bank Nyrt. Adatkezelési tájékoztatójának tartalmát megismertem és tudomásul vettem.

Eladó ikerház leírása

18.kerület kedvelt részén Pestszentimrén

Belsőmajor városrészen modern környezetben eladó új építésű ikerház.
A kivitelező sok éves múlttal és rengeteg elégedett ügyféllel rendelkezik, referenciák akár itt a kerületben is megtekinthetőek.

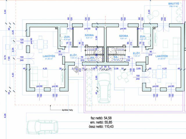
110,43 négyzetméter hasznos lakótérrel rendelkezik, mely egy 266,64 négyzetméteres telken fekszik. Nappali+4hálószobával rendelkezik, a szobák minimum 12 négyzetméteresek. A nappaliból egy 18négyzetméteres teraszon keresztül juthatunk ki a csodás saját privát kertünkbe.

Autóval az udvaron kialakított autóbeállóban lehet parkolni.

Műszaki adatok:

-30-as Prototherm tégla falazat

-15 cm-es homlokzati szigetelés

-29 cm-es szigetelés az aljzat felől

-35 cm-es szigetelés a födém felől

-3 rétegű műanyag nyílászárók

-a tető szerkezete fafödém cserépfedéssel

-elektromos kertikapu

-Hőszivattyús fűtés, padlófűtéssel

-1db hűtő-fűtő klíma

-riasztó

-térkövezett autóbeálló

-épített kerítés

Burkolatok/beltéri ajtók/szaniterek még választhatóak.

Hideg/meleg burkolatokat 5.000 Ft/m² értékhatárig van lehetőség választani, a szaniterekre, csaptelepekre és belső nyílászárókra szintén meghatározott keretösszegek állnak rendelkezésre: beltéri ajtó kilinccsel 80.000 Ft/db, kád tartozékaival 80.000 Ft-ig, csaptelep 20.000 Ft/db, mosdó 20.000 Ft/db értékig az ár részét képezik.

Átadás 2026. IV. negyedévében.

Közlekedést tekintve autóval a Gyorsforgalmi út, Üllői út, Gyömrői út az M0-ás, M5-ös és a 4-es út mind-mind maximum 5 perc alatt megközelíthető.
Tömegközlekedés 1 perc sétára, ahonnan a buszok Kőbánya Kispest vasútállomásig, illetve Határ úti metrómegálló, Ferihegyi vasútállomás, Gyáli vasútállomás is megközelíthető melyről a Keleti pályaudvarig közlekedhetünk. Séta távolságra: Gyógyszertár, Penny, Iskola, Óvoda, Posta

Kérdés esetén, hívjon a hét bármely napján!

Hirdetés feltöltve: 2025. 10. 19. Utoljára módosítva: 2025. 10. 19.

5 szobás ikerházak ára Budapesten

Ebből az összehasonlításból megtudhatod, hogyan viszonyul a lakás ára a környékbeli ikerházak átlagos árához. Ez nem azt jelenti, hogy ennyivel olcsóbb vagy drágább, mint amennyit a lakás ér, hanem hogy ennyivel tér el a környékbeli átlagtól.

Ennek a m² ára
XVIII. kerület m² ár
Budapest m² ár
1091 e Ft
959 e Ft -14%
1140 e Ft 4%
Ennek az ára
XVIII. kerület átlagár
Budapest átlagár
120 M Ft m Ft
138.2 m Ft 13%
203.5 m Ft 41%

Az ingatlan elhelyezkedése

Cím: Budapest, XVIII. kerület

Eladó ingatlanok a környékről

Eladó panellakás
Eladó panellakás

XXI. kerület

58.9 M Ft
2 szoba
55 m2
Eladó ikerház
Eladó ikerház

XVIII. kerület

150 M Ft
3 szoba
212 m2
Eladó ikerház
Eladó ikerház

XVIII. kerület

124.9 M Ft
5 szoba
163 m2
Eladó családi ház
Eladó családi ház

XVIII. kerület

145 M Ft
4 szoba
155 m2
Eladó ikerház
Eladó ikerház

XVIII. kerület

35 M Ft
2 szoba
50 m2
Eladó ikerház
Eladó ikerház

XVIII. kerület

125 M Ft
5 szoba
143 m2
Eladó ikerház
Eladó ikerház

XVIII. kerület

100 M Ft
4 szoba
158 m2
Eladó ikerház
Eladó ikerház

XVIII. kerület

100 M Ft
4 szoba
158 m2
Eladó ikerház
Eladó ikerház

XVIII. kerület

100 M Ft
4 szoba
158 m2
Eladó téglalakás
Eladó téglalakás

III. kerület

159 M Ft
3 szoba
81 m2
Eladó panellakás
Eladó panellakás

IV. kerület, Újpest

85 M Ft
3 + 1 szoba
70 m2
Eladó ikerház
Eladó ikerház

XVIII. kerület, Újpéteritelep

129.99 M Ft
5 szoba
134 m2
Eladó ikerház
Eladó ikerház

XVIII. kerület, Ganzkertváros

125 M Ft
5 szoba
143 m2
Eladó ikerház
Eladó ikerház

XVIII. kerület, Ganztelep, Hubay Jenő utca

35 M Ft
2 szoba
50 m2
Eladó téglalakás
Eladó téglalakás

XII. kerület

129 M Ft
3 szoba
64 m2
Eladó panellakás
Eladó panellakás

XXI. kerület

62.999 M Ft
1 + 2 szoba
58 m2
Eladó téglalakás
Eladó téglalakás

III. kerület

0.39 M Ft
3 + 1 szoba
70 m2
Eladó ikerház
Eladó ikerház

XVIII. kerület

154.9 M Ft
6 szoba
172 m2
Eladó panellakás
Eladó panellakás

XX. kerület

69 M Ft
3 szoba
65 m2
Eladó ikerház
Eladó ikerház

XVIII. kerület

125 M Ft
5 szoba
143 m2
Eladó panellakás
Eladó panellakás

XXI. kerület

58.9 M Ft
2 szoba
55 m2
Eladó családi ház
Eladó családi ház

XVIII. kerület

165 M Ft
5 szoba
162 m2
Eladó üzlethelyiség
Eladó üzlethelyiség

VIII. kerület, Józsefváros, Dankó utca

27 M Ft
20 m2
Eladó ikerház
Eladó ikerház

XVIII. kerület, Almáskert

249 M Ft
4 szoba
164 m2

Falusi CSOK ingatlanok

Eladó családi ház
Eladó családi ház

Zalakomár

12 M Ft
3 szoba
72 m2
Eladó családi ház
Eladó családi ház

Babócsa, Béke utca 9

5.08 M Ft
1 + 1 szoba
83 m2
Eladó családi ház
Eladó családi ház

Rábaszentandrás

24 M Ft
3 szoba
130 m2
Eladó családi ház
Eladó családi ház

Beled, Fő utca 101

18.62 M Ft
1 + 1 szoba
119 m2
Eladó családi ház
Eladó családi ház

Bakonybánk, Kossuth Lajos utca 26

13.36 M Ft
1 + 1 szoba
105 m2
Eladó családi ház
Eladó családi ház

Tök

124.2 M Ft
4 szoba
128 m2
Eladó családi ház
Eladó családi ház

Tök

96.2 M Ft
4 szoba
104 m2
Eladó családi ház
Eladó családi ház

Tésenfa, Kossuth utca 23/a

5.55 M Ft
1 + 1 szoba
109 m2