Aerogate Homes

Eladó ikerház
Budapest, XVIII. kerület

1/2
159 900 000 Ft159.9 M Ft 980 982 Ft/m2
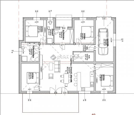
5 szoba
163 m2
építés éve:2025

Részletes adatok

Telekméret: 658 m2
Fűtés: Egyéb
Energetikai besorolás: Nem adta meg a hirdető

Az OTP Bank lakáshitel ajánlataFizetett hirdetés

+36 1 690
Velencei Zelina
referens

Érdekel az OTP Bank kedvezményes lakáshitel ajánlata? *

* A kérdésre „Igen” válasz bejelölése esetén, az „Üzenet küldése” gombra kattintva kijelentem, hogy az OTP Bank Nyrt. Adatkezelési tájékoztatójának tartalmát megismertem és tudomásul vettem.

Eladó ikerház leírása

18.kerület legkedveltebb részén Almáskertben.

Almáskertben modern környezetben eladó új építésű egyszintes önálló családi ház.A kivitelező sok éves múlttal és rengeteg elégedett ügyféllel rendelkezik, referenciák akár itt a lakóparkban is megtekinthetőek.

163 négyzetméter hasznos lakótérrel rendelkezik, mely egy 660 négyzetméteres telken fekszik. Nappali+4 hálószobával rendelkezik, a szobák minimum 12 négyzetméteresek. Az 56 négyzetméteres tágas nappaliból egy privát teraszon keresztül juthatunk ki a csodás kertünkbe.
Autóval garázsban és az udvaron is lehet parkolni.Műszaki adatok:-30-as Prototherm tégla falazat-15 cm-es homlokzati szigetelés-29 cm-es szigetelés az aljzat felől-35 cm-es szigetelés a födém felől-3 rétegű műanyag nyílászárók, kívül antracit, belül fehér színnel-a tető szerkezete fafödém cserépfedéssel-elektromos garázskapu-elektromos kertikapu-Hőszivattyús fűtés, padlófűtéssel-1db hűtő-fűtő klíma-riasztó és kamerarendszer-térkövezett autóbeálló-2 fürdőszoba-mosókonyha Burkolatok/beltéri ajtók/szaniterek még választhatóak.Átadás 2026. III. negyedévében.A lakópark teljesen új modern környezet, összetartó közösség jellemzi. Közlekedést tekintve autóval a Gyorsforgalmi út, Üllői út, Gyömrői út az M0-ás, M5-ös és a 4-es út mind-mind maximum 5 perc alatt megközelíthető.Tömegközlekedés 3 perc sétára, ahonnan a buszok Kőbánya Kispest vasútállomásig, illetve Határ úti metrómegálló, Ferihegyi vasútállomás is megközelíthető. 10 perc busz távolságra Ferihegyi vasútállomás, melyről a Nyugati pályaudvarig közlekedhetünk. Séta távolságra: Gyógyszertár, Spar, Iskola, Óvoda, Posta.

Felkeltette érdeklődését keressen bizalommal a hét bármely napján!

Hirdetés feltöltve: 2025. 10. 19. Utoljára módosítva: 2025. 12. 16.

5 szobás ikerházak ára Budapesten

Ebből az összehasonlításból megtudhatod, hogyan viszonyul a lakás ára a környékbeli ikerházak átlagos árához. Ez nem azt jelenti, hogy ennyivel olcsóbb vagy drágább, mint amennyit a lakás ér, hanem hogy ennyivel tér el a környékbeli átlagtól.

Ennek a m² ára
XVIII. kerület m² ár
Budapest m² ár
981 e Ft
960 e Ft -2%
1153 e Ft 15%
Ennek az ára
XVIII. kerület átlagár
Budapest átlagár
159.9 M Ft m Ft
135.3 m Ft -18%
196.4 m Ft 19%

Az ingatlan elhelyezkedése

Cím: Budapest, XVIII. kerület

Eladó ingatlanok a környékről

Eladó téglalakás
Eladó téglalakás

VII. kerület

158.7 M Ft
3 szoba
59 m2
Eladó téglalakás
Eladó téglalakás

XIV. kerület, Istvánmező

85 M Ft
1 + 1 szoba
46 m2
Eladó ikerház
Eladó ikerház

XVIII. kerület, Újpéteritelep

69.9 M Ft
4 szoba
155 m2
Eladó ikerház
Eladó ikerház

XVIII. kerület

150 M Ft
3 szoba
212 m2
Eladó ikerház
Eladó ikerház

XVIII. kerület

49.9 M Ft
2 szoba
40 m2
Eladó ikerház
Eladó ikerház

XVIII. kerület

99.9 M Ft
4 szoba
110 m2
Eladó ikerház
Eladó ikerház

XVIII. kerület

49.9 M Ft
2 szoba
70 m2
Eladó ikerház
Eladó ikerház

XVIII. kerület

135 M Ft
5 szoba
140 m2
Eladó téglalakás
Eladó téglalakás

IX. kerület, Ferencváros, Nagyvárad tér

119.9 M Ft
3 szoba
73 m2
Eladó ikerház
Eladó ikerház

XVIII. kerület

124.9 M Ft
5 szoba
163 m2
Eladó családi ház
Eladó családi ház

XVIII. kerület, Ganztelep, Barcika tér

140 M Ft
4 szoba
160 m2
Eladó ikerház
Eladó ikerház

XVIII. kerület

49.9 M Ft
2 szoba
40 m2
Eladó ikerház
Eladó ikerház

XVIII. kerület

99.9 M Ft
4 szoba
110 m2
Eladó téglalakás
Eladó téglalakás

XXI. kerület

32.9 M Ft
2 szoba
26 m2
Eladó téglalakás
Eladó téglalakás

XXI. kerület

32.9 M Ft
2 szoba
36 m2
Eladó téglalakás
Eladó téglalakás

VII. kerület, Külső Erzsébetváros, Hernád utca

86 M Ft
3 szoba
75 m2
Eladó ikerház
Eladó ikerház

XVIII. kerület

129.9 M Ft
5 szoba
143 m2
Eladó ikerház
Eladó ikerház

XVIII. kerület, Gloriett-telep, Sólyom utca

99.9 M Ft
4 szoba
110 m2
Eladó családi ház
Eladó családi ház

III. kerület, Táborhegy, Farkastorki út

549 M Ft
7 szoba
700 m2
Eladó téglalakás
Eladó téglalakás

XXI. kerület

32.9 M Ft
2 szoba
30 m2
Eladó ikerház
Eladó ikerház

XVIII. kerület

154.9 M Ft
6 szoba
172 m2
Eladó panellakás
Eladó panellakás

XIV. kerület

69.5 M Ft
2 szoba
46 m2
Eladó ikerház
Eladó ikerház

XVIII. kerület

99.9 M Ft
4 szoba
110 m2
Eladó ikerház
Eladó ikerház

XVIII. kerület, Ganzkertváros

129.9 M Ft
5 szoba
143 m2

Falusi CSOK ingatlanok

Eladó családi ház
Eladó családi ház

Vitnyéd, Petőfi Sándor utca 3

16.71 M Ft
1 + 1 szoba
99 m2
Eladó családi ház
Eladó családi ház

Balatonfenyves

430 M Ft
4 szoba
274 m2
Eladó ikerház
Eladó ikerház

Tápióbicske

28.5 M Ft
4 szoba
74 m2
Eladó családi ház
Eladó családi ház

Dunaalmás

52.5 M Ft
3 + 1 szoba
140 m2
Eladó családi ház
Eladó családi ház

Kemeneshőgyész

8 M Ft
2 szoba
60 m2
Eladó családi ház
Eladó családi ház

Aszaló

16.49 M Ft
3 szoba
112 m2
Eladó családi ház
Eladó családi ház

Mikebuda

68.5 M Ft
2 szoba
90 m2
Eladó családi ház
Eladó családi ház

Tésenfa, Kossuth utca 23/a

5.55 M Ft
1 + 1 szoba
109 m2