Astora Art House

Eladó ikerház
Budapest, XVIII. kerület

1/2
159 900 000 Ft159.9 M Ft 975 000 Ft/m2
4 szoba
164 m2
építés éve:2025

Részletes adatok

Telekméret: 500 m2
Fűtés: Egyéb
Energetikai besorolás: Nem adta meg a hirdető

Az OTP Bank lakáshitel ajánlataFizetett hirdetés

+36 1 444
Fazekas Istvánné Nóra
referens

Érdekel az OTP Bank kedvezményes lakáshitel ajánlata? *

* A kérdésre „Igen” válasz bejelölése esetén, az „Üzenet küldése” gombra kattintva kijelentem, hogy az OTP Bank Nyrt. Adatkezelési tájékoztatójának tartalmát megismertem és tudomásul vettem.

Eladó ikerház leírása

18.kerület legkedveltebb részén Almáskertben

Almáskertben modern környezetben eladó új építésű ikerházfél.
A kivitelező sok éves múlttal és rengeteg elégedett ügyféllel rendelkezik, referenciák akár itt a lakóparkban is megtekinthetőek.

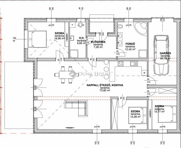
164,25 négyzetméter hasznos lakótérrel rendelkezik, mely egy 500 négyzetméteres telken fekszik. Nappali+3hálószobával rendelkezik, a szobák minimum 12 négyzetméteresek. A földszinten elhelyezkedő 73négyzetméteres nappali+amerikai konyha tágas életteret biztosít, melyből egy csodás privát teraszon keresztül juthatunk ki a saját privát kertünkbe.

Autóval garázsban és az udvaron is lehet parkolni.

Műszaki adatok:

-30-as Prototherm tégla falazat

-15 cm-es homlokzati szigetelés

-29 cm-es szigetelés az aljzat felől

-35 cm-es szigetelés a födém felől

-3 rétegű műanyag nyílászárók, fehér színnel

-a tető szerkezete fafödém cserépfedéssel

-elektromos garázskapu fehér színnel

-elektromos kertikapu

-Hőszivattyús fűtés, padlófűtéssel

-1db hűtő-fűtő klíma

-mosókonyha

-riasztó és kamerarendszer

-térkövezett autóbeálló

Burkolatok/beltéri ajtók/szaniterek még választhatóak.

A HÁZAK CSAK GARÁZZSAL ÉRINTKEZNEK!

A lakópark teljesen új modern környezet, összetartó közösség jellemzi. Közlekedést tekintve autóval a Gyorsforgalmi út, Üllői út, Gyömrői út az M0-ás, M5-ös és a 4-es út mind-mind maximum 5 perc alatt megközelíthető.

Tömegközlekedés 3 perc sétára, ahonnan a buszok Kőbánya Kispest vasútállomásig, illetve Határ úti metrómegálló, Ferihegyi vasútállomás is megközelíthető. 10 perc busz távolságra Ferihegyi vasútállomás, melyről a Nyugati pályaudvarig közlekedhetünk. Séta távolságra: Gyógyszertár, Spar, Iskola, Óvoda, Posta

Felkeltette érdeklődését keressen bizalommal a hét bármely napján!

Referencia szám: HZ094200

Hirdetés feltöltve: 2025. 10. 15. Utoljára módosítva: 2025. 11. 11.

4 szobás ikerházak ára Budapesten

Ebből az összehasonlításból megtudhatod, hogyan viszonyul a lakás ára a környékbeli ikerházak átlagos árához. Ez nem azt jelenti, hogy ennyivel olcsóbb vagy drágább, mint amennyit a lakás ér, hanem hogy ennyivel tér el a környékbeli átlagtól.

Ennek a m² ára
XVIII. kerület m² ár
Budapest m² ár
975 e Ft
901 e Ft -8%
1275 e Ft 24%
Ennek az ára
XVIII. kerület átlagár
Budapest átlagár
159.9 M Ft m Ft
129.7 m Ft -23%
184.9 m Ft 13%

Az ingatlan elhelyezkedése

Cím: Budapest, XVIII. kerület

Eladó ingatlanok a környékről

Eladó ikerház
Eladó ikerház

XVIII. kerület

124.9 M Ft
5 szoba
163 m2
Eladó ikerház
Eladó ikerház

XVIII. kerület

100 M Ft
4 szoba
158 m2
Eladó ikerház
Eladó ikerház

XVIII. kerület, Újpéteritelep

69.9 M Ft
4 szoba
155 m2
Eladó téglalakás
Eladó téglalakás

XIII. kerület

474.95 M Ft
4 szoba
147 m2
Eladó ikerház
Eladó ikerház

XVIII. kerület, Gloriett-telep, Sólyom utca

49.9 M Ft
2 szoba
40 m2
Eladó garázs
Eladó garázs

XIII. kerület

10.535 M Ft
13 m2
Eladó ikerház
Eladó ikerház

XVIII. kerület, Gloriett-telep, Sólyom utca

49.9 M Ft
2 szoba
70 m2
Eladó garázs
Eladó garázs

XIII. kerület

8.535 M Ft
13 m2
Eladó téglalakás
Eladó téglalakás

XIII. kerület

424.95 M Ft
4 szoba
135 m2
Eladó ikerház
Eladó ikerház

XVIII. kerület, Almáskert

150 M Ft
3 szoba
212 m2
Eladó téglalakás
Eladó téglalakás

V. kerület, Belváros, Petőfi Sándor utca

199 M Ft
2 + 1 szoba
95 m2
Eladó családi ház
Eladó családi ház

XX. kerület

129.9 M Ft
5 + 1 szoba
166 m2
Eladó ikerház
Eladó ikerház

XVIII. kerület

150 M Ft
3 szoba
212 m2
Eladó ikerház
Eladó ikerház

XVIII. kerület, Almáskert

249 M Ft
4 szoba
164 m2
Eladó téglalakás
Eladó téglalakás

XIII. kerület

394.95 M Ft
4 szoba
115 m2
Eladó családi ház
Eladó családi ház

XVII. kerület

259 M Ft
4 szoba
243 m2
Eladó ikerház
Eladó ikerház

XVIII. kerület

129.9 M Ft
5 szoba
143 m2
Eladó ikerház
Eladó ikerház

XVIII. kerület

124.9 M Ft
5 szoba
142 m2
Eladó ikerház
Eladó ikerház

XVIII. kerület

49.9 M Ft
2 szoba
70 m2
Eladó téglalakás
Eladó téglalakás

XIII. kerület

379.95 M Ft
4 szoba
131 m2
Eladó ikerház
Eladó ikerház

XVIII. kerület

154.9 M Ft
6 szoba
172 m2
Eladó téglalakás
Eladó téglalakás

XIII. kerület

407 M Ft
4 szoba
153 m2
Eladó ikerház
Eladó ikerház

XVIII. kerület, Gloriett-telep, Sólyom utca

99.9 M Ft
4 szoba
110 m2
Eladó téglalakás
Eladó téglalakás

XIII. kerület

296 M Ft
4 szoba
101 m2

Falusi CSOK ingatlanok

Eladó családi ház
Eladó családi ház

Balatonfenyves

430 M Ft
4 szoba
274 m2
Eladó családi ház
Eladó családi ház

Törtel, Kőrösi út 101

22.21 M Ft
2 szoba
117 m2
Eladó családi ház
Eladó családi ház

Törtel

10 M Ft
2 szoba
32 m2
Eladó családi ház
Eladó családi ház

Andornaktálya

65 M Ft
3 szoba
80 m2
Eladó családi ház
Eladó családi ház

Döröske

104.721 M Ft
3 szoba
114 m2
Eladó családi ház
Eladó családi ház

Tokod

89 M Ft
6 szoba
187 m2
Eladó családi ház
Eladó családi ház

Ábrahámhegy

139 M Ft
4 szoba
106 m2
Eladó családi ház
Eladó családi ház

Ceglédbercel

49.9 M Ft
4 szoba
120 m2