Aerogate Homes

Eladó ikerház
Budapest, XIX. kerület

+ 12 kép 1/15
120 000 000 Ft120 M Ft 1 200 000 Ft/m2
3 szoba
100 m²
építés éve:2025

Részletes adatok

Telekméret: 100 m2
Fűtés: Egyéb
Energetikai besorolás: A+

Az OTP Bank lakáshitel ajánlataFizetett hirdetés

+36 70 465
Csuha Attila
referens

Érdekel az OTP Bank kedvezményes lakáshitel ajánlata? *

* A kérdésre „Igen” válasz bejelölése esetén, az „Üzenet küldése” gombra kattintva kijelentem, hogy az OTP Bank Nyrt. Adatkezelési tájékoztatójának tartalmát megismertem és tudomásul vettem.

Eladó ikerház leírása

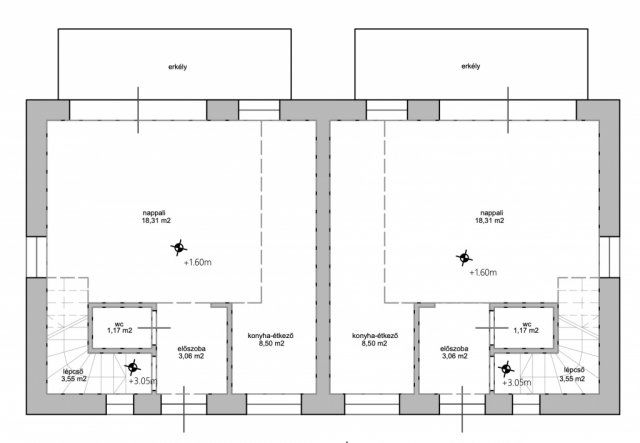
Megvételre kínálunk Kispest kertvárosában újépítésű belső kétszintes nettó 100 m2 -es lakást.
Az ingatlan magas minőségű alapanyagok felhasználásával, jó műszaki tartalommal épült.
Elosztása: amerikai konyhás nappali plusz három hálószoba, fürdőszoba WC-vel, külön WC, előszoba.
Műszaki jellemzők:
-Hőszivattyús hűtés-fűtés
- minden szoba klimatizált,
- padlófűtés
- elektromos alumínium redőnyök
- szúnyogháló
- videós kaputelefon
Várható átadás 2026 IV negyedév. Használatbavételi engedélyt megkapta a lakás!
Amennyiben olyan új ingatlant szeretne, ahol kis lakóközösség várja Önt, biztosíthatom, hogy az egyik legjobb választás a kerületben.

A közelében minden megtalálható, ami fontos a hétköznapokban.
A környék remek infrastruktúrával rendelkezik.

CSOK, Babaváró, Lakásfelújítás, Támogatott hitelek?
Irodánk minden állami támogatás és lakáshitel igény kapcsán DÍJMENTES és SZAKÉRTŐ segítséget nyújt!
Igény szerint ügyvédi hátteret is biztosítunk.
Bővebb információért keressen, várom!

120000000 Ft
Csuha Attila +36704545076
Email: csuha.attila@oc.hu
Várom megtisztelő hívását a hét bármely napján!

Referencia szám: H499317-ZE

Hirdetés feltöltve: 2026. 02. 11. Utoljára módosítva: 2026. 03. 05.

3 szobás ikerházak ára Budapesten

Ebből az összehasonlításból megtudhatod, hogyan viszonyul a lakás ára a környékbeli ikerházak átlagos árához. Ez nem azt jelenti, hogy ennyivel olcsóbb vagy drágább, mint amennyit a lakás ér, hanem hogy ennyivel tér el a környékbeli átlagtól.

Ennek a m² ára
XIX. kerület m² ár
Budapest m² ár
1200 e Ft
639 e Ft -88%
1127 e Ft -7%
Ennek az ára
XIX. kerület átlagár
Budapest átlagár
120 M Ft m Ft
56.4 m Ft -113%
107 m Ft -12%

Az ingatlan elhelyezkedése

Cím: Budapest, XIX. kerület

Eladó ingatlanok a környékről

XIX. kerület
Eladó ikerház

Budapest, XIX. kerület

139.9 M Ft
5 szoba
130 m²
II. kerület, Budaliget
Eladó téglalakás

Budapest, II. kerület

94.9 M Ft
4 szoba
80 m²
XVI. kerület
Eladó családi ház

Budapest, XVI. kerület

240 M Ft
5 szoba
200 m²
XIX. kerület, Kispest, Pozsony utca
Eladó ikerház

Budapest, XIX. kerület

119.9 M Ft
4 szoba
98 m²
XVII. kerület, Rákoscsaba
Eladó családi ház

Budapest, XVII. kerület

170 M Ft
6 szoba
163 m²
XIX. kerület
Eladó ikerház

Budapest, XIX. kerület

139.9 M Ft
5 szoba
130 m²
XIX. kerület, Kispest
Eladó ikerház

Budapest, XIX. kerület

81 M Ft
2 szoba
56 m²
XIX. kerület
Eladó ikerház

Budapest, XIX. kerület

139.9 M Ft
5 szoba
130 m²
XIX. kerület
Eladó ikerház

Budapest, XIX. kerület

289 M Ft
7 szoba
260 m²
III. kerület, Óbuda
Eladó téglalakás

Budapest, III. kerület

134 M Ft
3 szoba
93 m²
X. kerület, Óhegy
Eladó téglalakás

Budapest, X. kerület

37.9 M Ft
1 szoba
35 m²
XVII. kerület
Eladó családi ház

Budapest, XVII. kerület

239 M Ft
6 szoba
182 m²
XIX. kerület, Kispest
Eladó ikerház

Budapest, XIX. kerület

289 M Ft
7 szoba
260 m²
XIX. kerület
Eladó ikerház

Budapest, XIX. kerület

139.9 M Ft
5 szoba
130 m²
XIX. kerület
Eladó ikerház

Budapest, XIX. kerület

289 M Ft
7 szoba
260 m²
XI. kerület
Eladó téglalakás

Budapest, XI. kerület

94.9 M Ft
2 szoba
49 m²
XIV. kerület, Alsórákos
Eladó téglalakás

Budapest, XIV. kerület

62.99 M Ft
2 szoba
58 m²
VIII. kerület
Eladó panellakás

Budapest, VIII. kerület

85 M Ft
3 szoba
74 m²
XIX. kerület
Eladó ikerház

Budapest, XIX. kerület

139.9 M Ft
5 szoba
130 m²
V. kerület, Lipótváros, Kálmán Imre utca
Eladó téglalakás

Budapest, V. kerület

43 M Ft
1 szoba
26 m²
VI. kerület
Eladó téglalakás

Budapest, VI. kerület

97 M Ft
3 szoba
69 m²
XVI. kerület
Eladó ikerház

Budapest, XVI. kerület

198 M Ft
6 szoba
175 m²
XIX. kerület, Kispest
Eladó ikerház

Budapest, XIX. kerület

80 M Ft
3 szoba
96 m²
XIX. kerület
Eladó ikerház

Budapest, XIX. kerület

84.9 M Ft
3 szoba
95 m²

Falusi CSOK ingatlanok

Törtel
Eladó családi ház

Törtel

36.4 M Ft
3 szoba
114 m²
Ceglédbercel, Aranyhegy utca
Eladó családi ház

Ceglédbercel

99.9 M Ft
5 szoba
110 m²
Zalacsány
Eladó családi ház

Zalacsány

120 M Ft
5 + 1 szoba
220 m²
Szigetcsép
Eladó családi ház

Szigetcsép

92.9 M Ft
4 szoba
145 m²
Kocsér
Eladó családi ház

Kocsér

58.59 M Ft
4 szoba
92 m²
Újszilvás
Eladó családi ház

Újszilvás

49.9 M Ft
8 szoba
310 m²
Buj, Arany János utca 17
Eladó családi ház

Buj

0.1 M Ft
1 + 1 szoba
98 m²
Homokbödöge
Eladó családi ház

Homokbödöge

49.9 M Ft
4 + 1 szoba
167 m²