Seven Pearl

Eladó ikerház
Budapest, X. kerület

+ 9 kép 1/12
180 000 000 Ft180 M Ft 1 475 410 Ft/m2
4 szoba
122 m2
építés éve:2026

Részletes adatok

Telekméret: 231 m2
Fűtés: Egyéb
Parkolás: Garázs
Energetikai besorolás: Nem adta meg a hirdető

Az OTP Bank lakáshitel ajánlataFizetett hirdetés

+36 1 690
Zámbó Beatrix
referens

Érdekel az OTP Bank kedvezményes lakáshitel ajánlata? *

* A kérdésre „Igen” válasz bejelölése esetén, az „Üzenet küldése” gombra kattintva kijelentem, hogy az OTP Bank Nyrt. Adatkezelési tájékoztatójának tartalmát megismertem és tudomásul vettem.

Eladó ikerház leírása

Modern, kétszintes újépítésű ikerház!
Budapest X. kerület egyik legnyugodtabb területén, egy csendes mellékutcában, gyönyörű és minőségi családi otthon épül!
Az ingatlan a mai kor műszaki elvárásai szerint kerül felépítésre. Prémium minőségű gépészet és kiváló minőségű anyagok felhasználásával.
A telek adta lehetőségek a leg optimálisabban került kihasználásra, az ikerház felépítésére.
Belső terei megtervezésekor első számú szempont volt a XXI. századi modern kialakítás, a kényelmes és egyben praktikus tér elrendezés.
Az ingatlanhoz tartozik egy 231 m2-es kert, amely tökéletes egy nagyobb család számára is. A kert privát és nem látni be rá, megfelelő intimitást nyújt.
A csendes elhelyezkedés egyben egy remek infrastruktúrát jelent. A környéken minden megtalálható amire az embernek szüksége lehet, illetve a belváros is rendkívül gyorsan megközelíthető, autóval, és tömegközlekedéssel is.
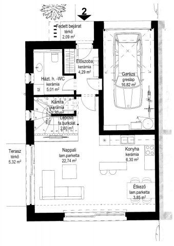
A ház helységei két szinten oszlanak meg, a hasznos alapterület 122 m2.

Az otthon szíve a, közel 33 m2-es amerikai konyhás nappali, ami terasz kapcsolatos, ezen a szinten még zuhanyzó+wc, háztartási helyiség kerül kialakításra.
Tartozik az ingatlanhoz egy fedett garázs is, ahova bőven be lehet parkolni egy nagyméretű autóval is, illetve a holmik tárolására is tökéletes.
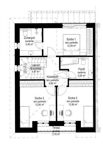
A felső szinten további 3 db teljes értékű szoba várja új tulajdonosait, a lakók kényelmét még két db fürdőszoba szolgálja.
A vételár tartalmazza:
- beépített gépesített konyabútort,
- a teljes kertépítést,
- a beépített gardróbszekrényeket.
MŰSZAKI TARTALOM:

- Főfalak: 30 cm POROTHERM 30 N+F vázkerámia falazóblokk falazat ragasztva,
- Válaszfalak: 10 cm vtg. kerámia válaszfallapból, speciális ragasztóval,
- Koszorúk: monolit vasbeton szerkezet, külső oldalán 5 cm plusz kiegészítő hőszigeteléssel,
- Födém: monolit vasbeton födém készül, statikai méretezés szerint, emelet felett fa fedélszék ,
- Tető: hagyományos ácsszerkezetű magastető készül 25 fokos hajlásszöggel, dobozolt eresz kialakítással, Terrán Zenit Max Carbon szürke színben cserépfedéssel.
- Műanyag nyílászárók fenyő színben, 3 rétegű hőszigetelő üvegezéssel és több ponton
záródó biztonsági bejárati ajtóval.
- Burkolatok: hálószobákban laminált parketta melegburkolat, vizes helyiségeben kerámia-, és csempeburkolat készül. Kültéren a gépkocsi behajtó és járdák térkő burkolatúak.
- Homlokzati hőszigetelés expandált polisztirol hőszigetelő lemez 15 cm vtg-ban
- Lábazati hőszigetelés extrudált polisztirol hőszigetelő lemez 12 cm vtg-ban
- Koszorú külső hőszigetelés expandált polisztirol hőszigetelő lemez 5 cm vtg-ban
- Hőszigetelés padlóban expandált polisztirol hőszigetelő lemez 10 cm vtg-ban
- Födém feletti hőszigetelés EPS hőszigetelés, 20 cm vtg-ban,
- hőszivattyús fűtés, mennyezeti fűtés, hútés.
EXTRÁK:
- OKOS RENDSZER,
- elektromos redőnyök,
- kamera és riasztó rendszer kiépítés,
- videó kaputelefon,
- elektromos kapu,
- öntöző rendszer,
- elektromos autótöltő kiépítés,
- Wpc kerítés,
- 3 rétegű üvegek,
- rejtett világítások,
- udvar világítások,
- légtechnika.
Teljes átláthatóság az építkezés során – digitálisan, kényelmesen, biztonságosan!
Az építkezés nálunk nem csak szakmai precizitásról szól, hanem valódi átláthatóságról is. A PlanRadar digitális projektkövető rendszerének köszönhetően Ön, mint leendő tulajdonos:
• Valós időben nyomon követheti az építkezés minden lépését – akár mobilról is.
• Kéthetente részletes jelentést kap az aktuális állapotról, fotókkal, dokumentumokkal.
• A projekt végén digitálisan megkapja az összes hivatalos dokumentumot, beleértve a garanciákat, tervrajzokat, átadási jegyzőkönyveket – mindezt egyetlen, biztonságos platformon.


FINANSZÍROZÁS: Hitelre megvásárolható, vevőink részére díjmentes hitel közvetítés, minden magyarországi bankból. Állami támogatások felvehetőek rá!

Átadás: 2026. III. NEGYEDÉV
Ne hagyja ki ezt a páratlan lehetőséget! Egy ilyen prémium ingatlan ritkán kerül piacra, és most Ön előtt áll a lehetőség, hogy a város egyik legvonzóbb helyén éljen. Tökéletes választás a modern, kényelmes és biztonságos életstílust keresők számára!
Várom megtisztelő hívását a hét minden napján!

Hirdetés feltöltve: 2025. 11. 16. Utoljára módosítva: 2025. 11. 20.

4 szobás ikerházak ára Budapesten

Ebből az összehasonlításból megtudhatod, hogyan viszonyul a lakás ára a környékbeli ikerházak átlagos árához. Ez nem azt jelenti, hogy ennyivel olcsóbb vagy drágább, mint amennyit a lakás ér, hanem hogy ennyivel tér el a környékbeli átlagtól.

Ennek a m² ára
Budapest m² ár
1475 e Ft
1275 e Ft -16%
Ennek az ára
Budapest átlagár
180 M Ft m Ft
184.9 m Ft 3%

Az ingatlan elhelyezkedése

Cím: Budapest, X. kerület

Eladó ingatlanok a környékről

Eladó ikerház
Eladó ikerház

X. kerület

90 M Ft
5 szoba
190 m2
Eladó téglalakás
Eladó téglalakás

V. kerület

60 M Ft
1 szoba
33 m2
Eladó panellakás
Eladó panellakás

IV. kerület

71 M Ft
3 szoba
64 m2
Eladó téglalakás
Eladó téglalakás

VIII. kerület

82.2 M Ft
6 + 1 szoba
76 m2
Eladó téglalakás
Eladó téglalakás

VII. kerület

99.9 M Ft
3 szoba
67 m2
Eladó téglalakás
Eladó téglalakás

XIX. kerület

43.9 M Ft
1 szoba
29 m2
Eladó téglalakás
Eladó téglalakás

XIV. kerület

29.9 M Ft
2 szoba
45 m2
Eladó ikerház
Eladó ikerház

X. kerület

90 M Ft
5 szoba
190 m2
Eladó téglalakás
Eladó téglalakás

XIII. kerület, Angyalföld

69.9 M Ft
2 szoba
41 m2
Eladó családi ház
Eladó családi ház

XX. kerület

49.9 M Ft
2 szoba
72 m2
Eladó ikerház
Eladó ikerház

X. kerület

128 M Ft
4 szoba
129 m2
Eladó ikerház
Eladó ikerház

X. kerület

128 M Ft
4 szoba
129 m2
Eladó ikerház
Eladó ikerház

X. kerület

90 M Ft
5 szoba
190 m2
Eladó ikerház
Eladó ikerház

X. kerület

90 M Ft
5 szoba
190 m2
Eladó téglalakás
Eladó téglalakás

VIII. kerület

37.9 M Ft
1 szoba
24 m2
Eladó családi ház
Eladó családi ház

XV. kerület

85 M Ft
3 szoba
80 m2
Eladó családi ház
Eladó családi ház

XIX. kerület, Wekerletelep

149.99 M Ft
7 szoba
180 m2
Eladó ikerház
Eladó ikerház

X. kerület

128 M Ft
4 szoba
129 m2
Eladó ikerház
Eladó ikerház

X. kerület

90 M Ft
5 szoba
190 m2
Eladó téglalakás
Eladó téglalakás

XXI. kerület

64.9 M Ft
1 + 3 szoba
83 m2
Eladó családi ház
Eladó családi ház

XIX. kerület

37.5 M Ft
2 szoba
56 m2
Eladó téglalakás
Eladó téglalakás

XIII. kerület, Angyalföld

99 M Ft
2 szoba
51 m2
Eladó családi ház
Eladó családi ház

XIX. kerület

110 M Ft
4 szoba
128 m2
Eladó ikerház
Eladó ikerház

X. kerület

90 M Ft
5 szoba
190 m2

Falusi CSOK ingatlanok

Eladó családi ház
Eladó családi ház

Miháld

18 M Ft
3 szoba
102 m2
Eladó családi ház
Eladó családi ház

Vácegres

279.9 M Ft
6 szoba
194 m2
Eladó családi ház
Eladó családi ház

Jászkarajenő

19.9 M Ft
3 szoba
81 m2
Eladó családi ház
Eladó családi ház

Nádasd

84.9 M Ft
4 szoba
143 m2
Eladó családi ház
Eladó családi ház

Somogysárd

19.9 M Ft
2 + 1 szoba
90 m2
Eladó családi ház
Eladó családi ház

Ónod, Barátság 9

31.999 M Ft
3 szoba
150 m2
Eladó családi ház
Eladó családi ház

Bár

24.5 M Ft
4 szoba
125 m2
Eladó családi ház
Eladó családi ház

Sükösd

18.5 M Ft
3 szoba
89 m2