Astora Art House

Eladó hotel
Göd

+ 17 kép 1/20
999 000 000 Ft999 M Ft 443 606 Ft/m2
2252 m2
építés éve:1979

Részletes adatok

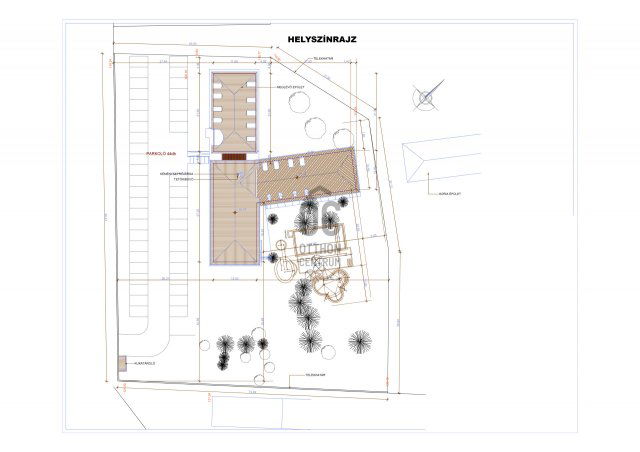
Telekméret: 6443 m2
Fűtés: Gázkazán
Közmű: Gáz, Villany, Csatorna
Energetikai besorolás: Nem adta meg a hirdető

Az OTP Bank lakáshitel ajánlataFizetett hirdetés

+36 70 465
Kovács Krisztián
referens

Érdekel az OTP Bank kedvezményes lakáshitel ajánlata? *

* A kérdésre „Igen” válasz bejelölése esetén, az „Üzenet küldése” gombra kattintva kijelentem, hogy az OTP Bank Nyrt. Adatkezelési tájékoztatójának tartalmát megismertem és tudomásul vettem.

Eladó hotel leírása

Kivételes adottságú, modern, energiahatékony wellness szálloda eladó, amely nemcsak turisztikai célra, hanem egészségügyi vagy rekreációs központként is kiválóan hasznosítható.

Főbb adatok
• Épület nettó területe: 2 155 m
• Telek területe: 6 443 m²
• 21 hotelszoba
• Parkoló
• Edzőterem, bankett-terem, étterem, bowling, wellness részleg, 4 medence

Helyiségkiosztás és funkciók

Szálloda rész:
•21 kényelmes, többségében akadálymentes szoba 3 szinten
•Recepció, étterem, kávézó és hangulatos terasz a parkra néző kilátással

Wellness részleg:
•Fűtött úszómedence ellenáramoltatóval, élményelemekkel és fénytechnikával
•Súlyfürdő medence, kültéri medencék, gyermekmedence élményelemekkel
•Finn szaunák, gőzkabin, infraszauna, zuhanyzók
•Masszázs részleg és orvosi szoba
•Három kültéri medence: úszómedence, élménymedence, gyermekmedence

Fitness és szabadidős rész:
•Teljesen gépesített edzőterem
•Aerobic és spinning terem
•Kétsávos bowlingpálya külön bárral és hangtechnikával
•Dupla squash pálya, hivatalos versenyek megrendezésére is alkalmas
•Rendezvényterem saját hangtechnikával
•Gyermek játszórész Helen Doron angol nyelvoktatással
•4 pályás Bowling pálya saját bárral

Energetikai és műszaki jellemzők
•Fűtés: 21 db geotermikus talajszonda + 2 db tartalék gázkazán
•Mennyezeti hűtés-fűtés, padlófűtés a fitness részlegben
•Radiátoros hőleadás a szállodarészben
•Klímatizált helyiségek
•Napelemrendszer (50 kWh)
•Napkollektor rendszer a medencék fűtéséhez
•Saját transzformátorállomás

Kültér és parkolás
•60 férőhelyes, saját felszíni parkoló
•Gondozott, parkosított környezet.

Lehetséges hasznosítás
•Magánkórház járó- és fekvőbeteg-ellátással
•Rehabilitációs vagy egészségügyi központ
•Céges üdülő, rekreációs központ
•Rendezvény- vagy konferenciaközpont
•Irodaház
•Oktatási központ/iskola
•Sportközpont
•Strandfürdő
•Étterem
•Idősek otthona

-További információkért keressen a hét bármely napján!
(We speak English)

Hirdetés feltöltve: 2025. 10. 30. Utoljára módosítva: 2025. 12. 29.

Az ingatlan elhelyezkedése

Cím: Göd

Eladó ingatlanok a környékről

Eladó hotel
Eladó hotel

Cegléd

95 M Ft
5 szoba
147 m2
Eladó telek
Eladó telek

Cegléd

12 M Ft
710 m²
710 m2
Eladó hotel
Eladó hotel

Pilisszentlászló

220 M Ft
12 szoba
519 m2
Eladó családi ház
Eladó családi ház

Szigethalom

25 M Ft
1 szoba
39 m2
Eladó családi ház
Eladó családi ház

Szigethalom

92.9 M Ft
1 + 3 szoba
77 m2
Eladó családi ház
Eladó családi ház

Alsónémedi

53 M Ft
1 + 1 szoba
44 m2
Eladó hotel
Eladó hotel

Törökbálint

680 M Ft
649 m²
1120 m2
Eladó családi ház
Eladó családi ház

Albertirsa

29.9 M Ft
3 szoba
75 m2
Eladó hotel
Eladó hotel

Domony

420 M Ft
35 szoba
1653 m2
Eladó hotel
Eladó hotel

Pilisszentkereszt

850 M Ft
3255 m²
928 m2
Eladó családi ház
Eladó családi ház

Budakeszi, Széchenyi utca

59.9 M Ft
2 + 1 szoba
63 m2
Eladó családi ház
Eladó családi ház

Zsámbék

152.9 M Ft
5 szoba
170 m2
Eladó hotel
Eladó hotel

Budaörs

847 M Ft
1 szoba
1000 m2
Eladó családi ház
Eladó családi ház

Nyáregyháza

35.9 M Ft
2 + 2 szoba
86 m2
Eladó családi ház
Eladó családi ház

Kerepes

86.9 M Ft
5 szoba
162 m2
Eladó hotel
Eladó hotel

Nyársapát

200 M Ft
11 + 1 szoba
424 m2
Eladó hotel
Eladó hotel

Dunaharaszti

199.9 M Ft
20 szoba
489 m2
Eladó családi ház
Eladó családi ház

Albertirsa

48.9 M Ft
3 szoba
43 m2
Eladó telek
Eladó telek

Ráckeve

5.6 M Ft
367 m²
367 m2
Eladó hotel
Eladó hotel

Ecser

250 M Ft
600 m2
Eladó hotel
Eladó hotel

Göd

1050 M Ft
21 szoba
2155 m2
Eladó hotel
Eladó hotel

Göd

1050 M Ft
21 szoba
2155 m2
Eladó családi ház
Eladó családi ház

Szada

53.9 M Ft
3 szoba
95 m2
Eladó ikerház
Eladó ikerház

Nagytarcsa

159.9 M Ft
3 + 1 szoba
90 m2

Falusi CSOK ingatlanok

Eladó családi ház
Eladó családi ház

Nagybörzsöny

79.9 M Ft
4 szoba
149 m2
Eladó családi ház
Eladó családi ház

Üllés

35.5 M Ft
3 szoba
99 m2
Eladó családi ház
Eladó családi ház

Devecser

62.49 M Ft
5 szoba
180 m2
Eladó családi ház
Eladó családi ház

Fajsz

25 M Ft
3 szoba
95 m2
Eladó családi ház
Eladó családi ház

Tápiógyörgye

44.9 M Ft
3 + 1 szoba
120 m2
Eladó családi ház
Eladó családi ház

Balatonberény, Kodály Zotán utca 34

61.9 M Ft
4 + 1 szoba
95 m2
Eladó családi ház
Eladó családi ház

Sümegcsehi

119 M Ft
5 szoba
237 m2
Eladó családi ház
Eladó családi ház

Hosszúpereszteg

27.9 M Ft
4 szoba
121 m2