Aerogate Homes

Eladó családi ház
Zalaszentgrót

+ 11 kép 1/14
61 900 000 Ft61.9 M Ft 412 667 Ft/m2
150 m²
építés éve:1950

Részletes adatok

Állapot: Felújított
Telekméret: 363 m2
Fűtés: Egyéb
Energetikai besorolás: Nem adta meg a hirdető

Az OTP Bank lakáshitel ajánlataFizetett hirdetés

+36 30 254
MelczerIngatlan
MelczerIngatlan

Érdekel az OTP Bank kedvezményes lakáshitel ajánlata? *

* A kérdésre „Igen” válasz bejelölése esetén, az „Üzenet küldése” gombra kattintva kijelentem, hogy az OTP Bank Nyrt. Adatkezelési tájékoztatójának tartalmát megismertem és tudomásul vettem.

Eladó családi ház leírása

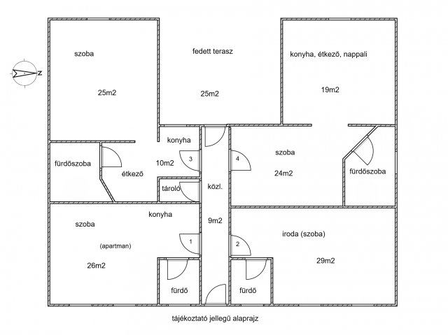
Zala vármegye, Zalaszentgrót, belvárosi felújított és korszerűsített 150m2-es lakóingatlan eladó. Az ingatlanban négy, közös folyosóról nyíló, külön bejáratú lakóegység került kialakításra. Az alaprajzon 1.számmal jelölt, utcafronti apartmanban egy légtérben szoba konyhával, és fürdőszoba, a 2. sz. egységben jelenleg iroda, fürdővel, a 3.sz lakrészben (apartmanban) konyha étkezővel, tároló és szoba, míg a 4.számmal jelölt lakrészben szoba, konyha étkezővel, nappalival és fürdőszoba került kialakításra. Az épületet nagyméretű fedett terasz, míg a 363m2-es gondozott telken szerszámtároló és gépjárműbeálló teszi teljessé. A közelmúltban felújított (vezetékek, burkolatok, tető, nyílászárók…) lakóingatlan melegéről központi fűtés gondoskodik, radiátoros hőleadókkal, egységenként külön termosztáttal. Az ingatlan alkalmas lehet állandó lakhatásra, vagy befektetésnek (szálláshely szolgáltatás, iroda stb.) egyaránt.

Hirdetés feltöltve: 2026. 03. 12. Utoljára módosítva: 2026. 03. 12.

0 szobás családi házak ára Zalaszentgróton

Ebből az összehasonlításból megtudhatod, hogyan viszonyul a lakás ára a környékbeli családi házak átlagos árához. Ez nem azt jelenti, hogy ennyivel olcsóbb vagy drágább, mint amennyit a lakás ér, hanem hogy ennyivel tér el a környékbeli átlagtól.

Ennek a m² ára
Zalaszentgrót m² ár
413 e Ft
361 e Ft -14%
Ennek az ára
Zalaszentgrót átlagár
61.9 M Ft m Ft
40.9 m Ft -51%

Az ingatlan elhelyezkedése

Cím: Zalaszentgrót

Eladó családi házak a környékről

Letenye
Eladó családi ház

Letenye

28.5 M Ft
2 szoba
70 m²
Zalaszentgrót
Eladó családi ház

Zalaszentgrót

43.9 M Ft
4 szoba
190 m²
Zalaszentgrót
Eladó családi ház

Zalaszentgrót

45 M Ft
3 szoba
96 m²
Hévíz
Eladó családi ház

Hévíz

182.4 M Ft
5 szoba
193 m²
Keszthely
Eladó családi ház

Keszthely

146 M Ft
6 szoba
224 m²
Zalaszentgrót
Eladó családi ház

Zalaszentgrót

29.9 M Ft
2 szoba
60 m²
Zalaszentgrót
Eladó családi ház

Zalaszentgrót

12.9 M Ft
2 szoba
80 m²
Zalaszentgrót
Eladó családi ház

Zalaszentgrót

13.9 M Ft
4 szoba
96 m²
Hévíz
Eladó családi ház

Hévíz

80 M Ft
5 + 3 szoba
275 m²
Zalaszentgrót
Eladó családi ház

Zalaszentgrót

39.9 M Ft
4 szoba
120 m²
Balatongyörök
Eladó családi ház

Balatongyörök

89.8 M Ft
5 szoba
140 m²
Nagykanizsa
Eladó családi ház

Nagykanizsa

299 M Ft
7 szoba
1800 m²
Zalaszentgrót
Eladó családi ház

Zalaszentgrót

139.9 M Ft
5 szoba
218 m²
Gyenesdiás
Eladó családi ház

Gyenesdiás

95 M Ft
4 szoba
140 m²
Zalacsány
Eladó családi ház

Zalacsány

120 M Ft
5 + 1 szoba
220 m²
Vindornyafok
Eladó családi ház

Vindornyafok

38.9 M Ft
3 szoba
120 m²
Zalaszentgrót
Eladó családi ház

Zalaszentgrót

43.9 M Ft
4 szoba
190 m²
Zalaszentgrót
Eladó családi ház

Zalaszentgrót

36.9 M Ft
2 + 1 szoba
95 m²
Hévíz
Eladó családi ház

Hévíz

120 M Ft
7 + 1 szoba
280 m²
Alsópáhok
Eladó családi ház

Alsópáhok

64.9 M Ft
3 szoba
110 m²
Zalaszentgrót
Eladó családi ház

Zalaszentgrót

64.9 M Ft
4 szoba
110 m²
Nagykanizsa, Csengery
Eladó családi ház

Nagykanizsa

65.9 M Ft
4 szoba
231 m²
Zalaegerszeg
Eladó családi ház

Zalaegerszeg

200 M Ft
7 szoba
355 m²
Zalaszentgrót
Eladó családi ház

Zalaszentgrót

9.9 M Ft
3 szoba
80 m²

Falusi CSOK ingatlanok

Ceglédbercel
Eladó családi ház

Ceglédbercel

55 M Ft
4 szoba
81 m²
Nagyszentjános
Eladó téglalakás

Nagyszentjános

74.9 M Ft
4 szoba
117 m²
Pannonhalma
Eladó családi ház

Pannonhalma

129.7 M Ft
5 szoba
142 m²
Kisnémedi
Eladó családi ház

Kisnémedi

59.9 M Ft
5 szoba
250 m²
Pécsvárad
Eladó családi ház

Pécsvárad

140 M Ft
4 + 1 szoba
119 m²
Cece
Eladó családi ház

Cece

69.8 M Ft
4 szoba
215 m²
Újszilvás
Eladó családi ház

Újszilvás

25.9 M Ft
3 szoba
73 m²
Tabdi
Eladó családi ház

Tabdi

95 M Ft
45 szoba
1490 m²