Seven Pearl

Eladó családi ház
Zalaegerszeg

+ 17 kép 1/20
58 000 000 Ft58 M Ft 753 247 Ft/m2
3 szoba
77 m²
építés éve:1920

Részletes adatok

Állapot: Átlagos
Telekméret: 457 m2
Fűtés: Gázkonvektor
Energetikai besorolás: Nem adta meg a hirdető

Az OTP Bank lakáshitel ajánlataFizetett hirdetés

+36 70 435
Vucskó Krisztina
Otthon Centrum - Nagykanizsa - Fő út

Érdekel az OTP Bank kedvezményes lakáshitel ajánlata? *

* A kérdésre „Igen” válasz bejelölése esetén, az „Üzenet küldése” gombra kattintva kijelentem, hogy az OTP Bank Nyrt. Adatkezelési tájékoztatójának tartalmát megismertem és tudomásul vettem.

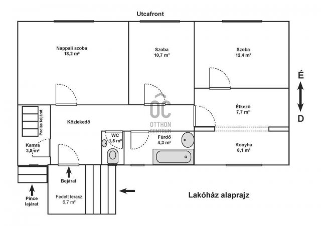
Eladó családi ház leírása

Zalaegerszeg belvárosában a Vizslapark szomszédságában 3 szobás, 85 m2-es polgári stílusú kertes ház vált eladóvá, melynek jellemzői a következők.

- A tégla építésű, bruttó 85 m2-es (nettó 77 m2) ingatlan 457 m2-es telken helyezkedik
el.
- A ház az 1920-as években épült, azonban jelenlegi tulajdonosa a 80-as évek közepén az
akkori kor igényeinek megfelelően teljes mértékben felújította.
- A tető héjazata Bramac cserép borítást kapott.
- A ház külső falazata is megújult.
- A föld alapú pince födémrészét megerősítették, lejáratát felújították.
- A villamosvezetékek – aluminiumra -, vízvezetékek cseréje megtörtént.
- A gázt az ingatlanba bevezették.
- A hidegburkolatokat korszerűsítették, a szobákat parkettával látták el, melyek jelenleg
is tökéletes állapotban vannak.
- Jelenlegi fűtése gázkonvektorral biztosított. Ezek burkolata egyedi és különleges, a ház
belső varázsával tökéletesen harmonizál.
- A nyílászárók fa szerkezetűek, a bejárati ajtót kívülről egy fa szerkezetű ajtó védi,
szigeteli.
- Melegvíz ellátása villanybojlerrel történik.
- Az udvarban szintén tégla építésű garázs, tárolók, állatok tartására (tyúkok, szárnyasok)
alkalmas házikó található.
- A tárolók számtalan lehetőséget (házi kondi helyiség, hobby helyiség, családi wellness
rész szaunával, jakuzzival stb.) rejtenek magukban. Ezek megvalósítása az új
tulajdonos fantáziájára van bízva.
- A föld alapú pince hőmérséklete lehetővé teszi növények, akár gyümölcsök, zöldségek
téli raktározását. Avagy a mókuskerékbe zárt, kifacsaró hétköznapok ellensúlyozásaként
borospince kialakítását, ahol a család és a barátok romantikus hangulatú körülmények
között felhőtlenül beszélgethetnek és kortyolgathatják a zamatos nedűket.
- Az örökzöldekkel, virágokkal, gyümölcsfával tarkított udvar is bővelkedik lehetőségekben,
mely az új gazda ötleteinek megvalósítására vár.

…és kinek is ajánlanám ezt az ingatlant?
Valójában annak szól ez a kis ékszerdoboz, aki hűséggel fordul a múlt építészete felé, és meglátja benne a saját jövőjének lehetőségét. Aki hisz abban, hogy a régi dolgok nem elavultak, csupán új életre várnak – modern formában, de változatlan lélekkel.

Irodánk teljes körű szolgáltatást nyújt kereső ügyfeleknek, amennyiben Önnek hitelre van szüksége, segítünk!
Szakszerű tanácsadással, teljes körű ingyenes hitel és CSOK ügyintézéssel, energetikai tanúsítvány elkészítésével és kedvező díjszabású ügyvéddel nyújtunk segítséget!

Ha Ön is szeretne többet megtudni erről az ingatlanról, vagy kérdései lennének, ne habozzon felkeresni minket bizalommal.

Az Ön elégedettsége a legfontosabb számunkra, és örömmel segítünk Önnek a legjobb döntés meghozatalában.

Az energetikai tanúsítvány készítése folyamatban van, amint rendelkezésre áll, úgy azzal a hirdetés frissítésre kerül.

Hirdetés feltöltve: 2026. 03. 19. Utoljára módosítva: 2026. 05. 18.

3 szobás családi házak ára Zalaegerszegen

Ebből az összehasonlításból megtudhatod, hogyan viszonyul a lakás ára a környékbeli családi házak átlagos árához. Ez nem azt jelenti, hogy ennyivel olcsóbb vagy drágább, mint amennyit a lakás ér, hanem hogy ennyivel tér el a környékbeli átlagtól.

Ennek a m² ára
Zalaegerszeg m² ár
753 e Ft
640 e Ft -18%
Ennek az ára
Zalaegerszeg átlagár
58 M Ft m Ft
65.4 m Ft 11%

Az ingatlan elhelyezkedése

Cím: Zalaegerszeg

Eladó családi házak a környékről

Zalaegerszeg
Eladó családi ház

Zalaegerszeg

114 M Ft
4 szoba
163 m²
Zalaszántó
Eladó családi ház

Zalaszántó

14.9 M Ft
2 szoba
66 m²
Zalaegerszeg
Eladó családi ház

Zalaegerszeg

38.9 M Ft
4 szoba
95 m²
Cserszegtomaj
Eladó családi ház

Cserszegtomaj

175 M Ft
3 szoba
140 m²
Zalaegerszeg
Eladó családi ház

Zalaegerszeg

72.5 M Ft
4 szoba
140 m²
Zalaegerszeg
Eladó családi ház

Zalaegerszeg

169.9 M Ft
5 szoba
190 m²
Zalaegerszeg
Eladó családi ház

Zalaegerszeg

69.9 M Ft
6 szoba
180 m²
Gyenesdiás
Eladó családi ház

Gyenesdiás

95 M Ft
4 szoba
140 m²
Zalaegerszeg
Eladó családi ház

Zalaegerszeg

59 M Ft
2 szoba
78 m²
Nagykanizsa, Csengery
Eladó családi ház

Nagykanizsa

65.9 M Ft
4 szoba
231 m²
Keszthely
Eladó családi ház

Keszthely

146 M Ft
6 szoba
224 m²
Zalaegerszeg
Eladó családi ház

Zalaegerszeg

49.9 M Ft
3 szoba
65 m²
Zalaegerszeg
Eladó családi ház

Zalaegerszeg

114 M Ft
4 szoba
163 m²
Zalaegerszeg
Eladó családi ház

Zalaegerszeg

200 M Ft
7 szoba
355 m²
Zalaszentgrót
Eladó családi ház

Zalaszentgrót

49.9 M Ft
2 szoba
70 m²
Nagykanizsa
Eladó családi ház

Nagykanizsa

299 M Ft
7 szoba
1800 m²
Zalaegerszeg
Eladó családi ház

Zalaegerszeg

114 M Ft
4 szoba
163 m²
Hévíz
Eladó családi ház

Hévíz

225 M Ft
11 + 1 szoba
317 m²
Hévíz
Eladó családi ház

Hévíz

120 M Ft
7 + 1 szoba
280 m²
Hévíz
Eladó családi ház

Hévíz

182.4 M Ft
5 szoba
193 m²
Zalaegerszeg
Eladó családi ház

Zalaegerszeg

295 M Ft
7 szoba
788 m²
Vonyarcvashegy
Eladó családi ház

Vonyarcvashegy

169 M Ft
4 szoba
178 m²
Zalaegerszeg
Eladó családi ház

Zalaegerszeg

295 M Ft
24 szoba
788 m²
Zalaegerszeg
Eladó családi ház

Zalaegerszeg

200 M Ft
7 szoba
355 m²

Falusi CSOK ingatlanok

Felsőlajos
Eladó családi ház

Felsőlajos

100 M Ft
4 szoba
140 m²
Szabadbattyán
Eladó családi ház

Szabadbattyán

139.9 M Ft
4 szoba
201 m²
Kislippó
Eladó családi ház

Kislippó

17.99 M Ft
3 szoba
100 m²
Hosszúpereszteg
Eladó családi ház

Hosszúpereszteg

27.9 M Ft
4 szoba
0 m²
Hegyeshalom, Margaréta utca 12
Eladó téglalakás

Hegyeshalom

35.92 M Ft
1 szoba
31 m²
Lajoskomárom
Eladó családi ház

Lajoskomárom

22.9 M Ft
2 szoba
66 m²
Ártánd
Eladó családi ház

Ártánd

63.9 M Ft
4 szoba
0 m²
Tápiószőlős
Eladó családi ház

Tápiószőlős

9.9 M Ft
3 szoba
0 m²