Avico Greentop

Eladó családi ház
Zalaegerszeg

+ 8 kép 1/11
99 500 000 Ft99.5 M Ft 985 149 Ft/m2
2 + 2 szoba
101 m²
építés éve:2026

Részletes adatok

Telekméret: 545 m2
Fűtés: Egyéb
Energetikai besorolás: Nem adta meg a hirdető

Az OTP Bank lakáshitel ajánlataFizetett hirdetés

+36 70 668
Vulpe Péterné Tóth Adrienn
referens

Érdekel az OTP Bank kedvezményes lakáshitel ajánlata? *

* A kérdésre „Igen” válasz bejelölése esetén, az „Üzenet küldése” gombra kattintva kijelentem, hogy az OTP Bank Nyrt. Adatkezelési tájékoztatójának tartalmát megismertem és tudomásul vettem.

Eladó családi ház leírása

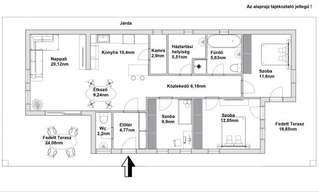
Eladásra kínálok Zalaegerszegen a Gébárti-tó közelében, 545 m²-es közel sík telken, hangulatos terasszal megálmodott 101 m²-es családi házat, melyet a vevő igényeihez igazodva, megegyezés alapján épít/szerel fel a kivitelező.
A tervek alapján nappali + 3 hálószoba, étkezős konyha, fürdőszoba, 2 toalett, kamra és háztartási helyiségből áll az egyszintes családi ház.
Az épület belső hasznos alapterülete 101,18 m², a külső fedett teraszok összesen 40,93 m²-t tesznek ki, így az épület összes nettó területe 142,11 m².

A kivitelező rugalmas, a vevő igényei és elképzelése alapján változtatható a fűtési rendszertől, szürkevíz hasznosítástól a napelemekig, és még számos opcionális lehetőséggel, amit lejjebb olvashat.

A telek két utcafrontról is megközelíthető, a tervezett elrendezés célja a funkcionalitás, a természetes fény optimális kihasználása és a korszerű, energiatakarékos lakókörnyezet megteremtése.

Az épület külső megjelenését és használhatóságát tovább növeli a két, különböző irányba tájolt fedett terasz, amelyek kellemes kültéri pihenő- és étkező funkciót biztosítanak, valamint szoros kapcsolatot teremtenek a kerttel.

A falazat YTONG téglából készül, a főfalak 30 cm vastagságúak, melyekre 10 cm-es EPS hőszigetelés kerül kívülről.
A falak 10 cm, a vizes helyiségekben 12,5 cm vastagságú szerelt válaszfalakból készülnek.
A tervezett födém szintén szerelt, némely helyiségben tűzálló gipszkarton álmennyezet, felette minimum 30cm vastagságú hőszigeteléssel.
Ezzel a szerkezeti megoldással AA+ energetikai besorolással bír majd az épület.

A tető beton anyagú tetőcserép, antracit szürke színben, 10 cm-es szigeteléssel készül, nyeregtető szerkezettel.

Műszaki tartalom:
Az épületben víztárolós kondenzációs gázkazán biztosítja a melegvíz ellátást, valamint a padlófűtést is. Alternatív fűtésre és hűtésre is alkalmas klíma, és a fürdőszobába egy törölközőszárítós radiátor kerül felszerelésre.
A nyílászárók műanyag szerkezetűek, hőszigetelő, 3 rétegű, víztiszta üvegezéssel ellátott, fokozott hő- és hangszigetelő tulajdonsággal rendelkeznek.

A vételár tartalmazza:
- bejárati ajtó 150.000 Ft értékhatárig
- redőnyök és rovarhálók
- 8 db beltéri ajtó
- fehér falfestés
- hidegburkolatok br 6.000-8000 Ft/m²-ig
- melegburkolat br 5.000-7000 Ft/m²-ig

Opcionálisan megrendelhető:
- falazott kerítés
- parkosított udvar
- öntözőrendszer csőrendszer kiépítése
- 2 kerti csap
- 2 kocsibejáró
- járda, térkövezett kocsibeálló, kültéri fedett beálló
- napelem
- motoros redőny
- színes falfestés
- br 9.000-10.000 ft/m² burkolat
- duál fűtésrendszer: a hőszivattyúról is működtethető padlófűtés és helyiségenként külön szabályozható hőmérséklet
- szürkevíz hasznosítás a toalettben, mellyel jelentősen csökkenhet a vízfogyasztás.

70 % opcionális megrendelésnél - a konyhabútor árából 2 Millió forint értékhatárig átvállal a kivitelező.

Ajánlom:
Ez a ház ideális választás mindazoknak, akik közel szeretnének maradni a városhoz, mégis természetközeli környezetben képzelik el jövőjüket egy modern, új otthonban, ami tényleg úgy készül, ahogy megálmodták.

Hirdetés feltöltve: 2026. 02. 27. Utoljára módosítva: 2026. 04. 17.

4 szobás családi házak ára Zalaegerszegen

Ebből az összehasonlításból megtudhatod, hogyan viszonyul a lakás ára a környékbeli családi házak átlagos árához. Ez nem azt jelenti, hogy ennyivel olcsóbb vagy drágább, mint amennyit a lakás ér, hanem hogy ennyivel tér el a környékbeli átlagtól.

Ennek a m² ára
Zalaegerszeg m² ár
985 e Ft
743 e Ft -33%
Ennek az ára
Zalaegerszeg átlagár
99.5 M Ft m Ft
100.7 m Ft 1%

Az ingatlan elhelyezkedése

Cím: Zalaegerszeg

Eladó családi házak a környékről

Zalaegerszeg
Eladó családi ház

Zalaegerszeg

295 M Ft
7 szoba
788 m²
Alsópáhok
Eladó családi ház

Alsópáhok

64.9 M Ft
3 szoba
110 m²
Vindornyafok
Eladó családi ház

Vindornyafok

38.9 M Ft
3 szoba
120 m²
Hévíz
Eladó családi ház

Hévíz

362.34 M Ft
5 szoba
274 m²
Letenye
Eladó családi ház

Letenye

28.5 M Ft
2 szoba
70 m²
Kehidakustány
Eladó családi ház

Kehidakustány

124.443 M Ft
5 + 2 szoba
192 m²
Zalaegerszeg
Eladó családi ház

Zalaegerszeg

59 M Ft
2 szoba
78 m²
Zalaegerszeg
Eladó családi ház

Zalaegerszeg

200 M Ft
7 szoba
355 m²
Zalaegerszeg
Eladó családi ház

Zalaegerszeg

72.5 M Ft
4 szoba
140 m²
Zalaegerszeg
Eladó családi ház

Zalaegerszeg

12 M Ft
2 szoba
18 m²
Zalaegerszeg, Patkó utca
Eladó családi ház

Zalaegerszeg

135 M Ft
5 szoba
310 m²
Zalaegerszeg
Eladó családi ház

Zalaegerszeg

59 M Ft
2 szoba
78 m²
Zalaegerszeg
Eladó családi ház

Zalaegerszeg

169.9 M Ft
5 szoba
190 m²
Zalaegerszeg
Eladó családi ház

Zalaegerszeg

55 M Ft
5 szoba
126 m²
Zalaegerszeg
Eladó családi ház

Zalaegerszeg

36.9 M Ft
2 szoba
60 m²
Zalaegerszeg
Eladó családi ház

Zalaegerszeg

27 M Ft
2 szoba
60 m²
Nagykanizsa
Eladó családi ház

Nagykanizsa

299 M Ft
7 szoba
1800 m²
Gyenesdiás
Eladó családi ház

Gyenesdiás

95 M Ft
4 szoba
140 m²
Hévíz
Eladó családi ház

Hévíz

225 M Ft
11 + 1 szoba
317 m²
Zalaegerszeg
Eladó családi ház

Zalaegerszeg

200 M Ft
7 szoba
355 m²
Zalaegerszeg
Eladó családi ház

Zalaegerszeg

200 M Ft
7 szoba
355 m²
Zalaegerszeg
Eladó családi ház

Zalaegerszeg

114 M Ft
4 szoba
163 m²
Cserszegtomaj
Eladó családi ház

Cserszegtomaj

420 M Ft
4 + 1 szoba
338 m²
Zalaegerszeg
Eladó családi ház

Zalaegerszeg

135 M Ft
5 szoba
310 m²

Falusi CSOK ingatlanok

Monostorpályi
Eladó családi ház

Monostorpályi

799.99 M Ft
11 szoba
843 m²
Kiszombor, Óbébai utca
Eladó családi ház

Kiszombor

32.9 M Ft
4 szoba
140 m²
Nagyszénás
Eladó családi ház

Nagyszénás

14 M Ft
3 szoba
81 m²
Győrság
Eladó családi ház

Győrság

79.9 M Ft
4 szoba
92 m²
Kislippó
Eladó családi ház

Kislippó

17.99 M Ft
3 szoba
100 m²
Békésszentandrás
Eladó családi ház

Békésszentandrás

550 M Ft
3 szoba
418 m²
Kunadacs
Eladó családi ház

Kunadacs

74 M Ft
5 szoba
220 m²
Izsófalva
Eladó családi ház

Izsófalva

22.9 M Ft
3 szoba
105 m²