BAM Living

Eladó családi ház
Zalaegerszeg

+ 8 kép 1/11
81 780 000 Ft81.78 M Ft 580 000 Ft/m2
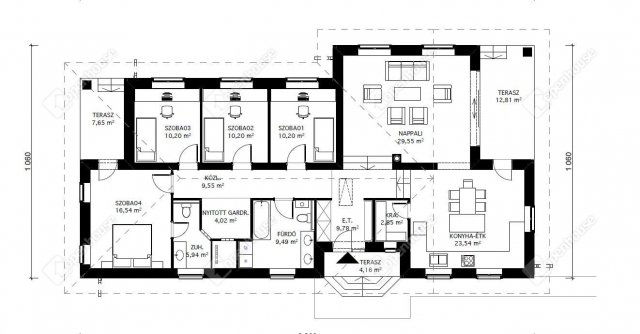
5 szoba
141 m2
építés éve:2024

Részletes adatok

Telekméret: 1 m2
Fűtés: Egyéb
Parkolás: Garázs
Közmű: Szélessáv
Energetikai besorolás: Nem adta meg a hirdető

Az OTP Bank lakáshitel ajánlataFizetett hirdetés

+36 70 467
Laska Róbert
Openhouse Zalaegerszeg

Érdekel az OTP Bank kedvezményes lakáshitel ajánlata? *

* A kérdésre „Igen” válasz bejelölése esetén, az „Üzenet küldése” gombra kattintva kijelentem, hogy az OTP Bank Nyrt. Adatkezelési tájékoztatójának tartalmát megismertem és tudomásul vettem.

Eladó családi ház leírása

Az Openhouse Zalaegerszeg Ingatlaniroda kínálatában eladó a zalaegerszegi családi ház. Zala és Vas vármegyékben bárhol, akár egyedi tervekkel is!

Szeretnél egy olyan otthont, amely tökéletesen megfelel az elképzeléseidnek?

A Göcsej-Készházak most elhozza neked ezt a lehetőséget!

Választhatsz kész típusterveink közül, vagy megvalósíthatod egyedi álmaidat - csak a képzeleted szab határt!

Teljes körű generálkivitelezés elejétől a végéig:

Telek kiválasztása és biztosítása: Segítünk megtalálni a tökéletes helyet új otthonod számára.
Finanszírozási lehetőségek: Falusi CSOK, CSOK+, Babaváró hitel, Jelzálog alapú hitel stb.
Kivitelezési munkák: A tervezéstől kezdve a kulcsrakész átadásig mindenről gondoskodunk!

Műszaki tartalom (röviden):

Alapozási munkák: humuszos réteg leszedése, alapozás, zsalukő lábazat, víz szigetelés
Falszerkezetek, födém és tető építési munkálatok: OSB lemezek, KVH bordák, cellulóz és kőzetgyapot szigetelés, gipszkarton burkolat
Tetőszerkezet: épületfából készült szarufák, Terrán betoncserép, cellulóz szigetelés
Bádogos szerkezetek: horganyzott lemez ereszcsatorna, oromszegély
Belső rétegrend és burkolatok: EPS szigetelés, estrichbeton, kerámia padlóburkolat, laminált padló
Fűtésrendszer: padlófűtés
Villamos és víz alapszerelés: csatlakozók, kapcsolók, szaniterek
Külső hőszigetelés és színezés: EPS szigetelőanyag, dryvit vakolat

Ár: Nettó 580.000 Ft/négyzetméter

További részletekért látogass el irodánkba egy személyes találkozóra!

Részletekért keress!

Ne hagyd ki ezt a kivételes lehetőséget!

Álmodd meg új otthonod Göcsej-Készházakkal! Ha felkeltette érdeklődését ez az eladó zalaegerszegi családi ház, vagy bármely más családi ház és bővebb információt szeretne, keressen bizalommal.Hivatkozási szám: Az Openhouse Zalaegerszeg Ingatlaniroda tagjaként várom Önt az országos hálózatunk teljes kínálatával.A családi ház vásárláshoz hitelt igényelne? Ingyenes hitelközvetítéssel segít Önnek bankfüggetlen hitelszakértőnk.
Érd.: Laska Róbert 06305295800

Referencia szám: 169474-ZE

Hirdetés feltöltve: 2025. 11. 19. Utoljára módosítva: 2025. 11. 20.

5 szobás családi házak ára Zalaegerszegen

Ebből az összehasonlításból megtudhatod, hogyan viszonyul a lakás ára a környékbeli családi házak átlagos árához. Ez nem azt jelenti, hogy ennyivel olcsóbb vagy drágább, mint amennyit a lakás ér, hanem hogy ennyivel tér el a környékbeli átlagtól.

Ennek a m² ára
Zalaegerszeg m² ár
580 e Ft
517 e Ft -12%
Ennek az ára
Zalaegerszeg átlagár
81.78 M Ft m Ft
113.3 m Ft 28%

Az ingatlan elhelyezkedése

Cím: Zalaegerszeg

Eladó családi házak a környékről

Eladó családi ház
Eladó családi ház

Zalaegerszeg

27 M Ft
2 szoba
60 m2
Eladó családi ház
Eladó családi ház

Letenye

24.9 M Ft
2 szoba
70 m2
Eladó családi ház
Eladó családi ház

Zalaegerszeg, Patkó utca

135 M Ft
5 szoba
310 m2
Eladó családi ház
Eladó családi ház

Cserszegtomaj

175 M Ft
3 szoba
140 m2
Eladó családi ház
Eladó családi ház

Zalaszentgrót

44.9 M Ft
2 szoba
70 m2
Eladó családi ház
Eladó családi ház

Nagykanizsa

299 M Ft
7 szoba
1800 m2
Eladó családi ház
Eladó családi ház

Zalaegerszeg

23 M Ft
2 szoba
62 m2
Eladó családi ház
Eladó családi ház

Zalaegerszeg

72.5 M Ft
4 szoba
140 m2
Eladó családi ház
Eladó családi ház

Hévíz

225 M Ft
11 + 1 szoba
317 m2
Eladó családi ház
Eladó családi ház

Zalaegerszeg

160 M Ft
3 szoba
196 m2
Eladó családi ház
Eladó családi ház

Zalaegerszeg

36.9 M Ft
2 szoba
60 m2
Eladó családi ház
Eladó családi ház

Zalaegerszeg, Csácsihegyi út

23 M Ft
2 szoba
62 m2
Eladó családi ház
Eladó családi ház

Hévíz

120 M Ft
7 + 1 szoba
280 m2
Eladó családi ház
Eladó családi ház

Hévíz

80 M Ft
5 + 3 szoba
275 m2
Eladó családi ház
Eladó családi ház

Zalaszántó

19.9 M Ft
2 szoba
66 m2
Eladó családi ház
Eladó családi ház

Cserszegtomaj

420 M Ft
4 + 1 szoba
338 m2
Eladó családi ház
Eladó családi ház

Keszthely

146 M Ft
6 szoba
224 m2
Eladó családi ház
Eladó családi ház

Zalaegerszeg

149.9 M Ft
5 szoba
299 m2
Eladó családi ház
Eladó családi ház

Szentliszló

29.9 M Ft
2 + 2 szoba
170 m2
Eladó családi ház
Eladó családi ház

Zalaegerszeg

59.9 M Ft
5 szoba
134 m2
Eladó családi ház
Eladó családi ház

Zalaegerszeg

200 M Ft
7 szoba
355 m2
Eladó családi ház
Eladó családi ház

Zalaegerszeg

200 M Ft
7 szoba
355 m2
Eladó családi ház
Eladó családi ház

Zalaegerszeg

295 M Ft
7 szoba
788 m2
Eladó családi ház
Eladó családi ház

Hévíz

120 M Ft
5 szoba
215 m2

Falusi CSOK ingatlanok

Eladó családi ház
Eladó családi ház

Gégény, Kossuth

15 M Ft
4 szoba
135 m2
Eladó családi ház
Eladó családi ház

Mencshely

99 M Ft
3 szoba
126 m2
Eladó családi ház
Eladó családi ház

Gyömöre

45.99 M Ft
2 szoba
118 m2
Eladó családi ház
Eladó családi ház

Mályi

84.9 M Ft
4 szoba
100 m2
Eladó családi ház
Eladó családi ház

Törtel

25.9 M Ft
5 szoba
95 m2
Eladó családi ház
Eladó családi ház

Devecser

18.9 M Ft
2 + 1 szoba
57 m2
Eladó családi ház
Eladó családi ház

Kesztölc

129.9 M Ft
8 szoba
210 m2
Eladó családi ház
Eladó családi ház

Újszilvás

22.5 M Ft
2 szoba
65 m2