BAM Living

Eladó családi ház
Visonta

+ 17 kép 1/20
244 900 000 Ft244.9 M Ft 204 937 Ft/m2
12 + 1 szoba
1195 m2
építés éve:1960

Részletes adatok

Telekméret: 69685 m2
Fűtés: Elektromos
Energetikai besorolás: Nem adta meg a hirdető

Az OTP Bank lakáshitel ajánlataFizetett hirdetés

+36 70 625
Balóné Szolner Zsuzsanna
referens

Érdekel az OTP Bank kedvezményes lakáshitel ajánlata? *

* A kérdésre „Igen” válasz bejelölése esetén, az „Üzenet küldése” gombra kattintva kijelentem, hogy az OTP Bank Nyrt. Adatkezelési tájékoztatójának tartalmát megismertem és tudomásul vettem.

Eladó családi ház leírása

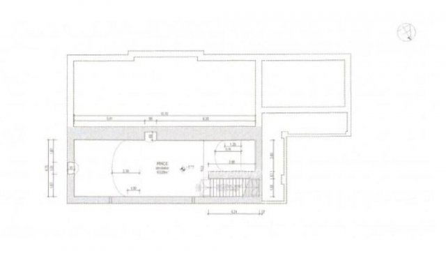
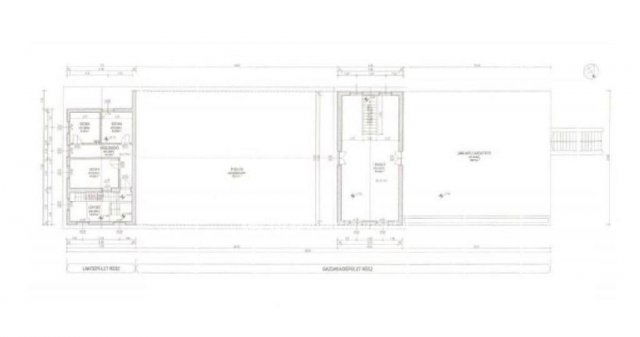
A Mátra lábánál egy Birtok ahol elszigetelten élvezheted a természetet a családoddal és a barátaiddal, de vállalkozásnak is kiváló. Aszfaltos magán bekötő út vezet a terület közepébe ahol két épületet találsz. Egy lakóépületet 215 nm, és egy gazdasági épületet 646 nm, az épültekhez pincék 107 nm, és teraszok 226 nm (borospince) tartoznak, egy körbekerített 7 hektáros területen helyezkednek el az épületek. Az ott élők teljes, háborítatlan nyugalmát biztosítja az erdő ami az épületeket körülöleli. Az M3-as autópályától 15 perc távolságra. Fantasztikus lehetőség ebben a rohanó világban.
A béke szigete.

A lehetőségek széles tárháza nyílhat meg az új tulajdonos előtt.
Kiválóan alkalmas táborok, rendezvények lebonyolítására vagy meditaciós elvonulásra.
A terület besorolása GKSZ2. 30%-os beépíthetőség.
A birtok legfontosabb jellemzői:
-12 lakószoba, fürdőszobák,
Irodák, raktárak,
-a kétszintes gazdasági épületben egy 90 nm-es lakóterület ami felett járható lapostető 265 nm ami tetőteraszként is működhet.
- beépíthető padlástér 265 nm
- víz, gáz és villany van derítő (csatorna nincs )
-fűtés cserépkálya, kandalló, villanyradiátor.
Az ingatlan per- és tehermentes.
Amennyiben Budapesttől jól megközelíthető, csendes vidéki birtokot keres ? ez az ingatlan egyedülálló választás.
Várom megtisztelő hívását a hét minden napán !
Kérésére további képeket küldök.

Az OTP Ingatlanpont teljes körű ügyintézéssel áll az eladók és a vevők rendelkezésére! A kínálatunkból választott ingatlan finanszírozásához kedvezményes hitelkonstrukciókat kínálunk. Az adásvételi szerződés megkötéséhez igény szerint megbízható ügyvédi közreműködést biztosítunk, és segítséget nyújtunk az adásvételhez kapcsolódó ügyek intézéséhez. Várom megtisztelő hívását.

irányár: 244900000 Ft
Érd.: Kocsis Tiborné 36706253200

Hirdetés feltöltve: 2025. 07. 26. Utoljára módosítva: 2025. 10. 31.

Az ingatlan elhelyezkedése

Cím: Visonta

Eladó ingatlanok a környékről

Eladó téglalakás
Eladó téglalakás

Eger, Maklári hóstya, Csákány utca

44 M Ft
2 szoba
48 m2
Eladó családi ház
Eladó családi ház

Domoszló

5.99 M Ft
7 szoba
107 m2
Eladó telek
Eladó telek

Gyöngyös

74 M Ft
2629 m²
Eladó családi ház
Eladó családi ház

Bükkszék

44.9 M Ft
3 + 2 szoba
114 m2
Eladó téglalakás
Eladó téglalakás

Eger

35 M Ft
2 szoba
68 m2
Eladó családi ház
Eladó családi ház

Szilvásvárad

92 M Ft
4 + 1 szoba
220 m2
Eladó családi ház
Eladó családi ház

Verpelét

61 M Ft
3 + 2 szoba
150 m2
Eladó családi ház
Eladó családi ház

Andornaktálya

42 M Ft
4 szoba
116 m2
Eladó családi ház
Eladó családi ház

Atkár

64.999 M Ft
4 szoba
125 m2
Eladó téglalakás
Eladó téglalakás

Hatvan

29.9 M Ft
2 szoba
62 m2
Eladó téglalakás
Eladó téglalakás

Eger

54.4 M Ft
2 + 1 szoba
59 m2
Eladó családi ház
Eladó családi ház

Mátraszentimre

250 M Ft
8 szoba
300 m2
Eladó családi ház
Eladó családi ház

Tiszanána

72 M Ft
5 szoba
220 m2
Eladó családi ház
Eladó családi ház

Visonta

244.9 M Ft
12 + 1 szoba
1195 m2
Eladó családi ház
Eladó családi ház

Andornaktálya

42.5 M Ft
3 szoba
115 m2
Eladó családi ház
Eladó családi ház

Ostoros

94.5 M Ft
3 szoba
96 m2
Eladó téglalakás
Eladó téglalakás

Eger, Károlyváros, Bartakovics utca

65 M Ft
2 + 2 szoba
94 m2
Eladó családi ház
Eladó családi ház

Bükkszék

13.9 M Ft
3 szoba
76 m2
Eladó családi ház
Eladó családi ház

Gyöngyöshalász

59.9 M Ft
5 szoba
96 m2
Eladó családi ház
Eladó családi ház

Gyöngyös

28.5 M Ft
1 + 1 szoba
62 m2
Eladó családi ház
Eladó családi ház

Gyöngyösoroszi

19.99 M Ft
2 szoba
110 m2
Eladó családi ház
Eladó családi ház

Ostoros

94.5 M Ft
3 szoba
96 m2
Eladó családi ház
Eladó családi ház

Andornaktálya

28.5 M Ft
2 szoba
60 m2
Eladó ikerház
Eladó ikerház

Erdőtelek

14.8 M Ft
2 szoba
75 m2

Falusi CSOK ingatlanok

Eladó családi ház
Eladó családi ház

Mezőkeresztes

23.9 M Ft
2 + 1 szoba
82 m2
Eladó családi ház
Eladó családi ház

Kunadacs

34 M Ft
240 m2
Eladó családi ház
Eladó családi ház

Mezőlak, Arany János utca

35.7 M Ft
3 szoba
104 m2
Eladó családi ház
Eladó családi ház

Mályi

89.9 M Ft
4 szoba
100 m2
Eladó családi ház
Eladó családi ház

Egyed

24.9 M Ft
2 + 1 szoba
56 m2
Eladó családi ház
Eladó családi ház

Tápiógyörgye

14.9 M Ft
2 szoba
60 m2
Eladó családi ház
Eladó családi ház

Tab

46.9 M Ft
4 szoba
173 m2
Eladó családi ház
Eladó családi ház

Kisnána

27.9 M Ft
4 szoba
180 m2