River Life

Eladó családi ház
Veszprém

+ 3 kép 1/6
190 500 000 Ft190.5 M Ft 544 286 Ft/m2
6 + 1 szoba
350 m²
építés éve:2026

Részletes adatok

Telekméret: 2390 m2
Fűtés: Elektromos
Energetikai besorolás: Nem adta meg a hirdető

Az OTP Bank lakáshitel ajánlataFizetett hirdetés

+36 70 369
Kiss Hortenzia Melinda
OTP Ingatlanpont Veszprém

Érdekel az OTP Bank kedvezményes lakáshitel ajánlata? *

* A kérdésre „Igen” válasz bejelölése esetén, az „Üzenet küldése” gombra kattintva kijelentem, hogy az OTP Bank Nyrt. Adatkezelési tájékoztatójának tartalmát megismertem és tudomásul vettem.

Eladó családi ház leírása

Panorámás, modern családi villa a Gulya-domb szomszédságában

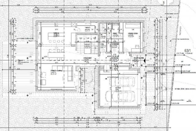
Veszprém egyik kiemelt, kertvárosias részén, a Veszprémvölgyi úton kínálunk megvételre egy engedélyezett tervek alapján megvalósítható, modern megjelenésű, kétszintes családi házat, 2.391 m2-es telken, a Gulya-domb közvetlen szomszédságában.
Az ingatlan a természetközeli életérzést és a városi kényelem elérhetőségét egyesíti tágas terekkel, nagy teraszokkal és átgondolt funkcionális elrendezéssel.
Az épület hasznos alapterülete: 297,65 m2 + 70 m2 terasz + 40 m2 garázs
Szintek száma: 2
Földszint: nagyvonalú közösségi terek és közvetlen kertkapcsolat
-Dupla garázs: 40 m2
-48,75 m2-es nappali + étkező
-26,23 m2-es konyha
-Vendégszoba saját fürdővel
-Tároló, gardrób
-47 m2-es terasz, prémium WPC teraszburkolattal
A földszinti nappali és étkező közvetlen kapcsolata a nagyméretű, 47 m2-es WPC burkolatú terasszal kiváló lehetőséget biztosít családi és baráti összejövetelekhez, kültéri étkezésekhez.
Emelet: privát élettér teraszkapcsolattal
-Szülői háló saját fürdőszobával és gardróbbal
-Két gyerekszoba
-Külön fürdőszoba
-Gardrób / pánikszoba
-Gépészeti helyiség
-23 m2-es emeleti terasz
Az emeleti, 23 m2-es terasz intim, panorámás pihenőtérként funkcionálhat: ideális reggeli kávéhoz vagy esti kikapcsolódáshoz.
Műszaki tartalom: korszerű és energiahatékony megoldások
-Levegős hőszivattyús rendszer fűtésre és hűtésre
-Padlófűtés és fan-coil rendszer
-Napelemes rendszer előkészítés
-15 cm homlokzati hőszigetelés
-Korszerű, hőszigetelt nyílászárók (1,15 W/m2K)
-Csapadékvíz gyűjtés és részbeni újrahasznosítás
Lokáció: természetközeli, mégis központi
Az ingatlan a Gulya-domb szomszédságában található, csendes, zöldövezeti környezetben.
Távolságok:
Óváros tér: 2,8 km
Balaton Pláza: 3,5 km
Interspar: 5 km
Így a történelmi belváros, bevásárlási lehetőségek és mindennapi szolgáltatások néhány perc alatt elérhetők.
Kinek ideális?
-Többgyermekes családnak
-Otthoni munkavégzésre is alkalmas életteret keresőknek
-Prémium minőséget és nagy telket kereső vevőknek
-Hosszú távon értékálló ingatlant kereső befektetőknek
Fontos információ az árra és készültségre vonatkozóan:
Az irányár a jelenlegi, szerkezetkész állapotra vonatkozik. Az ingatlan befejezése folyamatban van, amely a leendő tulajdonos igényei szerint alakítható. A befejezéshez két kivitelezőtől is rendelkezésre áll részletes ajánlat, így a további munkálatok tervezhetően és ellenőrizhető költségek mellett valósíthatók meg.
Az ingatlan az OTP Ingatlanpont kínálatában érhető el, OTP bankcsoporti háttérrel, amely biztonságos és átlátható ügyintézést biztosít.
Amennyiben szeretné részletesen megismerni a terveket vagy személyesen is megtekintené a telket, kérem keressen bizalommal.
Érdeklődni: Kiss Hortenzia +36-70-369-8323

Referencia szám: M324306

Hirdetés feltöltve: 2026. 04. 25. Utoljára módosítva: 2026. 04. 25.

Az ingatlan elhelyezkedése

Cím: Veszprém

Eladó családi házak a környékről

Csabrendek
Eladó családi ház

Csabrendek

98 M Ft
9 szoba
600 m²
Veszprém
Eladó családi ház

Veszprém

110.8 M Ft
4 szoba
110 m²
Veszprém
Eladó családi ház

Veszprém

150 M Ft
2 + 2 szoba
100 m²
Badacsonytördemic
Eladó családi ház

Badacsonytördemic

180.95 M Ft
4 szoba
160 m²
Badacsonytördemic
Eladó családi ház

Badacsonytördemic

79.9 M Ft
5 szoba
165 m²
Veszprém
Eladó családi ház

Veszprém

259.9 M Ft
7 szoba
285 m²
Lesencetomaj
Eladó családi ház

Lesencetomaj

90 M Ft
5 + 1 szoba
180 m²
Csopak
Eladó családi ház

Csopak

152 M Ft
5 szoba
88 m²
Veszprém
Eladó családi ház

Veszprém

149.99 M Ft
7 + 1 szoba
220 m²
Pápa
Eladó családi ház

Pápa

54 M Ft
2 + 1 szoba
90 m²
Monoszló
Eladó családi ház

Monoszló

1798.055 M Ft
9 szoba
2250 m²
Veszprém
Eladó családi ház

Veszprém

139.8 M Ft
4 szoba
157 m²
Balatonfüred
Eladó családi ház

Balatonfüred

449.9 M Ft
9 szoba
478 m²
Veszprém
Eladó családi ház

Veszprém

80 M Ft
3 + 3 szoba
112 m²
Várpalota
Eladó családi ház

Várpalota

55 M Ft
4 + 2 szoba
113 m²
Veszprém
Eladó családi ház

Veszprém

149 M Ft
4 + 1 szoba
250 m²
Veszprém
Eladó családi ház

Veszprém

85 M Ft
3 szoba
72 m²
Veszprém
Eladó családi ház

Veszprém

149 M Ft
6 + 1 szoba
243 m²
Veszprém
Eladó családi ház

Veszprém

350 M Ft
10 szoba
310 m²
Veszprém
Eladó családi ház

Veszprém

189.99 M Ft
7 szoba
180 m²
Veszprém
Eladó családi ház

Veszprém

149 M Ft
6 + 1 szoba
243 m²
Veszprém
Eladó családi ház

Veszprém

34.99 M Ft
2 szoba
67 m²
Veszprém, Jeruzsálemhegy, Kálistó utca
Eladó családi ház

Veszprém

34.99 M Ft
2 szoba
67 m²
Veszprém
Eladó családi ház

Veszprém

96.9 M Ft
5 szoba
100 m²

Falusi CSOK ingatlanok

Enese
Eladó családi ház

Enese

94.99 M Ft
3 + 1 szoba
124 m²
Törtel
Eladó családi ház

Törtel

33 M Ft
3 szoba
100 m²
Újpetre
Eladó családi ház

Újpetre

39 M Ft
3 + 1 szoba
130 m²
Jászkarajenő
Eladó családi ház

Jászkarajenő

17.5 M Ft
2 + 1 szoba
47 m²
Mesteri
Eladó családi ház

Mesteri

29.7 M Ft
4 szoba
140 m²
Nyírtura
Eladó családi ház

Nyírtura

99 M Ft
4 szoba
280 m²
Mályi
Eladó családi ház

Mályi

105 M Ft
6 szoba
267 m²
Fülöpszállás
Eladó családi ház

Fülöpszállás

19.9 M Ft
3 szoba
115 m²