NapForrás 20 - Buda

Eladó családi ház
Veresegyház

+ 17 kép 1/20
150 000 000 Ft150 M Ft 595 238 Ft/m2
6 szoba
252 m2
építés éve:1995

Részletes adatok

Telekméret: 751 m2
Fűtés: Gázkazán
Energetikai besorolás: Nem adta meg a hirdető

Az OTP Bank lakáshitel ajánlataFizetett hirdetés

+36 70 518
Kéki Mónika
referens

Érdekel az OTP Bank kedvezményes lakáshitel ajánlata? *

* A kérdésre „Igen” válasz bejelölése esetén, az „Üzenet küldése” gombra kattintva kijelentem, hogy az OTP Bank Nyrt. Adatkezelési tájékoztatójának tartalmát megismertem és tudomásul vettem.

Eladó családi ház leírása

*** ELADÓ több generációs családi ház Széchenyidombon ***

(Az ingatlanban található béépített bútorok,berendezési tárgyak nem képezik a vételár részét és azok kötelezően megvásárolandóak)

Megvételre kínálok Veresegyház közkedvelt területén, nyugodt, csendes lakóövezetben, egy 3 szintes, azonnal költözhető családi házat, hatalmas gyönyörű kerttel, medencével, dupla állásos garázzsal és további nyílt kocsibeállóval. A rendszeresen gondozott kertben öntözőrendszer is található.

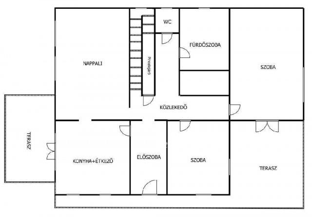
A nettó 252 nm-es ingatlan, hatalmas tereket biztosít, napfényes, rengeteg holmi tárolására alkalmas. Tökéletes választás nagy családosok számára vagy akik idősebb generációval szeretnének összeköltözni. De ugyancsak jó választás lehet akár irodának, rendelőnek, esetleg magán óvodának is. A ház teljesen alápincézett, itt jelenleg egy elektromos kapuval ellátott dupla állásos garázs, egy tároló és egy mosókonyha/nyárikonyha és egy zuhanyzós fürdő van kialakítva.

A középső szinten kapott helyet egy előszoba, konyha, étkező, nappali, két hálószoba, két fürdő és mosdók illetve a 14.7 m2-es első terasz, mely a konyhából nyílik illetve a 27.7 m2-es hátsó terasz, mely a hálószobával kapcsolódik közvetlenül.

A legfelső szinten pedig egy szintén tágas nappali, 2 szoba és egy fürdő mosdóval került kialakításra.

Az ingatlan nem szigetelt, de 38-as téglából épült, tökéletes hőérzetet biztosít a téli és a nyári hónapokban egyaránt.

A fűtésért a pincében lévő gázkazán felel radiátoros hőleadással illetve a hűtő-fűtő klíma is alkalmasak erre a célra. A melegvízellátást két villanybojler oldja meg.

A bútorok igény esetén maradhatnak, megbeszélés szerint, a vételár részén felüli értéket képviselve.

Közelben: Veresegyház központja ahol szinten minden megtalálható, autóval 5 perc, gyalogosan maximum 15 perc, a távolsági busz és vonatállomás, óvodák, iskolák és gimnázium, boltok, piac, és a természet is karnyújtásnyira.

Tehermentes, 1/1-es tulajdon, rugalmasan költözhető.

Amennyiben érdekes leeht a számára, keressen a hét bármely napján rugalmasan mutatom!

Hivatkozás: M301713

Hirdetés feltöltve: 2025. 10. 01. Utoljára módosítva: 2025. 12. 01.

Az ingatlan elhelyezkedése

Cím: Veresegyház

Eladó családi házak a környékről

Eladó családi ház
Eladó családi ház

Tápiószőlős

34.9 M Ft
5 szoba
210 m2
Eladó családi ház
Eladó családi ház

Tápiószele

32.9 M Ft
4 szoba
200 m2
Eladó családi ház
Eladó családi ház

Veresegyház

145.5 M Ft
5 szoba
148 m2
Eladó családi ház
Eladó családi ház

Tápiószele

11.9 M Ft
3 szoba
62 m2
Eladó családi ház
Eladó családi ház

Remeteszőlős

399.9 M Ft
5 + 2 szoba
260 m2
Eladó családi ház
Eladó családi ház

Budaörs, Odvshegy utca

268.9 M Ft
5 szoba
235 m2
Eladó családi ház
Eladó családi ház

Budakeszi, Budakeszi kertváros

229 M Ft
10 szoba
450 m2
Eladó családi ház
Eladó családi ház

Veresegyház

149.9 M Ft
4 szoba
260 m2
Eladó családi ház
Eladó családi ház

Budakeszi, Makkosmária

100 M Ft
1 szoba
10 m2
Eladó családi ház
Eladó családi ház

Tápiószentmárton

48 M Ft
5 szoba
180 m2
Eladó családi ház
Eladó családi ház

Veresegyház

220 M Ft
6 szoba
277 m2
Eladó családi ház
Eladó családi ház

Veresegyház

145.5 M Ft
5 szoba
136 m2
Eladó családi ház
Eladó családi ház

Veresegyház

157 M Ft
6 szoba
250 m2
Eladó családi ház
Eladó családi ház

Tápiószentmárton

7.9 M Ft
2 + 1 szoba
86 m2
Eladó családi ház
Eladó családi ház

Veresegyház

89 M Ft
10 szoba
199 m2
Eladó családi ház
Eladó családi ház

Érd

164.9 M Ft
5 szoba
192 m2
Eladó családi ház
Eladó családi ház

Veresegyház

59.9 M Ft
2 szoba
60 m2
Eladó családi ház
Eladó családi ház

Veresegyház

145.5 M Ft
5 szoba
136 m2
Eladó családi ház
Eladó családi ház

Budakeszi

130 M Ft
5 szoba
30 m2
Eladó családi ház
Eladó családi ház

Gyál, Gyál út

169.9 M Ft
2 szoba
90 m2
Eladó családi ház
Eladó családi ház

Budaörs, Városközpont utca

119.5 M Ft
5 + 1 szoba
140 m2
Eladó családi ház
Eladó családi ház

Tápiószele

37.9 M Ft
4 szoba
141 m2
Eladó családi ház
Eladó családi ház

Veresegyház, Salamon utca

119.9 M Ft
4 szoba
160 m2
Eladó családi ház
Eladó családi ház

Budakeszi, Budakeszi kertváros

140 M Ft
2 szoba
55 m2

Falusi CSOK ingatlanok

Eladó családi ház
Eladó családi ház

Elek

18 M Ft
4 szoba
180 m2
Eladó családi ház
Eladó családi ház

Bakonycsernye

39 M Ft
3 szoba
350 m2
Eladó családi ház
Eladó családi ház

Hosszúhetény

99 M Ft
4 szoba
160 m2
Eladó családi ház
Eladó családi ház

Ágasegyháza

79 M Ft
5 szoba
174 m2
Eladó családi ház
Eladó családi ház

Kislőd

53.2 M Ft
3 szoba
86 m2
Eladó családi ház
Eladó családi ház

Ceglédbercel

95 M Ft
6 szoba
220 m2
Eladó családi ház
Eladó családi ház

Nyárlőrinc

18.9 M Ft
1 szoba
440 m2
Eladó családi ház
Eladó családi ház

Mikepércs

56 M Ft
3 + 1 szoba
87 m2