Pesti Házak

Eladó családi ház
Vecsés

+ 3 kép 1/6
144 500 000 Ft144.5 M Ft 1 278 761 Ft/m2
4 szoba
113 m2
építés éve:2025

Részletes adatok

Telekméret: 413 m2
Fűtés: Egyéb
Energetikai besorolás: Nem adta meg a hirdető

Az OTP Bank lakáshitel ajánlataFizetett hirdetés

3629769726
Szászi Alexandra
referens

Érdekel az OTP Bank kedvezményes lakáshitel ajánlata? *

* A kérdésre „Igen” válasz bejelölése esetén, az „Üzenet küldése” gombra kattintva kijelentem, hogy az OTP Bank Nyrt. Adatkezelési tájékoztatójának tartalmát megismertem és tudomásul vettem.

Eladó családi ház leírása

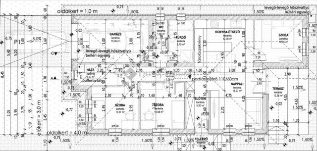
Vecsés nívós részén keresi első lakóit egy nettó 99,54 négyzetméter lakótérrel rendelkező önálló családiház, mely egy 413 négyzetméteres privát telken fekszik.
Híresen jó utcában, kedves szomszédsággal.
Az építkezés elkezdődött, de még mindent az új tulajdonos tud magának megálmodni.
Nappali+3 hálószoba kerül kialakításra, továbbá megtalálható lesz egy háztartási helyiség, egy egyben kádas és zuhanyzós fürdőszoba, 2 darab illemhelyiség és egy garázs is.
Tágas és napfényes terek jellemzik ezt az otthont, köszönhetően a rengeteg ablaknak ami délnyugat felé néz.
A majdnem 31 négyzetméteres Nappali Amerikai konyhából juthatunk ki az intim 12,36 négyzetméteres teraszunkra.
Extrák:
-riasztó kiállás
-4darab kamera kiállás
-rejtett redőnytokok elektromossággal
-épített kerítés
-bézs nyílászárók
-travertin kő berakás
-elektromos garázs és kertikapu
Fűtését és hűtését hőszivattyú rendszer látja el.
Az építési tervdokumentáció helyszínen megtekinthető!
Megbízható, sok éves múlttal rendelkező kivitelező! Referenciák megtekinthetőek.Ha egy igazán jó otthont szeretnél!
Szászi Alexandra: +36708828687 email: szaszi.alexandra@dh.hu

Referencia szám: HZ052383

Hirdetés feltöltve: 2026. 01. 03. Utoljára módosítva: 2026. 01. 03.

4 szobás családi házak ára Vecsésen

Ebből az összehasonlításból megtudhatod, hogyan viszonyul a lakás ára a környékbeli családi házak átlagos árához. Ez nem azt jelenti, hogy ennyivel olcsóbb vagy drágább, mint amennyit a lakás ér, hanem hogy ennyivel tér el a környékbeli átlagtól.

Ennek a m² ára
Vecsés m² ár
1279 e Ft
1114 e Ft -15%
Ennek az ára
Vecsés átlagár
144.5 M Ft m Ft
123.2 m Ft -17%

Az ingatlan elhelyezkedése

Cím: Vecsés

Eladó családi házak a környékről

Eladó családi ház
Eladó családi ház

Vecsés

172 M Ft
2 szoba
220 m2
Eladó családi ház
Eladó családi ház

Vecsés

149.9 M Ft
5 szoba
194 m2
Eladó családi ház
Eladó családi ház

Vecsés

110 M Ft
5 szoba
145 m2
Eladó családi ház
Eladó családi ház

Vecsés

245 M Ft
5 szoba
198 m2
Eladó családi ház
Eladó családi ház

Vecsés

155 M Ft
7 szoba
244 m2
Eladó családi ház
Eladó családi ház

Dunakeszi

250 M Ft
4 szoba
180 m2
Eladó családi ház
Eladó családi ház

Vecsés

299.9 M Ft
1 szoba
505 m2
Eladó családi ház
Eladó családi ház

Vecsés

87 M Ft
7 szoba
120 m2
Eladó családi ház
Eladó családi ház

Tápiószele

37.9 M Ft
4 szoba
141 m2
Eladó családi ház
Eladó családi ház

Dunavarsány

69.9 M Ft
3 + 1 szoba
140 m2
Eladó családi ház
Eladó családi ház

Remeteszőlős

399.9 M Ft
5 + 2 szoba
260 m2
Eladó családi ház
Eladó családi ház

Vecsés

169 M Ft
9 szoba
315 m2
Eladó családi ház
Eladó családi ház

Tápiószentmárton

48 M Ft
5 szoba
180 m2
Eladó családi ház
Eladó családi ház

Budaörs, Városközpont utca

119.5 M Ft
5 + 1 szoba
140 m2
Eladó családi ház
Eladó családi ház

Pécel, Reményik Sándor utca

296 M Ft
6 szoba
396 m2
Eladó családi ház
Eladó családi ház

Vecsés

480 M Ft
17 szoba
480 m2
Eladó családi ház
Eladó családi ház

Vecsés

225 M Ft
5 szoba
243 m2
Eladó családi ház
Eladó családi ház

Budakeszi, Budakeszi kertváros

140 M Ft
2 szoba
55 m2
Eladó családi ház
Eladó családi ház

Vecsés, Központ közeli

81.9 M Ft
3 szoba
95 m2
Eladó családi ház
Eladó családi ház

Vecsés

245 M Ft
5 szoba
198 m2
Eladó családi ház
Eladó családi ház

Érd

164.9 M Ft
5 szoba
192 m2
Eladó családi ház
Eladó családi ház

Budaörs, Bányász utca

385 M Ft
6 szoba
300 m2
Eladó családi ház
Eladó családi ház

Vecsés

159.9 M Ft
6 szoba
265 m2
Eladó családi ház
Eladó családi ház

Vecsés

299.9 M Ft
1 szoba
505 m2

Falusi CSOK ingatlanok

Eladó családi ház
Eladó családi ház

Boldva

25.99 M Ft
2 szoba
130 m2
Eladó családi ház
Eladó családi ház

Hegyeshalom

85 M Ft
4 + 1 szoba
123 m2
Eladó családi ház
Eladó családi ház

Homokmégy

15.9 M Ft
2 + 1 szoba
78 m2
Eladó családi ház
Eladó családi ház

Fülöpszállás

299 M Ft
14 + 5 szoba
680 m2
Eladó ikerház
Eladó ikerház

Seregélyes

39.9 M Ft
4 szoba
150 m2
Eladó téglalakás
Eladó téglalakás

Pápakovácsi

36.5 M Ft
4 szoba
101 m2
Eladó családi ház
Eladó családi ház

Újkígyós

17 M Ft
2 szoba
71 m2
Eladó családi ház
Eladó családi ház

Nágocs

72.3 M Ft
4 + 1 szoba
170 m2