City Pearl

Eladó családi ház
Vásárosnamény

+ 12 kép 1/15
26 900 000 Ft26.9 M Ft 298 889 Ft/m2
2 szoba
90 m²
építés éve:1970

Részletes adatok

Állapot: Átlagos
Telekméret: 3534 m2
Fűtés: Gázkazán
Energetikai besorolás: Nem adta meg a hirdető

Az OTP Bank lakáshitel ajánlataFizetett hirdetés

+36 30 167
Balázscsikné Hanzel Renáta
OTPIP Nyíregyháza Hunyadi u.

Érdekel az OTP Bank kedvezményes lakáshitel ajánlata? *

* A kérdésre „Igen” válasz bejelölése esetén, az „Üzenet küldése” gombra kattintva kijelentem, hogy az OTP Bank Nyrt. Adatkezelési tájékoztatójának tartalmát megismertem és tudomásul vettem.

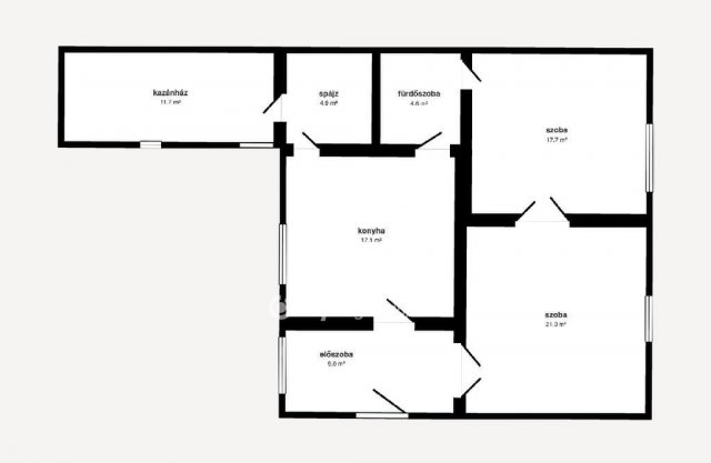
Eladó családi ház leírása

Felújított családi ház eladó Vásárosnamény fő utcáján ? nagy telekkel!

Vásárosnamény fő utcáján kínálok megvételre egy 90 m?-es, 2 szobás, felújított családi házat, amely kiváló választás lehet családoknak vagy befektetőknek egyaránt.

Az ingatlan főbb jellemzői:

2 tágas szoba

fürdőszoba

rendezett belső terek

műanyag nyílászárók

jó állapot

A ház egy 3534 m?-es, tágas telken helyezkedik el, amely számos lehetőséget kínál kertészkedésre, gazdálkodásra vagy akár további fejlesztésekre.

Az udvaron több melléképület is található, amelyek tárolásra, műhelynek vagy gazdasági célokra is alkalmasak.

Központi elhelyezkedésének köszönhetően minden fontos intézmény könnyen elérhető, mégis saját, nagy területű udvar biztosítja a kényelmet és a nyugalmat.

Per- és tehermentes
Azonnal birtokba vehető
Ez az ingatlan ideális választás családoknak, gazdálkodóknak vagy azoknak, akik nagy telekre és biztos értékre vágynak.
Hívjon most, és foglaljon időpontot megtekintésre az ilyen adottságú ingatlanok ritkán maradnak sokáig a piacon!
OTP Banki hátterünknek köszönhetően finanszírozási igényekben (pl. Otthon Start Hitelprogram, Babaváró, Falusi CSOK, CSOK Plusz, Lakáshitel, Személyi kölcsön stb.), illetve biztosítások tekintetében is díjmentesen, soron kívüli ügyintézéssel segítem ügyfeleim! Referenciaszám: M323785

Ne hagyja ki ezt a kiváló lehetőséget!
További információért és megtekintésért keressen bizalommal!

Hirdetés feltöltve: 2026. 04. 01. Utoljára módosítva: 2026. 05. 12.

2 szobás családi házak ára Vásárosnaményben

Ebből az összehasonlításból megtudhatod, hogyan viszonyul a lakás ára a környékbeli családi házak átlagos árához. Ez nem azt jelenti, hogy ennyivel olcsóbb vagy drágább, mint amennyit a lakás ér, hanem hogy ennyivel tér el a környékbeli átlagtól.

Ennek a m² ára
Vásárosnamény m² ár
299 e Ft
326 e Ft 8%
Ennek az ára
Vásárosnamény átlagár
26.9 M Ft m Ft
35.6 m Ft 24%

Az ingatlan elhelyezkedése

Cím: Vásárosnamény

Eladó családi házak a környékről

Vásárosnamény
Eladó családi ház

Vásárosnamény

55 M Ft
2 szoba
110 m²
Nyíregyháza
Eladó családi ház

Nyíregyháza

63.9 M Ft
2 + 1 szoba
100 m²
Nyíregyháza
Eladó családi ház

Nyíregyháza

89.9 M Ft
5 szoba
274 m²
Vásárosnamény
Eladó családi ház

Vásárosnamény

55 M Ft
2 szoba
110 m²
Nyíregyháza
Eladó családi ház

Nyíregyháza

190 M Ft
4 szoba
230 m²
Vásárosnamény
Eladó családi ház

Vásárosnamény

25 M Ft
2 szoba
71 m²
Vásárosnamény
Eladó családi ház

Vásárosnamény

66 M Ft
5 szoba
300 m²
Vásárosnamény, Jókai út
Eladó családi ház

Vásárosnamény

19.5 M Ft
3 szoba
98 m²
Vásárosnamény
Eladó családi ház

Vásárosnamény

44.99 M Ft
3 + 4 szoba
95 m²
Nyíregyháza
Eladó családi ház

Nyíregyháza

98 M Ft
4 szoba
125 m²
Vásárosnamény
Eladó családi ház

Vásárosnamény

55 M Ft
2 szoba
110 m²
Nyíregyháza
Eladó családi ház

Nyíregyháza

240 M Ft
3 szoba
204 m²
Nyírtelek
Eladó családi ház

Nyírtelek

130 M Ft
3 szoba
159 m²
Vásárosnamény
Eladó családi ház

Vásárosnamény

33 M Ft
3 szoba
113 m²
Nagyhalász
Eladó családi ház

Nagyhalász

20 M Ft
2 szoba
57 m²
Vásárosnamény
Eladó családi ház

Vásárosnamény

89 M Ft
3 + 1 szoba
266 m²
Nyíregyháza
Eladó családi ház

Nyíregyháza

140 M Ft
3 szoba
190 m²
Vásárosnamény
Eladó családi ház

Vásárosnamény

30 M Ft
3 szoba
94 m²
Vásárosnamény
Eladó családi ház

Vásárosnamény

38 M Ft
5 szoba
200 m²
Nyíregyháza
Eladó családi ház

Nyíregyháza

159 M Ft
2 szoba
130 m²
Nyíregyháza
Eladó családi ház

Nyíregyháza

65 M Ft
3 szoba
135 m²
Vásárosnamény
Eladó családi ház

Vásárosnamény

12.5 M Ft
2 szoba
80 m²
Kemecse
Eladó családi ház

Kemecse

34.9 M Ft
2 szoba
100 m²
Vásárosnamény
Eladó családi ház

Vásárosnamény

55 M Ft
2 szoba
110 m²

Falusi CSOK ingatlanok

Elek
Eladó családi ház

Elek

18 M Ft
4 szoba
180 m²
Balatonszemes
Eladó téglalakás

Balatonszemes

119.9 M Ft
2 szoba
0 m²
Rakamaz
Eladó családi ház

Rakamaz

86.9 M Ft
5 szoba
280 m²
Szentmártonkáta
Eladó családi ház

Szentmártonkáta

59.99 M Ft
6 szoba
117 m²
Tápiógyörgye
Eladó családi ház

Tápiógyörgye

22.5 M Ft
3 + 1 szoba
83 m²
Bag
Eladó családi ház

Bag

16.9 M Ft
6 szoba
160 m²
Cece
Eladó családi ház

Cece

69.8 M Ft
4 szoba
215 m²
Törtel
Eladó családi ház

Törtel

32.5 M Ft
3 szoba
66 m²