Metrodom

Eladó családi ház
Várvölgy

Figyelem!

Ez az ingatlan a 2019.07.01-től induló falusi CSOK által támogatott településen található

+ 11 kép 1/14
28 000 000 Ft28 M Ft 538 462 Ft/m2
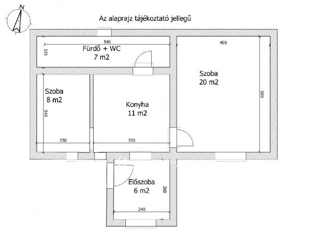
1 + 1 szoba
52 m²
építés éve:1960

Részletes adatok

Állapot: Felújítandó
Telekméret: 467 m2
Fűtés: Egyéb
Energetikai besorolás: Nem adta meg a hirdető
Zenga Premier

Friss hirdetések, amiket nem találsz meg más ingatlankereső portálon.

Fedezd fel elsőként a Zenga Premier címkés eladó ingatlanokat!

További részletek a zenga.hu-n

Az OTP Bank lakáshitel ajánlataFizetett hirdetés

+36 30 930
Boja Péter
referens

Érdekel az OTP Bank kedvezményes lakáshitel ajánlata? *

* A kérdésre „Igen” válasz bejelölése esetén, az „Üzenet küldése” gombra kattintva kijelentem, hogy az OTP Bank Nyrt. Adatkezelési tájékoztatójának tartalmát megismertem és tudomásul vettem.

Eladó családi ház leírása

Eladó családi ház Várvölgyön

Várvölgy csendes részén kínálunk megvételre egy 52 m2-es, 1+1 szobás családi házat, amely az 1960-as években épült. Az ingatlan egy 467 m2-es telken helyezkedik el, falazata vegyes - kő, tégla és vályog -, a tető cserépfedést kapott.

A fűtésről cserépkályha és hűtő-fűtő klíma gondoskodik, a melegvíz ellátás villanybojlerrel megoldott. Az udvarban összesen négy ház található, mindegyik saját helyrajzi számon, önálló telekrésszel. A felkínált ingatlan tehermentes, és nincs rajta semmilyen szolgalmi jog bejegyezve.

Az ingatlan kiváló lehetőség azok számára, akik egy nyugodt falusi környezetben szeretnének otthonra találni, vagy saját elképzeléseik szerint felújítható házat keresnek.

Amennyiben felkeltette az érdeklődését, kérem, egyeztessen időpontot a megtekintéshez!

Hirdetés feltöltve: 2026. 04. 01. Utoljára módosítva: 2026. 04. 01.

Az ingatlan elhelyezkedése

Cím: Várvölgy

Eladó ingatlanok a környékről

Zalaszentgrót
Eladó családi ház

Zalaszentgrót

12.9 M Ft
2 szoba
80 m²
Hévíz
Eladó téglalakás

Hévíz

54.29 M Ft
1 + 1 szoba
49 m²
Zalacsány
Eladó családi ház

Zalacsány

120 M Ft
5 + 1 szoba
220 m²
Hévíz
Eladó családi ház

Hévíz

225 M Ft
11 + 1 szoba
317 m²
Bak
Eladó családi ház

Bak

19 M Ft
2000 m²
90 m²
Hévíz
Eladó téglalakás

Hévíz

74.522 M Ft
2 szoba
45 m²
Zalaegerszeg
Eladó téglalakás

Zalaegerszeg

33.5 M Ft
2 szoba
54 m²
Cserszegtomaj
Eladó családi ház

Cserszegtomaj

159.9 M Ft
6 szoba
170 m²
Alsópáhok
Eladó családi ház

Alsópáhok

64.9 M Ft
3 szoba
110 m²
Nagykanizsa
Eladó téglalakás

Nagykanizsa

83 M Ft
1 + 2 szoba
111 m²
Zalaegerszeg
Eladó téglalakás

Zalaegerszeg

25.5 M Ft
1 + 1 szoba
42 m²
Hévíz
Eladó családi ház

Hévíz

80 M Ft
5 + 3 szoba
275 m²
Nagykanizsa
Eladó téglalakás

Nagykanizsa

49.5 M Ft
1 + 1 szoba
53 m²
Zalaegerszeg
Eladó családi ház

Zalaegerszeg

200 M Ft
7 szoba
355 m²
Kehidakustány
Eladó telek

Kehidakustány

39.9 M Ft
2244 m²
0 m²
Letenye
Eladó családi ház

Letenye

28.5 M Ft
2 szoba
70 m²
Zalaegerszeg
Eladó panellakás

Zalaegerszeg

74.5 M Ft
1 + 4 szoba
100 m²
Nagykanizsa
Eladó üzlethelyiség

Nagykanizsa

17 M Ft
140 m²
Muraszemenye
Eladó családi ház

Muraszemenye

8 M Ft
2 szoba
80 m²
Várvölgy
Eladó családi ház

Várvölgy

55 M Ft
3 szoba
65 m²
Nagykanizsa
Eladó téglalakás

Nagykanizsa

49.5 M Ft
1 + 1 szoba
53 m²
Nagykanizsa
Eladó téglalakás

Nagykanizsa

54.5 M Ft
1 + 1 szoba
80 m²
Hévíz, Park
Eladó családi ház

Hévíz

169 M Ft
5 szoba
220 m²
Kehidakustány
Eladó telek

Kehidakustány

39.9 M Ft
2244 m²
0 m²

Falusi CSOK ingatlanok

Szabadbattyán
Eladó családi ház

Szabadbattyán

147.99 M Ft
5 szoba
255 m²
Magyarszék
Eladó családi ház

Magyarszék

48.5 M Ft
3 + 1 szoba
86 m²
Bakonycsernye
Eladó családi ház

Bakonycsernye

39 M Ft
3 szoba
350 m²
Tápióbicske, Nagykátai út
Eladó családi ház

Tápióbicske

14.9 M Ft
3 szoba
70 m²
Ságvár
Eladó családi ház

Ságvár

53.9 M Ft
3 szoba
75 m²
Farmos
Eladó családi ház

Farmos

59.9 M Ft
4 szoba
90 m²
Tápióbicske
Eladó ikerház

Tápióbicske

93.5 M Ft
7 szoba
136 m²
Ceglédbercel
Eladó családi ház

Ceglédbercel

65.9 M Ft
3 szoba
97 m²

Falusi CSOK ingatlanok

Tápióság
Eladó családi ház

Tápióság

59.9 M Ft
4 szoba
99 m²
Balatonakali
Eladó ikerház

Balatonakali

560 M Ft
4 szoba
140 m²
Újlengyel
Eladó családi ház

Újlengyel

110 M Ft
4 szoba
121 m²
Ádánd
Eladó családi ház

Ádánd

53.5 M Ft
6 szoba
180 m²
Őriszentpéter
Eladó családi ház

Őriszentpéter

129.9 M Ft
4 szoba
160 m²
Magyarszék
Eladó családi ház

Magyarszék

48.5 M Ft
3 + 1 szoba
86 m²
Pánd, Toldi Miklós utca
Eladó családi ház

Pánd

22.9 M Ft
2 szoba
60 m²
Perbál
Eladó családi ház

Perbál

130 M Ft
5 szoba
190 m²