BAM Living

Eladó családi ház
Vál

+ 12 kép 1/15
25 000 000 Ft25 M Ft 265 957 Ft/m2
4 szoba
94 m2

Részletes adatok

Állapot: Felújítandó
Telekméret: 1730 m2
Fűtés: Egyéb
Energetikai besorolás: Nem adta meg a hirdető

Az OTP Bank lakáshitel ajánlataFizetett hirdetés

+36 30 394
Maja Ingatlanközvetítő Kft.
Maja Ingatlanközvetítő Kft.

Érdekel az OTP Bank kedvezményes lakáshitel ajánlata? *

* A kérdésre „Igen” válasz bejelölése esetén, az „Üzenet küldése” gombra kattintva kijelentem, hogy az OTP Bank Nyrt. Adatkezelési tájékoztatójának tartalmát megismertem és tudomásul vettem.

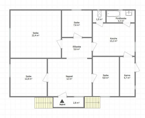
Eladó családi ház leírása

Válon 4 szoba+ nappalis családi ház eladó!

Jellemzői:
- tégla falazat, cserép héjazat, betongerendás födém;
- állapota: felújítandó;
- nettó 94 m2-es, 4 szoba + nappalis;
- 2,6 méter belmagasság;
- régi gerébtokos fa nyílászárók;
- régi villanyhálózat, 1 x 32 Amper;
- fűtése a nappaliban lévő 1 db kályha;
- szobákban nincs burkolat, látszik a beton;
Telek:
- 1730 m2-es két szintre tagolódik, közte egy meredek fal;
- fő utcán található, gépkocsival az udvaron és az utcán is tud parkolni;
- sóskúti kőből épült melléképületek, közepes, felújítandó állapotban;
- gyűrűskút az udvaron.

Ajánlom:
- aki kevés pénzből lakható ingatlant szeretne belterületen;
- nagycsaládosoknak;
- átalakítás után kétgenerációnak;
- befektetőknek.
Az ára tükrözi az állapotát, és a ráfordítás költségét.
Az ingatlan nem felel meg hitelfedezetnek!!

Ára: 25.000.000 Ft

Érdeklődni: Kardos Marianna, 06 30 394 9247

Hirdetés feltöltve: 2025. 12. 15. Utoljára módosítva: 2026. 01. 05.

Az ingatlan elhelyezkedése

Cím: Vál

Eladó ingatlanok a környékről

Eladó családi ház
Eladó családi ház

Vál

35 M Ft
3 szoba
100 m2
Eladó családi ház
Eladó családi ház

Vál

37.5 M Ft
2 szoba
45 m2
Eladó családi ház
Eladó családi ház

Szabadbattyán

357.518 M Ft
9 + 2 szoba
1053 m2
Eladó családi ház
Eladó családi ház

Vál

85 M Ft
6 szoba
245 m2
Eladó családi ház
Eladó családi ház

Mór

32 M Ft
3 szoba
80 m2
Eladó családi ház
Eladó családi ház

Kápolnásnyék, Bem utca

119.175 M Ft
5 szoba
156 m2
Eladó családi ház
Eladó családi ház

Vál

69.9 M Ft
3 szoba
100 m2
Eladó családi ház
Eladó családi ház

Sárbogárd, Tinódy utca

19.9 M Ft
3 szoba
75 m2
Eladó családi ház
Eladó családi ház

Alap, Nap utca

23.5 M Ft
4 szoba
75 m2
Eladó családi ház
Eladó családi ház

Székesfehérvár

249 M Ft
5 szoba
148 m2
Eladó családi ház
Eladó családi ház

Mány

18.5 M Ft
3 szoba
70 m2
Eladó családi ház
Eladó családi ház

Vál

161.7 M Ft
5 szoba
202 m2
Eladó családi ház
Eladó családi ház

Székesfehérvár

69.9 M Ft
3 szoba
95 m2
Eladó családi ház
Eladó családi ház

Bodajk

29.9 M Ft
2 szoba
59 m2
Eladó családi ház
Eladó családi ház

Velence

42.9 M Ft
1 szoba
40 m2
Eladó családi ház
Eladó családi ház

Vál

35 M Ft
3 szoba
100 m2
Eladó családi ház
Eladó családi ház

Tordas, Szabadság út

29.9 M Ft
2 szoba
63 m2
Eladó családi ház
Eladó családi ház

Vál

25 M Ft
2 szoba
75 m2
Eladó ikerház
Eladó ikerház

Iszkaszentgyörgy, Szabadság utca

109 M Ft
5 szoba
150 m2
Eladó nyaraló
Eladó nyaraló

Gárdony

43.8 M Ft
2 + 1 szoba
63 m2
Eladó családi ház
Eladó családi ház

Vál

40.99 M Ft
2 szoba
60 m2
Eladó családi ház
Eladó családi ház

Velence

80 M Ft
6 szoba
200 m2
Eladó családi ház
Eladó családi ház

Pusztaszabolcs

74.9 M Ft
4 + 1 szoba
192 m2
Eladó nyaraló
Eladó nyaraló

Gárdony

150 M Ft
10 szoba
243 m2

Falusi CSOK ingatlanok

Eladó családi ház
Eladó családi ház

Ráksi

69.9 M Ft
4 szoba
139 m2
Eladó családi ház
Eladó családi ház

Nyáregyháza

63.9 M Ft
1 + 1 szoba
79 m2
Eladó családi ház
Eladó családi ház

Lad, Ady Endre utca

40 M Ft
4 szoba
110 m2
Eladó családi ház
Eladó családi ház

Balatonkeresztúr

71.95 M Ft
5 szoba
128 m2
Eladó családi ház
Eladó családi ház

Nemesszalók

41.9 M Ft
5 + 1 szoba
170 m2
Eladó családi ház
Eladó családi ház

Somodor

8.9 M Ft
2 szoba
64 m2
Eladó családi ház
Eladó családi ház

Kenyeri

39.9 M Ft
3 szoba
94 m2
Eladó családi ház
Eladó családi ház

Enese

72.025 M Ft
4 szoba
75 m2