Oasis Residence

Eladó családi ház
Üllő

+ 17 kép 1/20
150 000 000 Ft150 M Ft 750 000 Ft/m2
5 szoba
200 m²
építés éve:2006

Részletes adatok

Telekméret: 603 m2
Fűtés: Egyéb
Parkolás: Garázs
Közmű: Gáz, Villany, Csatorna
Energetikai besorolás: Nem adta meg a hirdető
Zenga Premier

Friss hirdetések, amiket nem találsz meg más ingatlankereső portálon.

Fedezd fel elsőként a Zenga Premier címkés eladó ingatlanokat!

További részletek a zenga.hu-n

Az OTP Bank lakáshitel ajánlataFizetett hirdetés

+36 70 465
Székiné Scher Judit
referens

Érdekel az OTP Bank kedvezményes lakáshitel ajánlata? *

* A kérdésre „Igen” válasz bejelölése esetén, az „Üzenet küldése” gombra kattintva kijelentem, hogy az OTP Bank Nyrt. Adatkezelési tájékoztatójának tartalmát megismertem és tudomásul vettem.

Eladó családi ház leírása

Tágas, két szintes családi ház wellness résszel és napelemes rendszerrel – kiváló állapotban

Eladásra kínálunk egy 200 m²-es, két szintes, kiváló állapotú családi házat csendes utcában, mégis könnyen megközelíthető helyen. A közelben minden megtalálható: buszmegálló pár perc, bevásárlási lehetőségek, óvoda, iskola, orvosi rendelő.

Az ingatlan 2006-ban épült, nagy terekkel, jól átgondolt elrendezéssel.

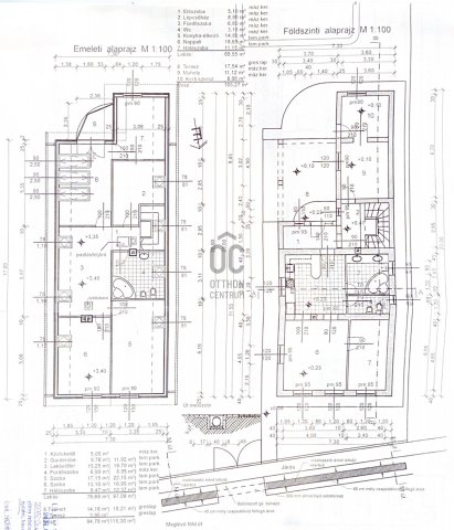
Főépület elosztása

Alsó szint:
- Tágas konyha–étkező
- Nappali
- 1 hálószoba
- Külön fürdőszoba és WC
- ~20 m²-es helyiség, amely dolgozószobának vagy további hálónak is kialakítható

Felső szint:
- 3 hálószoba
- Nagy nappali, hangulatos kandallóval
- Erkély
- Gardróbszoba
- Külön fürdőszoba és WC

Kert & extra épület – valódi élményotthon

Az udvarban egy kb. 120 m²-es könnyűszerkezetes építmény található, amely igazi különlegesség:
- Nagy méretű medence
- Szauna
- Zuhanyzós fürdőszoba
- Szabadidős tér (pl. pingpong)

Az építményen napelemes rendszer került kialakításra, amely jelentősen csökkenti az üzemeltetési költségeket.

További előnyök
- Garázs, valamint az udvaron további 4 autó kényelmes parkolása megoldott
- Tágas, jól használható kert
- Csendes, mégis jól megközelíthető elhelyezkedés

Ez az ingatlan ideális választás azoknak, akik nagy tereket, kényelmet és extra életminőséget keresnek – akár többgyermekes családnak vagy otthonról dolgozóknak is.

Érdeklődjön bizalommal, és tekintse meg személyesen ezt a különleges adottságokkal rendelkező otthont!

Hirdetés feltöltve: 2026. 04. 01. Utoljára módosítva: 2026. 04. 01.

5 szobás családi házak ára Üllőn

Ebből az összehasonlításból megtudhatod, hogyan viszonyul a lakás ára a környékbeli családi házak átlagos árához. Ez nem azt jelenti, hogy ennyivel olcsóbb vagy drágább, mint amennyit a lakás ér, hanem hogy ennyivel tér el a környékbeli átlagtól.

Ennek a m² ára
Üllő m² ár
750 e Ft
818 e Ft 8%
Ennek az ára
Üllő átlagár
150 M Ft m Ft
162.5 m Ft 8%

Az ingatlan elhelyezkedése

Cím: Üllő

Eladó családi házak a környékről

Üllő
Eladó családi ház

Üllő

117 M Ft
4 + 3 szoba
200 m²
Zebegény
Eladó családi ház

Zebegény

69.9 M Ft
6 szoba
245 m²
Tápiószőlős
Eladó családi ház

Tápiószőlős

34.9 M Ft
5 szoba
210 m²
Üllő
Eladó családi ház

Üllő

303 M Ft
12 szoba
551 m²
Üllő
Eladó családi ház

Üllő

105 M Ft
4 szoba
150 m²
Tápiószele
Eladó családi ház

Tápiószele

32.9 M Ft
4 szoba
200 m²
Kerepes
Eladó családi ház

Kerepes

81.99 M Ft
5 szoba
102 m²
Üllő
Eladó családi ház

Üllő

99.8 M Ft
4 szoba
122 m²
Üllő
Eladó családi ház

Üllő

125 M Ft
4 szoba
170 m²
Üllő
Eladó családi ház

Üllő

303 M Ft
12 szoba
551 m²
Üllő
Eladó családi ház

Üllő

117 M Ft
6 szoba
280 m²
Budakeszi, Budakeszi kertváros
Eladó családi ház

Budakeszi

229 M Ft
10 szoba
450 m²
Budakeszi
Eladó családi ház

Budakeszi

130 M Ft
5 szoba
30 m²
Üllő
Eladó családi ház

Üllő

22 M Ft
1 szoba
32 m²
Tápiószentmárton
Eladó családi ház

Tápiószentmárton

16.5 M Ft
3 szoba
50 m²
Üllő
Eladó családi ház

Üllő

53.9 M Ft
2 szoba
51 m²
Őrbottyán
Eladó családi ház

Őrbottyán

154 M Ft
4 + 1 szoba
115 m²
Üllő
Eladó családi ház

Üllő

34.9 M Ft
3 szoba
63 m²
Üllő, Pesti út
Eladó családi ház

Üllő

149 M Ft
4 szoba
172 m²
Budaörs
Eladó családi ház

Budaörs

400 M Ft
12 szoba
583 m²
Nagykáta
Eladó családi ház

Nagykáta

130 M Ft
3 szoba
203 m²
Pécel, Reményik Sándor utca
Eladó családi ház

Pécel

296 M Ft
6 szoba
396 m²
Üllő
Eladó családi ház

Üllő

53.9 M Ft
2 szoba
51 m²
Tápiószele
Eladó családi ház

Tápiószele

37.9 M Ft
4 szoba
141 m²

Falusi CSOK ingatlanok

Ádánd
Eladó családi ház

Ádánd

53.5 M Ft
6 szoba
180 m²
Lengyeltóti
Eladó családi ház

Lengyeltóti

26.5 M Ft
2 szoba
85 m²
Farmos
Eladó családi ház

Farmos

59.9 M Ft
4 szoba
90 m²
Vásárosdombó
Eladó családi ház

Vásárosdombó

14.99 M Ft
2 szoba
69 m²
Szigetcsép, Rákóczi utca
Eladó családi ház

Szigetcsép

63 M Ft
4 szoba
89 m²
Vértesboglár
Eladó családi ház

Vértesboglár

56.9 M Ft
4 szoba
154 m²
Ceglédbercel
Eladó családi ház

Ceglédbercel

65.9 M Ft
3 szoba
97 m²
Tápióbicske
Eladó ikerház

Tápióbicske

93.5 M Ft
7 szoba
136 m²