Aerogate Homes

Eladó családi ház
Üllő

+ 14 kép 1/17
95 000 000 Ft95 M Ft 922 330 Ft/m2
2 + 2 szoba
103 m²
építés éve:1972

Részletes adatok

Telekméret: 1050 m2
Fűtés: Gázkazán
Komfort: Összkomfortos
Energetikai besorolás: D

Az OTP Bank lakáshitel ajánlataFizetett hirdetés

+36 70 242
Erdélyi Miklós István
Otp Ingatlanpont Falk Miksa

Érdekel az OTP Bank kedvezményes lakáshitel ajánlata? *

* A kérdésre „Igen” válasz bejelölése esetén, az „Üzenet küldése” gombra kattintva kijelentem, hogy az OTP Bank Nyrt. Adatkezelési tájékoztatójának tartalmát megismertem és tudomásul vettem.

Eladó családi ház leírása

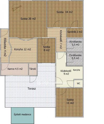
***Kizárólag Nálunk!*** Sétatávolságra a vasúttól! Pest megyében, Üllőn eladó egy csendes, nívós környéken lévő, 103 m2-s 2+2 szobás, felújított, duplakomfortos, családi ház amely egy 1050 m2-s telken helyezkedik el. Állapot: szigetelt falak, esztétikus betoncserép fedés, frissen felújított belső terek. Az ingatlan egy ajtó beépítésével 2 generációs házzá alakítható át.
Fűtés-hűtés: gazdaságos gáz-cirkó és hűtő fűtő klíma.
Kert és extrák: A parkosított telken egy épített kismedence várja a nyári felfrissülést. A nagy méretű terasz lehetőséget teremt a grillezésekre, pihenésre. A tárolást melléképület az autók parkolását saját garázs biztosítja.
Speciális, ingatlanjogász ügyvédi iroda vagyunk. Szerződésének szerkesztését nagy tapaszatalattal, kedvezményesen végezzük, akkor is, ha nem általam vásárol! Finszter Ügyvédi Iroda. Mentsen el.

Referencia szám: M322928-ZE

Hirdetés feltöltve: 2026. 03. 05. Utoljára módosítva: 2026. 05. 12.

4 szobás családi házak ára Üllőn

Ebből az összehasonlításból megtudhatod, hogyan viszonyul a lakás ára a környékbeli családi házak átlagos árához. Ez nem azt jelenti, hogy ennyivel olcsóbb vagy drágább, mint amennyit a lakás ér, hanem hogy ennyivel tér el a környékbeli átlagtól.

Ennek a m² ára
Üllő m² ár
922 e Ft
900 e Ft -3%
Ennek az ára
Üllő átlagár
95 M Ft m Ft
105.6 m Ft 10%

Az ingatlan elhelyezkedése

Cím: Üllő

Eladó családi házak a környékről

Tápiószele
Eladó családi ház

Tápiószele

37.9 M Ft
4 szoba
141 m²
Üllő
Eladó családi ház

Üllő

53.9 M Ft
2 szoba
51 m²
Üllő
Eladó családi ház

Üllő

105 M Ft
4 szoba
150 m²
Érd, Érdliget - Kutyavár, Érd-liget
Eladó családi ház

Érd

230 M Ft
7 szoba
280 m²
Őrbottyán
Eladó családi ház

Őrbottyán

154 M Ft
4 + 1 szoba
115 m²
Tápiószentmárton
Eladó családi ház

Tápiószentmárton

48 M Ft
5 szoba
180 m²
Üllő
Eladó családi ház

Üllő

149 M Ft
4 szoba
172 m²
Budakeszi, Makkosmária
Eladó családi ház

Budakeszi

100 M Ft
1 szoba
10 m²
Tápiószőlős
Eladó családi ház

Tápiószőlős

34.9 M Ft
5 szoba
210 m²
Kerepes
Eladó családi ház

Kerepes

81.99 M Ft
5 szoba
102 m²
Üllő
Eladó családi ház

Üllő

91.9 M Ft
4 szoba
89 m²
Budakeszi, Budakeszi kertváros
Eladó családi ház

Budakeszi

229 M Ft
10 szoba
450 m²
Tápiószele
Eladó családi ház

Tápiószele

45 M Ft
6 szoba
360 m²
Üllő
Eladó családi ház

Üllő

169.9 M Ft
4 szoba
164 m²
Üllő
Eladó családi ház

Üllő

99.8 M Ft
3 szoba
161 m²
Üllő
Eladó családi ház

Üllő

99.8 M Ft
3 szoba
161 m²
Üllő
Eladó családi ház

Üllő

109 M Ft
5 szoba
115 m²
Zebegény
Eladó családi ház

Zebegény

69.9 M Ft
6 szoba
245 m²
Üllő
Eladó családi ház

Üllő

72.9 M Ft
6 szoba
200 m²
Üllő
Eladó családi ház

Üllő

299 M Ft
6 szoba
320 m²
Tápiószentmárton
Eladó családi ház

Tápiószentmárton

7.9 M Ft
2 + 1 szoba
86 m²
Tápiószentmárton
Eladó családi ház

Tápiószentmárton

16.5 M Ft
3 szoba
50 m²
Remeteszőlős
Eladó családi ház

Remeteszőlős

399.9 M Ft
5 + 2 szoba
260 m²
Üllő, Zöldfa utca
Eladó családi ház

Üllő

229 M Ft
4 szoba
268 m²

Falusi CSOK ingatlanok

Szigetújfalu
Eladó családi ház

Szigetújfalu

66 M Ft
3 szoba
118 m²
Maráza
Eladó családi ház

Maráza

29.9 M Ft
3 szoba
96 m²
Márianosztra
Eladó családi ház

Márianosztra

38 M Ft
4 szoba
75 m²
Balatonőszöd
Eladó családi ház

Balatonőszöd

72 M Ft
4 szoba
92 m²
Bag
Eladó családi ház

Bag

110 M Ft
5 szoba
320 m²
Rakamaz
Eladó családi ház

Rakamaz

86.9 M Ft
5 szoba
280 m²
Páka
Eladó családi ház

Páka

29.99 M Ft
3 szoba
121 m²
Parád
Eladó családi ház

Parád

25 M Ft
2 szoba
80 m²