Astora Márvány8

Eladó családi ház
Újszász

+ 9 kép 1/12
15 900 000 Ft15.9 M Ft 244 615 Ft/m2
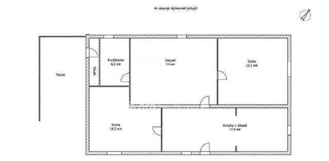
3 szoba
65 m²
építés éve:1960

Részletes adatok

Telekméret: 1457 m2
Fűtés: Gázkazán
Energetikai besorolás: Nem adta meg a hirdető

Az OTP Bank lakáshitel ajánlataFizetett hirdetés

+36 20 220
Szabó Sándor
referens

Érdekel az OTP Bank kedvezményes lakáshitel ajánlata? *

* A kérdésre „Igen” válasz bejelölése esetén, az „Üzenet küldése” gombra kattintva kijelentem, hogy az OTP Bank Nyrt. Adatkezelési tájékoztatójának tartalmát megismertem és tudomásul vettem.

Eladó családi ház leírása

Újszászon, a Nap úton eladó családi ház nagy telekkel!

Megvételre kínálok Újszászon, csendes utcában egy vályog falazatú, 65 m2-es, 3 szobás családi házat, mely műszakilag felújított állapotban várja új tulajdonosát.

A felújítás során kicserélték a víz- és villanyhálózatot, megújultak a hideg- és melegburkolatok, valamint a nyílászárók egy része is. A födémen 10 cm vastag hőszigetelés található.

A fűtést új, kondenzációs gázkazán és új radiátorok szolgáltatják, így az ingatlan energetikailag is korszerű.

A 1457 m2-es, tágas telek kiváló lehetőségeket rejt: akár kétlakásos lakóingatlan is építhető rá, így befektetésre is ideális.

Csendes, barátságos környék, jó megközelíthetőség, rendezett udvar várja leendő tulajdonosát.

Vasútállomás 10 -15 perces séta távolságra található!

Keressen bizalommal, akár hétvégén is!
Érd.: Szabó Sándor +3620-220 4440

Referencia szám: M323751-ZE

Hirdetés feltöltve: 2026. 03. 16. Utoljára módosítva: 2026. 04. 04.

3 szobás családi házak ára Újszászon

Ebből az összehasonlításból megtudhatod, hogyan viszonyul a lakás ára a környékbeli családi házak átlagos árához. Ez nem azt jelenti, hogy ennyivel olcsóbb vagy drágább, mint amennyit a lakás ér, hanem hogy ennyivel tér el a környékbeli átlagtól.

Ennek a m² ára
Újszász m² ár
245 e Ft
476 e Ft 49%
Ennek az ára
Újszász átlagár
15.9 M Ft m Ft
36.3 m Ft 56%

Az ingatlan elhelyezkedése

Cím: Újszász

Eladó családi házak a környékről

Jászberény
Eladó családi ház

Jászberény

75 M Ft
3 szoba
168 m²
Szolnok
Eladó családi ház

Szolnok

30 M Ft
2 szoba
70 m²
Kisújszállás
Eladó családi ház

Kisújszállás

119 M Ft
6 szoba
464 m²
Jászberény
Eladó családi ház

Jászberény

39.9 M Ft
5 szoba
160 m²
Újszász
Eladó családi ház

Újszász

54.423 M Ft
3 szoba
63 m²
Jászjákóhalma
Eladó családi ház

Jászjákóhalma

15.5 M Ft
3 szoba
78 m²
Jászfényszaru
Eladó családi ház

Jászfényszaru

55 M Ft
4 szoba
140 m²
Kunszentmárton
Eladó családi ház

Kunszentmárton

13.9 M Ft
3 szoba
92 m²
Szolnok
Eladó családi ház

Szolnok

169 M Ft
2 + 2 szoba
194 m²
Szolnok
Eladó családi ház

Szolnok

120 M Ft
3 + 4 szoba
296 m²
Abádszalók
Eladó családi ház

Abádszalók

18 M Ft
4 szoba
110 m²
Abádszalók
Eladó családi ház

Abádszalók

18 M Ft
4 szoba
110 m²
Újszász
Eladó családi ház

Újszász

56.055 M Ft
3 szoba
65 m²
Jászárokszállás
Eladó családi ház

Jászárokszállás

21.5 M Ft
2 szoba
45 m²
Újszász
Eladó családi ház

Újszász

17.9 M Ft
2 szoba
74 m²
Újszász
Eladó családi ház

Újszász

16.9 M Ft
2 szoba
52 m²
Újszász
Eladó családi ház

Újszász

24.9 M Ft
3 szoba
90 m²
Újszász
Eladó családi ház

Újszász

24.9 M Ft
2 szoba
75 m²
Újszász
Eladó családi ház

Újszász

69.999 M Ft
3 szoba
83 m²
Mezőtúr
Eladó családi ház

Mezőtúr

25 M Ft
3 szoba
141 m²
Újszász
Eladó családi ház

Újszász

24.9 M Ft
2 szoba
75 m²
Jászberény, Tőtevény tanya
Eladó családi ház

Jászberény

99.9 M Ft
6 szoba
229 m²
Cibakháza
Eladó családi ház

Cibakháza

2.5 M Ft
2 szoba
75 m²
Szolnok
Eladó családi ház

Szolnok

20.5 M Ft
2 szoba
78 m²

Falusi CSOK ingatlanok

Kocsér
Eladó családi ház

Kocsér

27.9 M Ft
4 szoba
108 m²
Seregélyes
Eladó családi ház

Seregélyes

75 M Ft
6 szoba
160 m²
Cece
Eladó családi ház

Cece

69.8 M Ft
4 szoba
215 m²
Onga
Eladó családi ház

Onga

52.9 M Ft
5 szoba
110 m²
Bodajk
Eladó ikerház

Bodajk

67.9 M Ft
5 szoba
90 m²
Somogycsicsó
Eladó családi ház

Somogycsicsó

15.99 M Ft
4 szoba
98 m²
Sávoly, Rákóczi Ferenc utca 76
Eladó családi ház

Sávoly

12.94 M Ft
2 + 1 szoba
88 m²
Tápiógyörgye
Eladó családi ház

Tápiógyörgye

24.99 M Ft
6 + 1 szoba
153 m²