NapForrás 20 - Buda

Eladó családi ház
Tura

+ 16 kép 1/19
29 900 000 Ft29.9 M Ft 355 952 Ft/m2
2 szoba
84 m2
építés éve:1954

Részletes adatok

Állapot: Felújítandó
Telekméret: 1592 m2
Fűtés: Gázkonvektor
Parkolás: Garázs
Energetikai besorolás: Nem adta meg a hirdető

Az OTP Bank lakáshitel ajánlataFizetett hirdetés

+36 70 779
János Marianna
referens

Érdekel az OTP Bank kedvezményes lakáshitel ajánlata? *

* A kérdésre „Igen” válasz bejelölése esetén, az „Üzenet küldése” gombra kattintva kijelentem, hogy az OTP Bank Nyrt. Adatkezelési tájékoztatójának tartalmát megismertem és tudomásul vettem.

Eladó családi ház leírása

Eladó felújítandó parasztház Tura városában, a híres Schossberger-kastély szomszédságában!

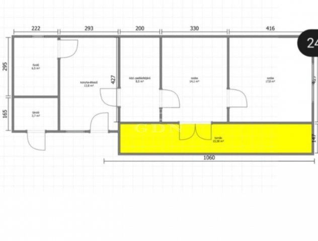
Tura egyik legszebb részén, a kastély közvetlen közelében kínálunk eladásra egy 84 m²-es, 2 szobás, felújítandó parasztházat, 1592 m²-es telken.

A ház szerkezetileg jó állapotú, tetőszerkezete hibátlan, így felújításkor a szerkezeti munkák megspórolhatók.
A 16 m²-es száraz pince további tárolási lehetőséget biztosít, a fúrt kút, riasztó- és kamerarendszer, pedig a ház praktikus kiegészítői.

Főbb jellemzők:
• 84 m²-es alapterület
• 2 tágas szoba
• 16 m²-es, száraz pince
• konvektoros fűtés
• fúrt kút
• riasztó és kamerarendszer
• régi fa nyílászárók
• 1592 m²-es, gondozható telek

Elhelyezkedés:
Tura Pest vármegye egyik legkedveltebb kisvárosa, amely Budapesttől mindössze 35-40 percre található, az M3-as autópályán vagy vonattal is könnyen megközelíthető.
A város rendezett, fejlődő település, iskolákkal, boltokkal, orvosi rendelővel, jó infrastruktúrával.
A Schossberger-kastély és parkja különleges hangulatot kölcsönöz a környéknek, így a ház turisztikailag is vonzó helyen fekszik.

Kiváló lehetőség azoknak, akik saját ízlésük szerint újítanák fel otthonukat, vagy nyugodt, természetközeli életet keresnek Pest közelségében.

Irányár: 29.900.000.-ft ...TOVÁBBI, TÖBBEZRES INGATLAN KÍNÁLAT: www.gdn-ingatlan.hu - GDN azonosító: 388834

Hirdetés feltöltve: 2025. 10. 24. Utoljára módosítva: 2026. 01. 06.

2 szobás családi házak ára Turán

Ebből az összehasonlításból megtudhatod, hogyan viszonyul a lakás ára a környékbeli családi házak átlagos árához. Ez nem azt jelenti, hogy ennyivel olcsóbb vagy drágább, mint amennyit a lakás ér, hanem hogy ennyivel tér el a környékbeli átlagtól.

Ennek a m² ára
Tura m² ár
356 e Ft
455 e Ft 22%
Ennek az ára
Tura átlagár
29.9 M Ft m Ft
32.6 m Ft 8%

Az ingatlan elhelyezkedése

Cím: Tura

Eladó családi házak a környékről

Eladó családi ház
Eladó családi ház

Budakeszi, Budakeszi kertváros

229 M Ft
10 szoba
450 m2
Eladó családi ház
Eladó családi ház

Budaörs, Odvshegy utca

268.9 M Ft
5 szoba
235 m2
Eladó családi ház
Eladó családi ház

Tura, Katona út

40 M Ft
3 szoba
58 m2
Eladó családi ház
Eladó családi ház

Gyál, Gyál út

169.9 M Ft
2 szoba
90 m2
Eladó családi ház
Eladó családi ház

Tura

54.9 M Ft
3 szoba
113 m2
Eladó családi ház
Eladó családi ház

Tura

49.9 M Ft
4 szoba
100 m2
Eladó családi ház
Eladó családi ház

Kerepes

81.99 M Ft
5 szoba
102 m2
Eladó családi ház
Eladó családi ház

Tura

159.9 M Ft
4 szoba
270 m2
Eladó családi ház
Eladó családi ház

Tápiószele

11.9 M Ft
3 szoba
62 m2
Eladó családi ház
Eladó családi ház

Dunakeszi

250 M Ft
4 szoba
180 m2
Eladó családi ház
Eladó családi ház

Tápiószőlős

34.9 M Ft
5 szoba
210 m2
Eladó családi ház
Eladó családi ház

Tura

45 M Ft
3 szoba
110 m2
Eladó családi ház
Eladó családi ház

Budakeszi, Makkosmária

100 M Ft
1 szoba
10 m2
Eladó családi ház
Eladó családi ház

Budakeszi, Budakeszi kertváros

140 M Ft
2 szoba
55 m2
Eladó családi ház
Eladó családi ház

Tápiószentmárton

7.9 M Ft
2 + 1 szoba
86 m2
Eladó családi ház
Eladó családi ház

Tura

87 M Ft
7 szoba
154 m2
Eladó családi ház
Eladó családi ház

Tura, Alsóerdő sor

25 M Ft
2 + 1 szoba
80 m2
Eladó családi ház
Eladó családi ház

Leányfalu

237 M Ft
9 szoba
800 m2
Eladó családi ház
Eladó családi ház

Tápiószele

37.9 M Ft
4 szoba
141 m2
Eladó családi ház
Eladó családi ház

Tura

13.499 M Ft
1 szoba
26 m2
Eladó családi ház
Eladó családi ház

Tura

29.99 M Ft
2 szoba
65 m2
Eladó családi ház
Eladó családi ház

Tura

62.5 M Ft
6 szoba
170 m2
Eladó családi ház
Eladó családi ház

Tura

37.99 M Ft
2 szoba
65 m2
Eladó családi ház
Eladó családi ház

Tura

42 M Ft
4 szoba
127 m2

Falusi CSOK ingatlanok

Eladó családi ház
Eladó családi ház

Dunaszekcső

27.5 M Ft
3 szoba
128 m2
Eladó családi ház
Eladó családi ház

Bakonynána

44.999 M Ft
4 szoba
129 m2
Eladó családi ház
Eladó családi ház

Somlóvásárhely

39.8 M Ft
1 szoba
78 m2
Eladó családi ház
Eladó családi ház

Devecser

42.9 M Ft
3 szoba
100 m2
Eladó családi ház
Eladó családi ház

Görcsöny

98 M Ft
4 szoba
134 m2
Eladó családi ház
Eladó családi ház

Üllés

35.5 M Ft
3 szoba
99 m2
Eladó családi ház
Eladó családi ház

Pápakovácsi

79.9 M Ft
4 szoba
210 m2
Eladó családi ház
Eladó családi ház

Fajsz

25 M Ft
3 szoba
95 m2