Eladó családi ház
Tura

+ 10 kép 1/13
29 900 000 Ft29.9 M Ft 373 750 Ft/m2
2 szoba
80 m2
építés éve:1970

Részletes adatok

Állapot: Felújítandó
Telekméret: 919 m2
Fűtés: Gázkonvektor
Energetikai besorolás: Nem adta meg a hirdető

Az OTP Bank lakáshitel ajánlataFizetett hirdetés

+36 30 487
Pintér Boglárka
THN-TAMUS Kft.

Érdekel az OTP Bank kedvezményes lakáshitel ajánlata? *

* A kérdésre „Igen” válasz bejelölése esetén, az „Üzenet küldése” gombra kattintva kijelentem, hogy az OTP Bank Nyrt. Adatkezelési tájékoztatójának tartalmát megismertem és tudomásul vettem.

Eladó családi ház leírása

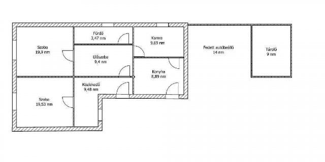
Megvételre kínálok Tura Vasút-újtelepi részén, 919 nm-es telken elhelyezkedő, délnyugati fekvésű, vegyes falazatú (tégla és vályog), 80 nm alapterületű, 2 szobás FELÚJÍTANDÓ családi házat.

Az ingatlan fűtése gázkonvektorral megoldott, a melegvizet villany bojler biztosítja.

Az ingatlan rendelkezik egy fedett autóbeállóval, kúttal, tárolóval, és a tároló alatt egy pince is megtalálható.

A szomszédok barátságosak, kedvesek.

Infrastruktúrája kiváló, 5 perc sétatávolságra található a vasút és buszállomás, 15 perc sétára óvoda, iskolák, gyógyszertár és orvosi rendelők, okmányiroda, piac, boltok.

Aszód-Hatvan-Gödöllő városok közelsége miatt, kiváló adottságokkal rendelkezik munkahelyek tekintetében.

Az ingatlan CSOK Pluszra alkalmas!

Bővebb információkért keressen bizalommal, akár hétvégén is!

Hirdetés feltöltve: 2025. 07. 16. Utoljára módosítva: 2025. 09. 22.

2 szobás családi házak ára Turán

Ebből az összehasonlításból megtudhatod, hogyan viszonyul a lakás ára a környékbeli családi házak átlagos árához. Ez nem azt jelenti, hogy ennyivel olcsóbb vagy drágább, mint amennyit a lakás ér, hanem hogy ennyivel tér el a környékbeli átlagtól.

Ennek a m² ára
Tura m² ár
374 e Ft
445 e Ft 16%
Ennek az ára
Tura átlagár
29.9 M Ft m Ft
47.6 m Ft 37%

Az ingatlan elhelyezkedése

Cím: Tura

Eladó családi házak a környékről

Eladó családi ház
Eladó családi ház

Tura

39.9 M Ft
5 szoba
231 m2
Eladó családi ház
Eladó családi ház

Tura

13 M Ft
1 szoba
35 m2
Eladó családi ház
Eladó családi ház

Tura

13.499 M Ft
1 szoba
26 m2
Eladó családi ház
Eladó családi ház

Tápiógyörgye

19.9 M Ft
3 szoba
65 m2
Eladó családi ház
Eladó családi ház

Budaörs, Odvshegy utca

268.9 M Ft
5 szoba
235 m2
Eladó családi ház
Eladó családi ház

Budaörs, Városközpont utca

119.5 M Ft
5 + 1 szoba
140 m2
Eladó családi ház
Eladó családi ház

Tura, Alsóerdő sor

25 M Ft
2 + 1 szoba
80 m2
Eladó családi ház
Eladó családi ház

Tura

29.9 M Ft
2 szoba
80 m2
Eladó családi ház
Eladó családi ház

Tura

29.9 M Ft
2 szoba
64 m2
Eladó családi ház
Eladó családi ház

Tura

32.5 M Ft
2 szoba
73 m2
Eladó családi ház
Eladó családi ház

Tura

32.5 M Ft
2 szoba
75 m2
Eladó családi ház
Eladó családi ház

Budakeszi, Makkosmária

100 M Ft
1 szoba
10 m2
Eladó családi ház
Eladó családi ház

Tura

29.9 M Ft
2 szoba
80 m2
Eladó családi ház
Eladó családi ház

Tahitótfalu

188 M Ft
7 szoba
280 m2
Eladó családi ház
Eladó családi ház

Leányfalu

237 M Ft
9 szoba
800 m2
Eladó családi ház
Eladó családi ház

Tura

31.9 M Ft
3 szoba
92 m2
Eladó családi ház
Eladó családi ház

Remeteszőlős

399.9 M Ft
5 + 2 szoba
260 m2
Eladó családi ház
Eladó családi ház

Tura

45 M Ft
3 szoba
110 m2
Eladó családi ház
Eladó családi ház

Tura

31.99 M Ft
2 szoba
72 m2
Eladó családi ház
Eladó családi ház

Budakeszi, Budakeszi kertváros

140 M Ft
2 szoba
55 m2
Eladó családi ház
Eladó családi ház

Sződ, Rátóti utca

149.99 M Ft
11 szoba
270 m2
Eladó családi ház
Eladó családi ház

Dunavarsány

46.9 M Ft
3 + 2 szoba
130 m2
Eladó családi ház
Eladó családi ház

Érd

164.9 M Ft
5 szoba
192 m2
Eladó családi ház
Eladó családi ház

Tápiószentmárton

7.9 M Ft
2 + 1 szoba
86 m2

Falusi CSOK ingatlanok

Eladó családi ház
Eladó családi ház

Makád

140 M Ft
4 szoba
79 m2
Eladó családi ház
Eladó családi ház

Vaskút

24.9 M Ft
4 szoba
150 m2
Eladó családi ház
Eladó családi ház

Hajós

63 M Ft
3 szoba
210 m2
Eladó családi ház
Eladó családi ház

Tihany

345 M Ft
6 szoba
347 m2
Eladó családi ház
Eladó családi ház

Szirmabesenyő

85 M Ft
2 szoba
128 m2
Eladó családi ház
Eladó családi ház

Tapsony

23.8 M Ft
3 szoba
130 m2
Eladó családi ház
Eladó családi ház

Magyarszék

89.9 M Ft
5 szoba
130 m2
Eladó családi ház
Eladó családi ház

Örkény

29.9 M Ft
3 szoba
106 m2