Avico Greentop

Eladó családi ház
Tömörkény

Figyelem!

Ez az ingatlan a 2019.07.01-től induló falusi CSOK által támogatott településen található

+ 17 kép 1/20
8 000 000 Ft8 M Ft 100 000 Ft/m2
2 szoba
80 m2
építés éve:1950

Részletes adatok

Állapot: Felújítandó
Telekméret: 1110 m2
Fűtés: Házközponti egyedi méréssel
Parkolás: Garázs
Energetikai besorolás: Nem adta meg a hirdető

Az OTP Bank lakáshitel ajánlataFizetett hirdetés

Hitelösszeg 10 millió Ft
Futamidő 20 év
Induló törlesztőrészlet 67 508 Ft
Törlesztőrészlet a 13. hónaptól 86 071 Ft
THM 8,6 %

A tájékoztatás nem teljes körű és nem minősül ajánlattételnek. Az OTP Évnyerő Lakáshitelei 1 éves türelmi idős kölcsönök, amellyel az első 12 hónapban alacsonyabb a havi törlesztőrészlet. A tőke törlesztését a 13. hónaptól kell megkezdeni.

    Részletes kalkuláció
    +36 20 985
    Petkov Gyöngyi Katalin
    referens

    Érdekel az OTP Bank kedvezményes lakáshitel ajánlata? *

    * A kérdésre „Igen” válasz bejelölése esetén, az „Üzenet küldése” gombra kattintva kijelentem, hogy az OTP Bank Nyrt. Adatkezelési tájékoztatójának tartalmát megismertem és tudomásul vettem.

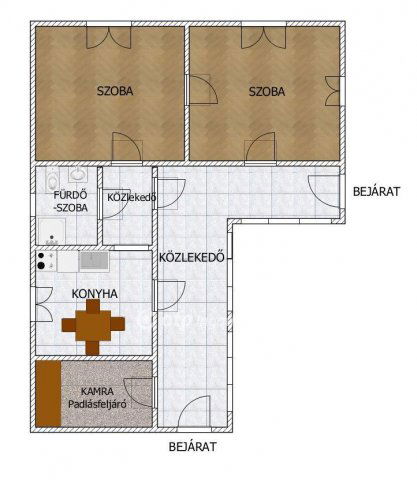
    Eladó családi ház leírása

    Csongrád-Csanád vármegyében, Tömörkény szívében kínálok családi házat eladásra. A házban két tágas, világos szoba, fürdőszoba, konyha és egy nagy előtér található, mely sokféle módon hasznosítható. A ház beton alapon vegyes falazatú, tetőszerkezete jó. A szobákban parketta van, a többi helyiség járólappal burkolt. Nemrég még lakott ingatlan, igény szerint felújítandó. A komfortos meleget központi fűtés biztosítja, ami gázkazánnal és vegyes tüzelésű kazánnal is megoldható. Fél éve telepített korszerű klíma is hozzájárul az otthon kellemes hőmérsékletéhez.
    Az ingatlanhoz praktikus melléképület tartozik, benne 12 m2-es garázs, kazánház, plusz tároló, így minden fontos kerti eszköz is kényelmesen elhelyezhető. Az épületek folytatásában állattartásra alkalmas ólak, góré, fásszín stb. kapott helyet. A tágas, 1100 m2-es telken gyümölcsfák - barack, cseresznye, meggy, birsalma, dió - teremnek. A kert öntözéséhez fúrtkút is rendelkezésére áll, méretéből adódóan konyhakert kialakítására is van lehetőség.
    Ideális választás bárkinek, aki nyugodt, barátságos környezetben szeretne élni, mégis a központ közelében. Ne hagyja ki ezt a remek lehetőséget! Jöjjön el, nézze meg személyesen!

    Az OTP Ingatlanpont banki háttérrel, eladóink és vevőink igényeit teljes körűen ki tudja szolgálni, az eladástól a vevői finanszírozásig. Hitel igénylés esetén akár egyedi kamatkedvezménnyel, jogosultság esetén az állami támogatásokhoz kapcsolódó felvilágosítással, teljes körű pénzügyi tanácsadással és ügyintézéssel állunk ügyfeleink rendelkezésére. Kedvező hitelajánlatok, mint pl. BABAVÁRÓ hitel, piaci hitel, és szabad felhasználású hitelek, Otthon Start támogatott hitel, CSOK plusz, falusi csok. A pénzügyi tanácsadás és ügyintézői szolgáltatásunk díjmentes. VÁLASSZUK KI EGYÜTT AZ ÖNNEK LEGMEGFELELŐBB AJÁNLATOT! BANKI SORBAN ÁLLÁS NÉLKÜL!.

    Hirdetés feltöltve: 2025. 12. 16. Utoljára módosítva: 2025. 12. 30.

    2 szobás családi házak ára Tömörkényen

    Ebből az összehasonlításból megtudhatod, hogyan viszonyul a lakás ára a környékbeli családi házak átlagos árához. Ez nem azt jelenti, hogy ennyivel olcsóbb vagy drágább, mint amennyit a lakás ér, hanem hogy ennyivel tér el a környékbeli átlagtól.

    Ennek a m² ára
    Tömörkény m² ár
    100 e Ft
    156 e Ft 36%
    Ennek az ára
    Tömörkény átlagár
    8 M Ft m Ft
    11.6 m Ft 31%

    Az ingatlan elhelyezkedése

    Cím: Tömörkény

    Eladó ingatlanok a környékről

    Eladó családi ház
    Eladó családi ház

    Szeged, Alsóváros, Szabadság tér

    89.9 M Ft
    3 + 1 szoba
    100 m2
    Eladó családi ház
    Eladó családi ház

    Röszke

    75 M Ft
    4 szoba
    95 m2
    Eladó családi ház
    Eladó családi ház

    Mórahalom

    63 M Ft
    3 szoba
    94 m2
    Eladó családi ház
    Eladó családi ház

    Tömörkény

    15.9 M Ft
    3 szoba
    100 m2
    Eladó téglalakás
    Eladó téglalakás

    Szeged

    31.713 M Ft
    1 szoba
    22 m2
    Eladó családi ház
    Eladó családi ház

    Sándorfalva

    15 M Ft
    2 + 1 szoba
    60 m2
    Eladó téglalakás
    Eladó téglalakás

    Szeged

    57.78 M Ft
    3 szoba
    49 m2
    Eladó családi ház
    Eladó családi ház

    Tömörkény

    16.9 M Ft
    3 szoba
    93 m2
    Eladó családi ház
    Eladó családi ház

    Tömörkény

    14.9 M Ft
    3 + 1 szoba
    71 m2
    Eladó panellakás
    Eladó panellakás

    Szeged

    64.9 M Ft
    3 szoba
    69 m2
    Eladó családi ház
    Eladó családi ház

    Tömörkény

    8 M Ft
    2 szoba
    80 m2
    Eladó családi ház
    Eladó családi ház

    Szentes

    58 M Ft
    4 szoba
    147 m2
    Eladó családi ház
    Eladó családi ház

    Tömörkény

    8.9 M Ft
    2 szoba
    80 m2
    Eladó családi ház
    Eladó családi ház

    Röszke

    15.9 M Ft
    3 szoba
    80 m2
    Eladó téglalakás
    Eladó téglalakás

    Szeged

    95.9 M Ft
    4 szoba
    77 m2
    Eladó családi ház
    Eladó családi ház

    Szeged

    125 M Ft
    4 szoba
    106 m2
    Eladó téglalakás
    Eladó téglalakás

    Szeged, Belváros, Móra utca

    57.78 M Ft
    3 szoba
    49 m2
    Eladó családi ház
    Eladó családi ház

    Szeged

    160 M Ft
    5 szoba
    187 m2
    Eladó téglalakás
    Eladó téglalakás

    Szeged, Belváros, Hétvezér utca

    74.9 M Ft
    3 szoba
    76 m2
    Eladó panellakás
    Eladó panellakás

    Szeged

    45.5 M Ft
    1 + 1 szoba
    47 m2
    Eladó téglalakás
    Eladó téglalakás

    Szeged

    59.395 M Ft
    2 szoba
    41 m2
    Eladó családi ház
    Eladó családi ház

    Tiszasziget

    49.9 M Ft
    4 szoba
    160 m2
    Eladó téglalakás
    Eladó téglalakás

    Szeged

    39.643 M Ft
    1 szoba
    28 m2
    Eladó családi ház
    Eladó családi ház

    Szeged

    259 M Ft
    6 szoba
    314 m2

    Falusi CSOK ingatlanok

    Eladó családi ház
    Eladó családi ház

    Hobol

    50 M Ft
    4 szoba
    125 m2
    Eladó családi ház
    Eladó családi ház

    Hosszúhetény

    99 M Ft
    4 szoba
    160 m2
    Eladó családi ház
    Eladó családi ház

    Kisdér

    143.8 M Ft
    4 szoba
    205 m2
    Eladó családi ház
    Eladó családi ház

    Szabadbattyán

    163.99 M Ft
    5 szoba
    255 m2
    Eladó családi ház
    Eladó családi ház

    Pápakovácsi

    79.9 M Ft
    4 szoba
    210 m2
    Eladó családi ház
    Eladó családi ház

    Sellye

    54.99 M Ft
    4 szoba
    99 m2
    Eladó családi ház
    Eladó családi ház

    Magyarpolány

    90 M Ft
    2 szoba
    70 m2
    Eladó családi ház
    Eladó családi ház

    Szederkény

    107.9 M Ft
    6 szoba
    224 m2

    Falusi CSOK ingatlanok

    Eladó családi ház
    Eladó családi ház

    Tiszaroff

    12.5 M Ft
    2 szoba
    63 m2
    Eladó családi ház
    Eladó családi ház

    Úrkút

    94.9 M Ft
    4 szoba
    186 m2
    Eladó családi ház
    Eladó családi ház

    Berkesd

    39.5 M Ft
    5 szoba
    175 m2
    Eladó családi ház
    Eladó családi ház

    Sümegcsehi

    119 M Ft
    5 szoba
    237 m2
    Eladó családi ház
    Eladó családi ház

    Palkonya

    137 M Ft
    6 szoba
    160 m2
    Eladó családi ház
    Eladó családi ház

    Biharkeresztes

    20.5 M Ft
    1 szoba
    32 m2
    Eladó családi ház
    Eladó családi ház

    Ádánd

    57.9 M Ft
    5 szoba
    190 m2
    Eladó családi ház
    Eladó családi ház

    Pánd

    31.5 M Ft
    4 szoba
    74 m2